查看完整案例

收藏

下载
奥斯卡·王尔德曾说过“美学是艺术与生活的最终结合”。喧嚣的广府城,犹如一片广袤的丛林,文化凝结脉络汇聚成叶,繁楼直立眼前绘像如枝。我们从城市中来,到艺术中去,在艺术的游走中感受生活的灵动,让心灵与之共鸣。都湖湾不仅是自然的延伸,更重新链接“品质-自我-生活”的关系。在这里,人们如寻找到归宿的猎豹,也找到了与生活美学共鸣的方式。
天然湖畔
美学共鸣
在强调生活品质的现代社会中,人们更渴望寻找一片彰显个性的心灵地。基于这一诉求,奥迅设计以南驰都湖湾的天然优势执笔,将艺术与自然融入生活,采用森林与猎豹元素作精神指引,进而开启一场对美学的探知和创新城市人居体验。
01SELF-PROMOTION
艺术游走
宣扬自我
社会如同一片无止境的荒野,居者如猎豹般不断奔波。然而在这片荒野中,总有一方天地可重拾内心深处的自我。
奥迅设计以居者体验场景为核心,通过对细节的关注和自然元素的巧妙融合,让空间的每一个角落都成为追寻艺术精神世界的启程点。
P. 01
P. 02
秉承山水脉络,客餐厅以“林、石、水”契合设计调性,将其中蕴藏的形态、纹路呈现于空间。一面为山水写诗,一面模糊山水边界,曲水流觴,倒映出居者生活在此的每一刻时光。
P. 03
P. 04
心由境造,境由心生。每一件家居物品,每一寸材质的运用,都是设计师内心对“艺术自然”的映射。
大理石、原木色调的克制协同现代艺术装饰,仿佛开启一场安于室内的“精神朝圣”,释放出品质生活的空间共感。
P. 05
P. 06
心外无物,闲看庭前花开花落,
去留无意,漫随天外云卷云舒。
艺术家王志新的画作《小天堂》不拘泥于传统的风格,将空间调频至无边的舒适境界。其画中每一处细节,都弥漫着对自由的热爱与追求。
P. 07
P. 08
艺术天生具备将日常转化为绝妙享受的天赋。经由“豹影流动”的自然语境,满足居者对“生活”的无限想象。
猎豹造型的艺术灯赋予休闲厅中生命的色彩,搭以深色大理石,跃于丛林的猎豹成为空间中的焦点,用独有的视觉指引居者感受“狂野之美”。
P. 09
P. 10
P. 11
P. 12
对品质的探索,是蔓延至每一隅的心灵维度。
在餐厅中,精致的花艺和考究的餐具器皿相互辉映映入日常。精心雕琢的每一分微小细节,皆在尽情展现生活美学真谛。
P. 13
P. 14
视线向上,当灯光亮起,柔和的光线与材质相呼应,散发出温暖而迷人的光芒。远离城市的喧嚣,远离世俗的浮华,是回归品质生活的一首未完诗篇。
P. 15
P. 16
在空间中,情感与氛围的展现不仅限于片刻的休憩与放松,更是一个个生动的故事。
水吧的设计,以简洁的几何元素为主导,让人沉浸其中,感受空间所传递出的个性和情感。
P. 17
P. 18
P. 19
品质和艺术共处一室,导向了美学主义与精致主义的倾诉。借“柜”发挥,艺术酒柜成为功能与美学的双向媒介,多种材质、纹理、工艺的碰撞,表达居者的不同情感,传递不同每种情境下精神追求。
P. 20
P. 21
品味如诗,删繁就简,元素和鸣,和谐自然。刻意删减过多的繁杂感,让自然光与空间融入日常,坐落于书房里,若有似无的光影律动萦绕在旁,让人可以沉浸在唯我境界中。
P. 22
P. 23
• 02
A UNIQUE OF BACKCOURT
格调后场
卓尔不群
起居的诗意,便是生活的诗意。格调被展开,后场天地也承接温煦其中的叙事方式,自然丛生的借喻,让起居生活成为一份氤氲在心头的独特和非凡。
P. 24
休闲厅作为居者步入二层的个人空间,它不仅仅是一个简单的休憩之地,更是居者个性和品味的完美展现。
在艺术家的视角下,《涅》是自我彰显的延续,它犹如一件未被发现的宝藏,等待着有缘人的探索与发现。
P. 25
P. 26
在寂静的天地间,生命如宝石般时刻在涌动与闪耀。伴随空间的深入,主卧墙上的猎豹仿佛在空间中舞动,以独特的姿态诠释着生命的活力。它仿佛赋予了整个主卧大自然的灵魂,释放压力,回归真我,让居者在纷扰的世界中找到一处灵魂的净土。
P. 27
P. 28
原木,坚实而和谐,其意蕴深远悠长。
主卧的每一丝氛围都以原木调性为线索,在大理石材质的搭配与居者行为的带动下,空间体验层级与之升华。
P. 29
P. 30
P. 31
与此同时,家居也在伏笔着居者的未来将如何展开。美学与功能的完美平衡,在时间的流线逻辑中,让自然有序逐渐演化成对美好生活追求的淋漓释放。
P. 32
P. 33 次卧空间以蓝色调作切入点,重现了自然风光中的幽雅。通过对生活的细致观察和深思熟虑,以微妙的对比柔和色调,为居住者打造出应有的质感与平和。
P. 34
在都湖国际项目中,艺术与自然的植入为居者探索生活本质的过程中赋予了无限可能。
奥迅设计最大程度激发“精神氛围”在空间里的塑造,并将此融于空间细节里,悄然无声地传递出富有温度的生活美学愿景。
• 03
ANALYSIS
DIAGRAM
分析图
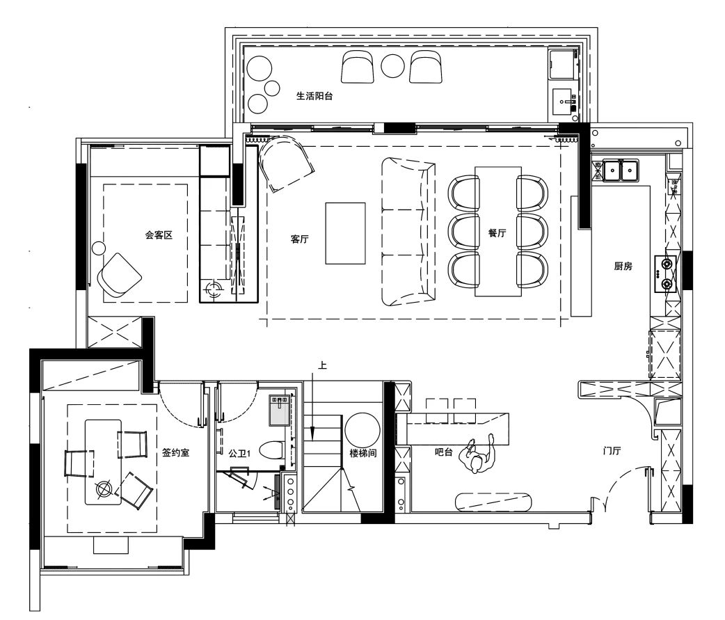
1F 平面图 P. 35
2F 平面图 P. 36
INFO
- 项目名称 - 南驰 · 广州都湖国际
- 业主单位 - 广州市花都华美实业有限公司
- 设计机构 - 奥迅设计
- 主持设计 - 罗海峰
- 软装团队 - 许淑炘 唐明智
- 硬装设计 - 亚美设计
- 项目面积 - 260㎡
- 项目地址 - 广东 广州
- 项目摄影 - 范文耀
- 品牌策划 - 罗海媚 陈惠娥 李羽峻 马智城
DESIGNER
罗海峰
奥迅设计创始人 - 设计总监
许淑炘
奥迅设计合伙人 - 设计总监
奥迅设计 OCEAN DESIGN,2013 年创办于广州,是一家集策划、设计、美陈于一体的专业室内设计公司,为客户提供地产、办公、商业豪宅等领域的设计解决方案。经过 10 年发展,已和多家全国 TOP100 发展商建立长期友好合作,获得众多国内外奖项殊荣,并多次跻身中国室内设计企业百强榜前列。
立足城市前沿,深耕豪宅设计、青年社区等专业领域二十载。凭借对审美艺术的感知和设计品质的管控流程,保证每个项目快速高效地完成,为客户带来极致的设计体验。
客服
消息
收藏
下载
最近














































