查看完整案例

收藏

下载
万灵设计
合肥 550㎡华润桃源里别墅
最好的建筑空间是这样的
我们身处在其中
却不知道自然在哪里终了
艺术在哪里开始
—— 改自林语堂
本项目位于安徽合肥,一湖一山一岛相环绕,森林公园、四季花海、植物园相邻接,自然环境优越。
#01
LIVING - DINING ROOM
客餐厅
设计回归建筑与室内本身,留白空间,把万千可能还给业主,让情感与温暖入注,让生活生发,打造独属于业主的家,自然和谐的当代理想人居。
至朴至真,
至简至美。
繁花深处听惊雷,雨过天青有瓷色,回归家的本真、人文的本源、生活的本意,梳理居者需求,去掉繁芜造型。
用设计激发建筑与空间本真之美,用质感与纯粹引领品质生活,借自然山水天光,融建筑室内之中,人文与自然和谐共生。
以黑白萃淡雅极境,用留白达诗意生活,至纯至雅,至美至极。
#02
LEISURE AREA
休闲区
门前庭院,繁花与晴空,楼下天井,扶光与月舒。
重新规划三处天井,引光入空间,从黎明到黄昏,自然触手可及,自在怡然可得。
#03
BEDROOM
卧室
#04
COURTYARD
露台与庭院
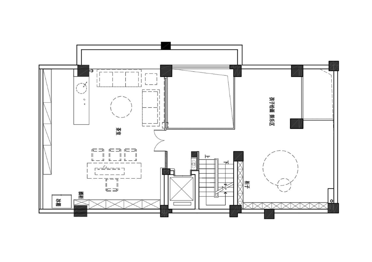
△-2F平面图
-1F平面图
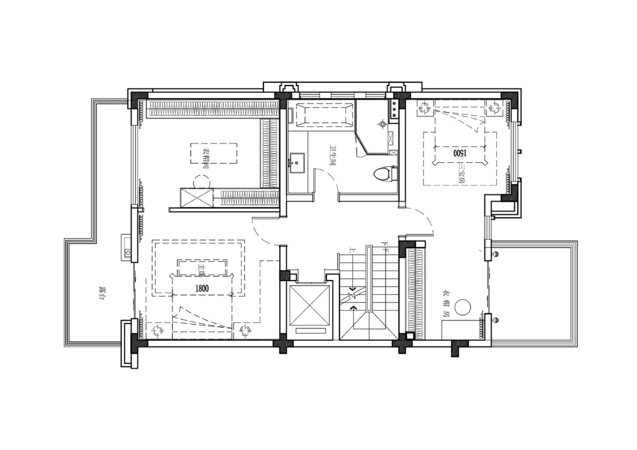
△1F平面图
△2F平面图
△3F平面图
项目名称:华润桃源里别墅
硬装-软装设计 :万灵设计(合肥)
项目面积 :室内460㎡ / 景观90㎡
项目地址:安徽 合肥
项目摄影 :飞 羽
庭院绿化 :娜时光
客服
消息
收藏
下载
最近


















































