查看完整案例

收藏

下载
小宅空间
Nina Vasilenko
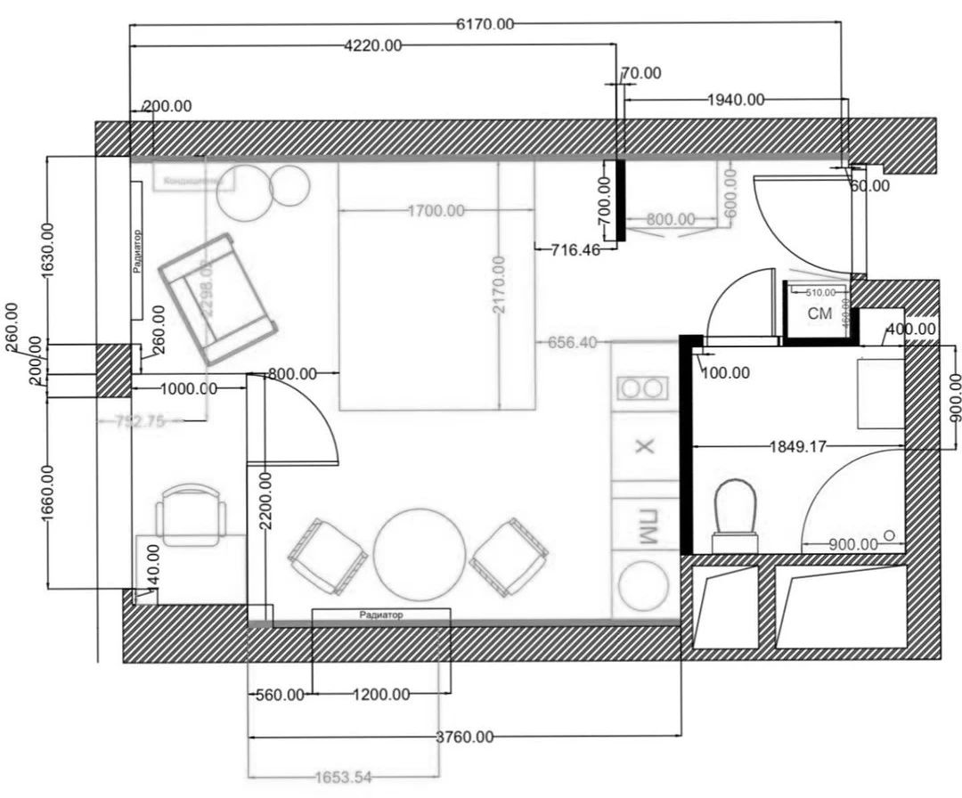
空间布局
Nina Vasilenko
这个项目的配色方案非常大胆,我选择赤土色作为主要颜色。为了稍微中和它,使用了同一色调中的柔和粉色,并使用水绿色作为强调色。
为了尽可能地将厨房“溶解”在空间中,决定不使用上层橱柜,因为工作的原因很少在家做饭,不需要大量的餐具。所有家用电器均内置并隐藏在厨房立面后面,其颜色与台面和低围裙相同。
阳台那里布置了一个舒适工作区。
没有设计大衣柜,转而选择了时尚的栏杆,这对于一个人来说已经足够了。这种导轨可以很好地发挥其功能,但不会占
用空间并使房间更加宽敞。
洗衣机隐藏在里面,以腾出浴室空间。
客服
消息
收藏
下载
最近


















