查看完整案例

收藏

下载
法式空间
Aldo-Aldo
125
法式
以古典元素为基础,加入了业主喜爱的
中式元素,
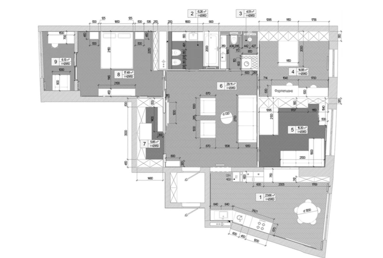
空间布局
客厅是一个明亮
的空间,配有流线型优雅的家具和图形深色线条的装饰。
在这里,设计师依靠柔软的织物纹理和光滑表面的对比
最引人注目的作品是
Constance Guisse)
设计的
Vertigo
吊灯。
想要创造一个充满欢乐、丰富的内饰,适合业主的气质。使用了多种配色方案,同时将空间与中性背景墙色调相协调——这是任何室内装饰的良好基础。
在卧室里,设计师营造出更加奢华的氛围。干净的经典底座与业主非常喜欢的中式元素相得益彰。
女孩的房间采用微妙的色彩设计,并配有充足的存储空间和书桌。
床头板“凹进”壁龛,营造出安全感和舒适感。
主卫明亮,漆成深绿色,淋浴间就像热带丛林中开放式巴厘岛淋浴间。
“女性”浴室采用大理石装饰,并采用精致的粉色调。
客服
消息
收藏
下载
最近

































