查看完整案例

收藏

下载
INNER·BOUNDARY内心·边界
Nov.30th,2023
没有不好的空间,只有尚未成为“空间”的空间。丁达尔效应总能闪现震撼心灵的美,为挑空区域增色附意,倒影延伸了空间意蕴,将一个又一个的空间串联,书写出独属于家的恬静篇章。
获得一席之地,
反哺精神世界。
修长形态延展出“长廊感”,疏通了物体与结构的关系。
空间的停顿与留白,恰好给予音乐愉悦身心的契机,在可视与不可视的韵律之内,倾诉着丰富的艺术层次,带人畅快地体验阅读、奏乐、茗茶、情感互动的精妙之处。
简约,是空间的主旋律,它为生活过滤掉了繁杂,在一柔、一透、一润、一纯的质感下诉说着美好。
通过借景手法融汇景观与室内雅韵,思考空间对光的捕捉能力,打造联通的栖居氛围。摒弃庸常布局,穿插艺术格调,将极简的奥义镌刻进每个角落。
餐桌和岛台垂直交接,创造了流畅的动线与多重的情境。空间尽量开放,让采光最大化,也让家人在不同的场域之间可以获得视线和情感的交互。
空间叙事饱含起承转合与虚实呼应,用细敏的洞察力达成“见缝插针”式的空间转折与拓展,在外视图景上密合整体的清雅气质,深探内部,温馨而柔亮。
随之展现的收纳空间与洗衣区界限明晰,以整洁雅致的美感贯穿日常的清洁动态。
交织时,呈现舒适的互动性,
独立时,发酵柔和的治愈力。
层次划分,分序了采光的浓淡,色彩质感,赋予了空间真挚的精神认同。
木的气息穿流于不同场域,让体感更松弛开阔。绘就薄荷绿,超越色彩本身的特质,在光与陈设之间充当自然诗境的转述媒介,清心安和。
走进私密空间,用色与选材不再是重叠或排列,而是在尊重人的心理状态与情感需求的基础上,营造出开合随心的环境,旨在借空间美学引发对生命的思考。
以固定的背景映衬景致的微妙变化,描摹不同形态的光源,告知潜意识时光在沉淀,美好在蔓延。
不拘于视觉表象,将氤氲的自然风光定格在细腻纹理中。
庭院讲究侘寂与禅意,以石头、植物、小型水体来表现山海岛屿,既传承了悠远意境,又体现了独具个性的审美情趣,重构出人与自然互动的仪式感,让心浸入“草木蔓发,春山可望,轻鲦出水,白鸥矫翼,露湿青皋,麦陇朝雊”的境界。
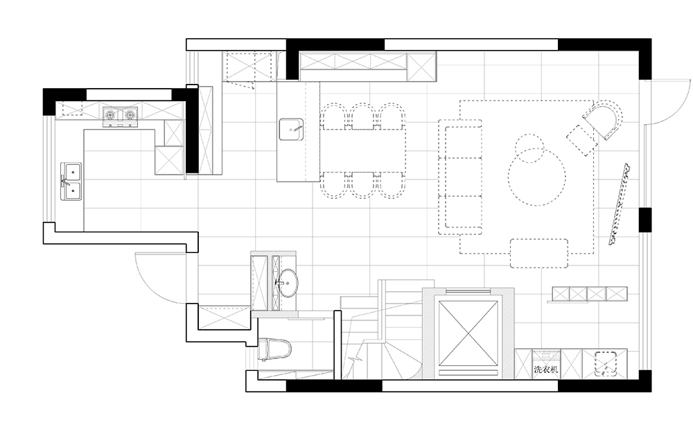
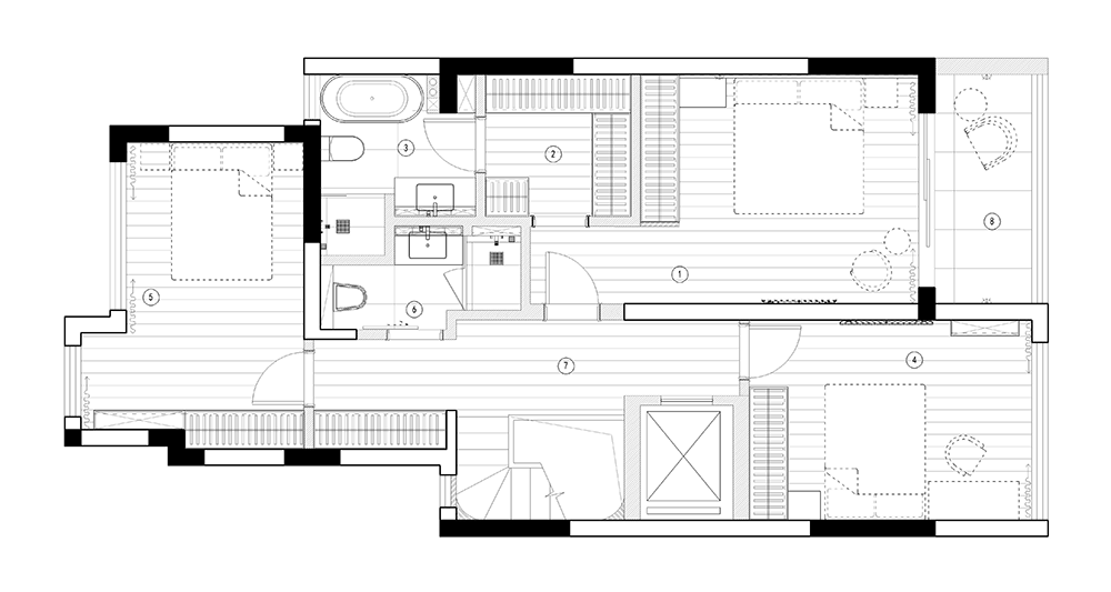
平面图
-2F平面图
-1F平面图
1F平面图
2F平面图
项目名称:内心·边界
项目地址:江苏·常熟
项目面积:300平方
设计主创:陈静
深化设计:任欢民、李永谦、陈明珠
设计时间:2022年03月
竣工时间:2023年07月
项目摄影:TS建筑摄影
文案策划:修合文化
陈静
禾景装饰工程有限公司 创始人 总经理
大陈设计事务所 创始人 创意总监
禾景大陈设计秉承简约、自然、舒适的设计理念。致力于挖掘人们本真精神的向往,将自然、器物、人文融入到设计语境中,引导生活艺术,为空间营造纯粹、温暖、治愈的美学力量。
设计版块涵盖建筑、室内设计、景观庭院等。关注用户需求,探索空间的一切可能性,努力为居者构建品质、和谐、惬意的居住空间。
客服
消息
收藏
下载
最近











































