查看完整案例

收藏

下载
该项目位于东京市中心公园旁的Opus Arisugawa豪华公寓中,是CURIOSITY事务所新建的高档住所,属于ReBITA公司负责的“R100 TOKYO”改造项目之一,他们提供经过专属室内设计的非凡住所,面积超过100平米,未来百年都将保值。该项目起源于建筑师和艺术家的多样合作,建筑师在与不同艺术家和工匠的对话中,将建筑形象与居住空间结合起来,最终创造出超乎想象的生活方式。它不仅是空间改造,更是对日常生活节奏的探索,是连接过去丰富经历与未来生活方式的桥梁。
The new and exclusive residence with CURIOSITY’s aesthetics, has been designed in Opus Arisugawa, a unique luxurious mansion, situated beside lush green park in the center of Tokyo.The residence is a part of the renovation project, “R100 TOKYO”, led by ReBITA, offering exceptional residences with custom-made interiors with over 100 square meter space and unchangeable value for 100 years.The Opus Arisugawa has originally rooted in the richness of collaboration between architects and artists. And how a designer can connect the building’s image to the living space in dialogue between the creations of various artists and artisans.The answer is to create a lifestyle beyond the resident can imagine.More than a spatial intervention, this is exploring the fundamentals that rhythm our daily life. It is a bridge between the richness, experiences of the past and the expectation of future lifestyle.
▼项目概览,overview © SATOSHI SHIGETA
日本景观、建筑和室内设计的关键在于“造景”。该项目的空间借鉴了编舞设计,构成了一系列精选生活景象。它并不呈现传统的生活方式,而是展现日常生活不会发生的一系列情景。入口处挂有Shuko Tsuchiya独特的书法作品,日本纸张上的墨迹描绘了盆栽艺术,经镜面反射,放大了空间,创造出流动的视觉效果。旁边摆放纸罩灯,以示欢迎。粗糙的深色岩石地面使人想起日本住宅。悬浮的体量界定了右侧狭窄的入口,露出部分室内空间。
Japan’s landscape, architecture and interior is created by so called: “selected views”, a series of life compositions carefully framed and composed. The Opus space is developed as a choreography, where you are guided through a series of such sceneries. This is not a blank canvas of traditional lifestyle, but a thoughtful sequence of different scenes, stages and situations that cannot happen in normal conditions.The entrance is magnified by the composition of a unique calligraphy by Shuko Tsuchiya, a representation of a bonsai on Japanese paper, reflecting in the mirror and creating a dynamic effect. The small andon, a paper framed lamp, symbolizes the welcoming. The dark stone floor with rough texture is a reminiscence of a Japanese house.The suspended volume reveals part of the interior and the narrow entrance in the right.
▼入口空间,entrance space © SATOSHI SHIGETA
狭窄的入口连接开放的大空间,经过窗下镜面的反射,以及灯光和天花的渲染,产生一种无限延伸的感觉。该空间被方形餐桌和沙发划分为两个区域。一个区域摆放榻榻米式沙发,邀请访客入座,如同屋中屋。沙发周围的布置丰富多样,包括精心摆放的墙壁挂画、开放式厨房、外墙窗户,不寻常的环境给人带来新鲜感,就像坐在公园中央,四周环绕开阔的风景。沙发可以移动,根据不同场合重新布置。在这里,居住者可以不断地发现材料、物件、画作和珍藏品的组合,仿佛与它们进行无言的对话。建筑师将厨房设计成向起居空间敞开的展示台,用深色石材打造整个空间,不使用时,木材部分会消失在阴暗之中。
The narrow entrance opens-up to a large open space with a sense of infinity as the interior reflects on a mirror under the window, emphasized by the lighting and ceiling design.The main room is organized around two islands: a square dining table and a sofa.A square island with “tatami-like sofa” welcomes the visitor inside, like a room within the room.From that point, a large array of views appears around, and the unusual setting gives rise to new feelings, like sitting in the middle of a park and the landscape is opening-up around you:The paintings carefully placed against the wall, the open kitchen, the window to the exteriors.The sofa can also open-up and be arranged in different settings depending on the occasion. Like a wordless conversation, the composition of materials, objects, drawings, paintings and rare objects create a continuous sense of discovery.The kitchen design as a performance stage is widely opened to the living space. When the kitchen is not used, the space crafted in various dark shades of stones, wood will disappear in the shadow.
▼主空间分为客厅与厨房,空间无限延伸,main space is divided into living space and kitchen,which is infinite © SATOSHI SHIGETA
▼沙发周围的布置丰富多样,a large array of views appears around the sofa © SATOSHI SHIGETA
▼不同材料和物件的组合 © SATOSHI SHIGETA
combination of different materials and objects
▼厨房,kitchen © SATOSHI SHIGETA
连接客厅和卧室的走廊借鉴了日本酒店的通道,设置成10米长的画廊空间,一侧是镜子,映出整个空间,产生惊喜的效果,突显走廊尽头摆放在卧室的精致插花。
Like the passages in a ryokan(Japanese hotel), the 10 meter long corridor that connects the living room and the private quarters, is transformed into an installation like gallery with one side mirror that reflected the space, creating an amazing effect and emphasis by the carefully placed flower arrangement in the bedroom side.
▼10米长的走廊,10 meter long corridor © SATOSHI SHIGETA
▼走廊尽头的插花 © SATOSHI SHIGETA
flower arrangements at the end of the corridor
主卧是一个独立空间,建筑师将美和功能结合,应用在窗前的大床和开放式浴室等不同场景,形成独特的氛围。随着居住者的使用,空间实现了视觉上的连续。这里是可以享受精致而简约的私人时光的地方,也是吃早餐和阅读的理想之所。功能构件也具有艺术品般的强烈特征,滑动纸门上刷有画作,门后是大型更衣室和开放式私人书房,置有书桌和工作台。空间突显于特殊的材料和纹理,卧室墙壁由丝绒与日式和纸组成,极简的色调突出纹理的变化,称作纹理极简主义。
The master bedroom concept has been created as an independent space, where a unique mood fuses beauty and functionality with different scenes: the daybed in front of the window and the open bath. All of them are visually connected in a continuous sense of interaction between the residents.A place to share private moments of relaxation and exquisite simplicity. It is an ideal place for breakfast or reading.Functional elements become a strong feature like art: a brushed painting on sliding paper doors leading to the dressing room.Behind the sliding doors a large dressing and personal study room opens-up, with an original private desk and console.The space focuses on the singularity of textures and materials. The wall of the bedroom is covered with a special fabric with combination of velvet and washi. The apparent extreme simplicity of the color palette reveals a wide range of textures and finishes, described as textured minimalism.
▼卧室,极简空间,突出纹理,bedroom,minimalist space, highlighting texture © SATOSHI SHIGETA
▼滑动纸门,充满艺术气息,sliding paper doors,full of art © SATOSHI SHIGETA
▼门后是大型更衣室和私人书房 © SATOSHI SHIGETA
behind the sliding doors a large dressing and personal study room
▼吃早餐和阅读的理想之所,ideal place for breakfast or reading © SATOSHI SHIGETA
浴室的百叶门形成了丰富的光影效果,百叶天花和滑动门使空间自然相连。
The play of light and shadow with the louvered doors of the open bath. The louvered ceiling and sliding doors create a calm connection to the space.
▼浴室,bathroom © SATOSHI SHIGETA
整个空间使用特殊的定制家具,创造出新的场景,告别过去,面向未来。建筑师与传统工匠和艺术家联合制作了酒柜、玻璃杯和茶具等日常用品,使生活的每一刻都成为独特的体验。
Throughout the space, unique furniture has been created with the intention to encounter a scenery that is virgin to our memory and does not connect to past experiences, opening the mind to new expectations. To make every moment of the daily life a unique experience, original objects used daily such as wine coolers, glasses and tea utensils, were created for the house in collaboration with traditional craftsmen and artists.
▼细节,details © SATOSHI SHIGETA
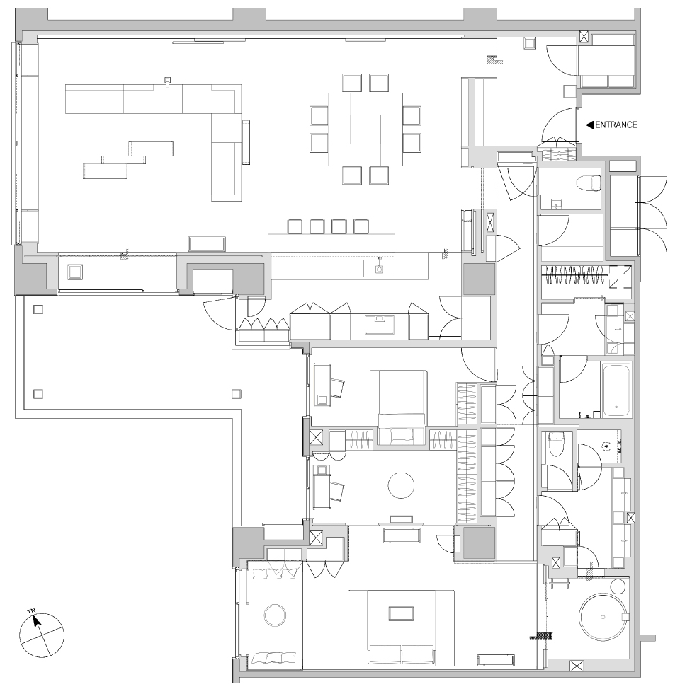
▼平面,plan © CURIOSITY
客服
消息
收藏
下载
最近





















