查看完整案例

收藏

下载
YOUNG
此次Paral 2.0增加了45㎡,加入了咖啡的区域。实现了白天画廊与咖啡,晚间酒吧与咖啡的全时段运营。
上海彦文建筑工作室
▲临街外观
© YOUNG
▲立面概览
© YOUNG
▲门头
© YOUNG
▲白天左边卷帘门打开,开放Gallery空间,同时右边卷帘门关闭,隐藏酒吧区域
© YOUNG
▲展览空间
© YOUNG
▲咖啡休闲区
© YOUNG
▲立柱保留了原始建筑的砖瓦和水泥墙
© YOUNG
▲家具选用胡桃木色
© YOUNG
▲白天关闭酒吧一侧卷帘,晚间关闭画廊侧卷帘,避免酒客误触艺术品
© YOUNG
▲夜晚开放的酒吧区域
© YOUNG
▲后侧的休闲区卡座
© YOUNG
▲保留原始墙面的肌理
© YOUNG
▲VIP房间
© YOUNG
▲圆形吧台
© YOUNG
▲从酒吧区望向咖啡区
© YOUNG
▲亚克力旋转酒柜
© YOUNG
▲透
明的玻璃将街景延伸融入室内
© YOUNG
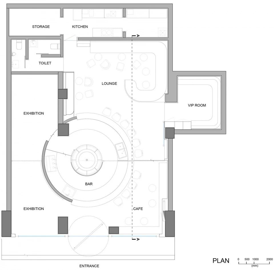
项目图纸和模型
▲项目平面图
© Atelier A
▲项目立面图
© Atelier A
项目名称: Paral酒吧
项目地址: 杭州市下城区中山北路8号
Atelier A
项目竣工: 2023年8月
建筑面积: 167sqm
主创建筑师团队: 朱彦文/ 李梦婕/张永慧
客服
消息
收藏
下载
最近


























