查看完整案例

收藏

下载
灰色空间
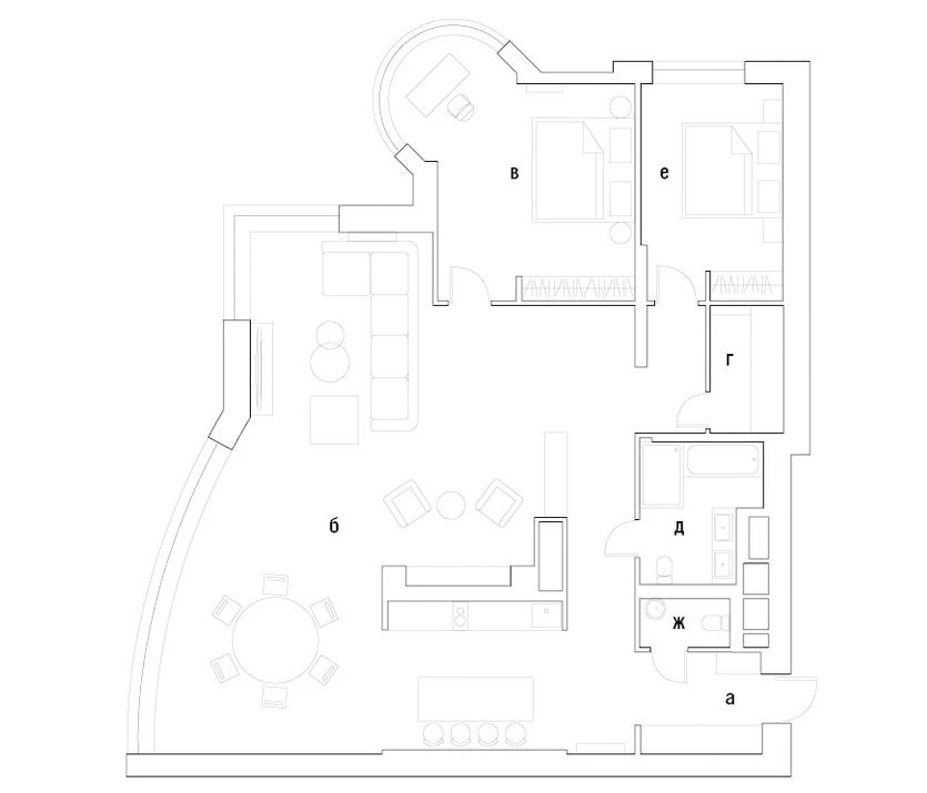
Ekaterina Demina新作,一个简约风格的室内装饰,面积160㎡。走廊、厨房、餐厅、客厅、壁炉区和公共走廊是一个单独的房间,一个区域平滑地过渡到另一个区域。整个空间充满自然光,大量镜子发挥了额外的作用,增加了空间的视觉感。
所有区域的构成精确、清晰,没有多余的内容。高高的橱柜达到天花板,正面和铣削把手的垂直划分最小化,不会在视觉上压低体积,然而,它们非常宽敞且实用。主要调色板采用灰色调:从深石墨色到浅色和芥末黄作为重点。
沙发独特的气泡形状吸引了所有人的注意力。
因此,客厅的内部是围绕它建造的,并作为背景。
客厅的茶几、餐桌上方的吊灯、主卧室的工作椅也都是蓬松的形状,就像动画片里的东西一样。
具有昼夜节律周期的可调白光灯,光元素会根据一天中的时间改变光的温度。
空间布局
客服
消息
收藏
下载
最近



























