查看完整案例

收藏

下载
项目位于深圳南山西丽大学城主轴线西侧,身处南山高新科技发展轴上,是校园新科研试验区的起点。建筑集教育、研究、产学研结合及国际交流等功能于一身,是BIM与装配式两大新兴技术完美结合应用的典范,致力于打造开放活跃、鼓励学科交流共享的第三代实验室建筑。
▼视频,video ©华阳国际
The project is located on the west side of the main axis of Xi Li University Town in Nanshan, Shenzhen. It is located in the Nanshan High-tech Development Zone and is the starting point of the new scientific research experimental area on campus. The architecture integrates the functions of education, research, industry-university-research integration, and international exchanges. It is a model of the perfect combination and application of two emerging technologies of BIM and assembly. It is committed to creating a third-generation laboratory building that is open and active, and encourages subject exchange and sharing.
▼项目概览,project overview ©邵峰、华阳国际
▼场地鸟瞰,aerial view ©邵峰、华阳国际
在产品研究的指引下,建筑切分为办公与实验两大功能形体,既不打破现有空间尺度,又合理划分平面功能。塔楼进一步高低分区,低区临宜人湖滨景观,高区90°旋转将景观面向南,以获得开阔视野。东南与西北角的两处退让设计,削弱了高层建筑带来的压迫感,让建筑更好融入校园。
▼底层架空打造科学广场,the ground floor was elevated to create the science plaza ©华阳国际
▼设计概念,design concept ©华阳国际
▼设计概念,design concept ©华阳国际
Under the guidance of product research, the building is divided into two major functional forms: office and experiment, which neither breaks the existing spatial scale, but also reasonably divides the plane functions. The tower is further divided into high and low areas, the low area is adjacent to the pleasant lakeside landscape, and the high area rotates 90° to face the landscape to the south to obtain a broad view. The two retreat designs in the southeast and northwest corners weaken the sense of oppression brought by high-rise buildings and make the buildings better integrate into the campus.
▼建筑立面,building facade ©华阳国际
©邵峰、华阳国际
在空间设置上,简约有序、开放多元的设计体系贯穿始终。设计引入中部共享空间系统,贯穿起所有科研空间,每三层一单元被赋予不同主题,形成最具活力的社交场所。此外,简洁形体中,立面元素巧妙提取自清华大学百年来的红砖白墙,又与南方气候相适应,具有标识性的建筑语言成为学子记忆。
▼平面模式,layout pattern ©华阳国际
▼共享空间系统,the shared space system ©华阳国际
In the space setting, a simple, orderly, open and diverse design system has always been run through. The design introduces the central shared space system, which runs through all scientific research spaces, and each three-story unit is given different themes to form the most dynamic social place. In addition, in the concise form, the facade elements are cleverly extracted from the red brick and white walls of Tsinghua University over the past century, and are adapted to the southern climate. The iconic architectural language has become the memory of students.
▼立面元素巧妙提取自清华大学百年来的红砖白墙 ©华阳国际
the facade elements are cleverly extracted from the red brick and white walls of Tsinghua University over the past century
▼立面细节,detailed view ©邵峰、华阳国际
▼交通空间,circulation ©邵峰、华阳国际
▼旋转楼梯,spiral staircase ©邵峰、华阳国际
▼鸟瞰,arial view ©华阳国际
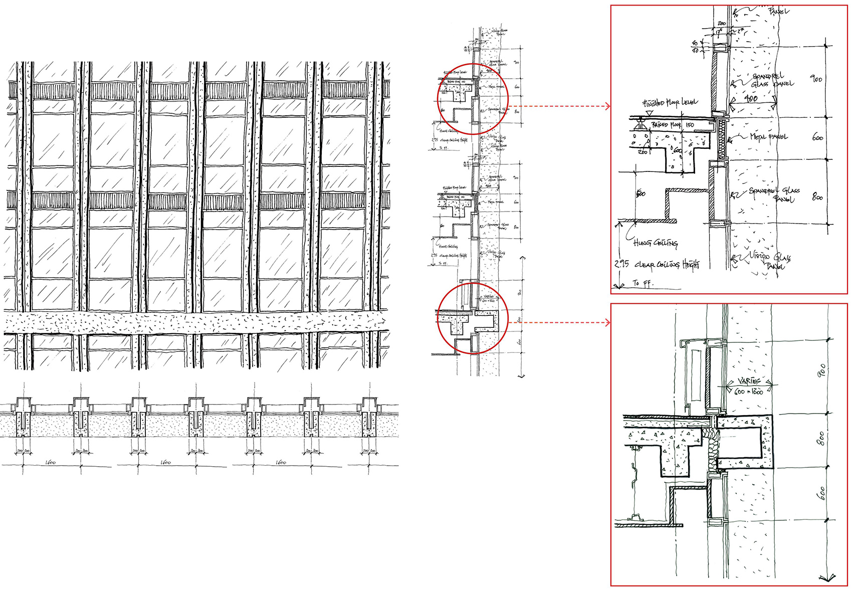
为满足科研工作的多变性需求,实现建筑的高度灵活性,设计自方案阶段便结合建造效果一并思考,引入模数化设计体系与全新装配式技术。零标准层,54个预制构件连接点,构件设计图5倍于常规项目,无数次模型预演、材料甄选、施工现场沟通,每一处细节的执着打磨,都致力于重塑秩序之美。
▼模数化,modulization ©华阳国际
▼建筑引入模数化设计体系与全新装配式技术,the modular design system and new assembly technology have been introduced ©邵峰、华阳国际
In order to meet the changeable characteristics of scientific research work and realize the high flexibility of the building, the design has been combined with construction effects from the planning stage, and the modular design system and new assembly technology have been introduced. Zero standard floor, 54 prefabricated component connection points, component design drawings are 5 times the conventional project, countless model previews, material selection, and construction site communication. Perseverance in every detail is dedicated to reshaping the beauty of order.
▼立面细节,facade detailed view ©华阳国际
建筑探索性地借助BIM正向设计,实现结构体系、机电系统与建筑的一体化创新设计,最大程度为科研空间创造适应性,最终实现高品质建造下,功能与美感的完美相逢,成就深圳首个应用PC技术的实验室建筑,这也是第一个实现全生命周期BIM设计与应用的高层教育建筑。
▼BIM全专业模型,BIM model ©华阳国际
With the help of BIM forward design, the building realizes the integrated innovative design of structural system, electromechanical system and building. It creates adaptability for scientific research space to the greatest extent, and finally realizes high-quality construction, the perfect meeting of function and beauty. The achievement of Shenzhen’s first application of PC technology This is also the first high-rise educational building to achieve full life cycle BIM design and application.
▼从湖岸望向建筑,view from the pond ©邵峰、华阳国际
▼建筑整体外观,exterior view ©邵峰、华阳国际
▼总平面图,master plan ©华阳国际
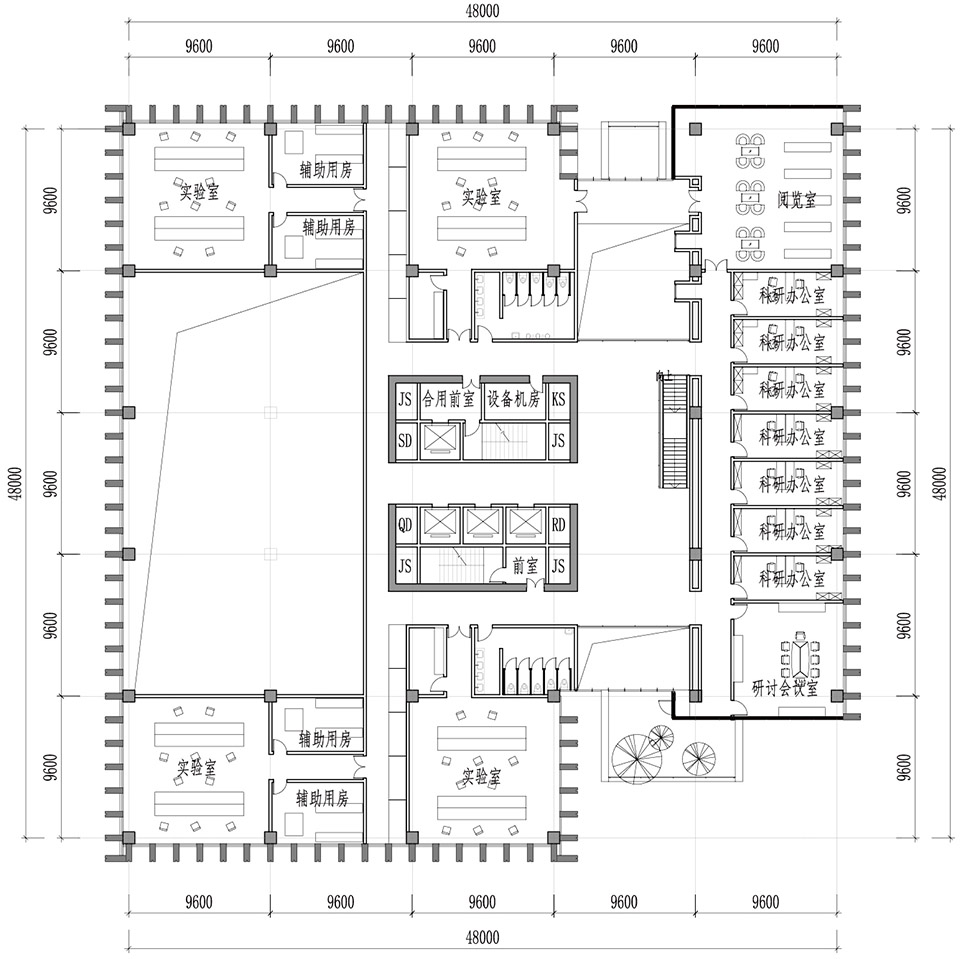
▼2层平面图,plan level 2 ©华阳国际
▼3层平面图,plan level 3 ©华阳国际
▼4层平面图,plan level 4 ©华阳国际
▼南立面图,south elevation ©华阳国际
▼北立面图,north elevation ©华阳国际
▼东立面图,east elevation ©华阳国际
▼西立面图,west elevation ©华阳国际
客服
消息
收藏
下载
最近























































