查看完整案例

收藏

下载
最好的建筑空间是这样的:我们身处在其中,却不知道自然在哪里终了,艺术在哪里开始。——改自林语堂
本项目位于安徽合肥,一湖一山一岛相环绕,森林公园、四季花海、植物园相邻接,自然环境优越。
01 LIVING - DINING ROOM 客餐厅
设计回归建筑与室内本身,留白空间,把万千可能还给业主,让情感与温暖入注,让生活生发,打造独属于业主的家,自然和谐的当代理想人居。
一楼客厅 P. 01
P. 02
P. 03
至朴至真,至简至美。繁花深处听惊雷,雨过天青有瓷色,回归家的本真、人文的本源、生活的本意,梳理居者需求,去掉繁芜造型。
P. 04
P. 05
P. 06
用设计激发建筑与空间本真之美,用质感与纯粹引领品质生活,借自然山水天光,融建筑室内之中,人文与自然和谐共生。
以黑白萃淡雅极境,用留白达诗意生活,至纯至雅,至美至极。
一楼餐厅 P. 07
P. 08
P. 09 留建筑本真外立面,调空间内部构造,布开阔通透格局,释放内部空间,加强空间纵深感,优化功能动线,增加空间互动,满足多功能需求,温度与尺度并存,情感与理想蕴生。
一楼西厨吧台 P. 10
P. 11
一楼中厨 P. 12
P. 13
P. 14
P. 15
02LEISURE AREA
休闲区
门前庭院,繁花与晴空,楼下天井,扶光与月舒。
重新规划三处天井,引光入空间,从黎明到黄昏,自然触手可及,自在怡然可得。
负二层公区 P.16
P. 17
P. 18
P. 19
P. 20
P. 21
纯粹干净的白,辅以极致冷静的黑棕,极尽曲线优雅之能事,构筑着讲究与精致。小小的鲜妍,是不经意的怒放,是对至朴至简的点睛延续。
P. 22
P. 23
负二层夹层休息区 P. 24
P. 25
P. 26
负二层衣帽柜 P. 27
• 03
BEDROOM
卧室
主卧室采用深色木饰面与原木色地板,构建出一种沉稳而温暖的空间氛围。深色木饰面在墙面上展现出独特的质感,它不仅为空间增添了一份高贵感,同时也带来了一种深邃的静谧感。
主卧 P. 28
P. 29
P. 30
P. 31
卧室 P. 32
P. 33
衣帽间 P. 34
• 04
COURTYARD
露台与庭院
庭院是属于那些追求小确幸的人们的天堂,在这里,找到内心的宁静和满足。日常忙碌奔波于城市喧闹繁华的疲惫,回家被诗意的院景治愈,在花园开启一段诗与远方的旅程,慢赏花园诗意,享受惬意生活,畅快撒欢,让自然带领孩子成长。
P. 35
P. 36
P. 37
清风过耳,如粉如黛,四季更迭,放眼皆是美景,日子在花园中如沐欢愉,把简单的日子过成一首美好的诗。
用花做篱笆,诗意为墙,静守流年,嗅一院子的芬芳,纵容人心拥挤,人世喧哗,但心安之处便是家。
露台 P. 38
• 05
ANALYSIS
DIAGRAM
分析图
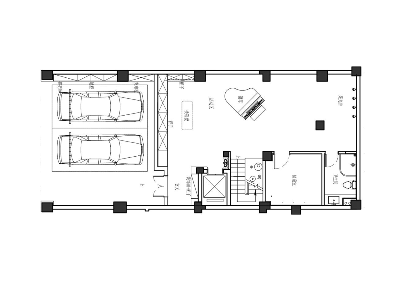
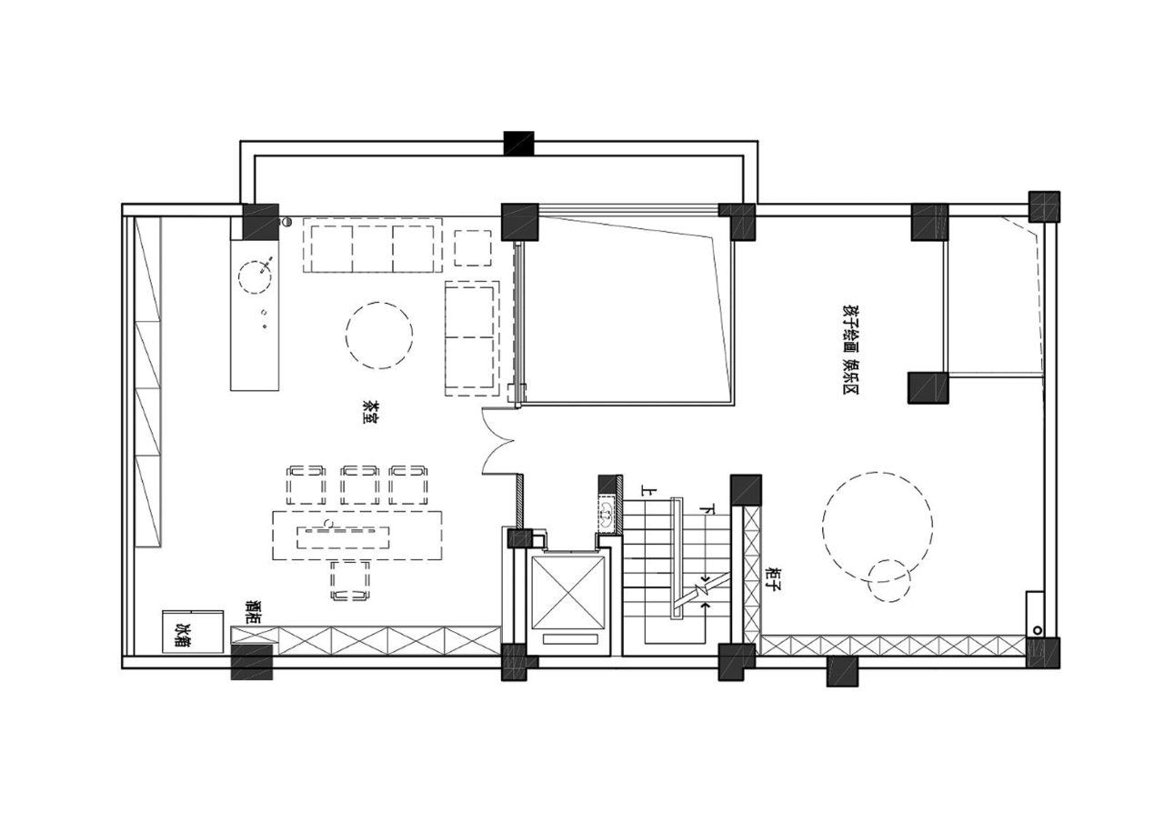
-2F -1F 平面图 P.39
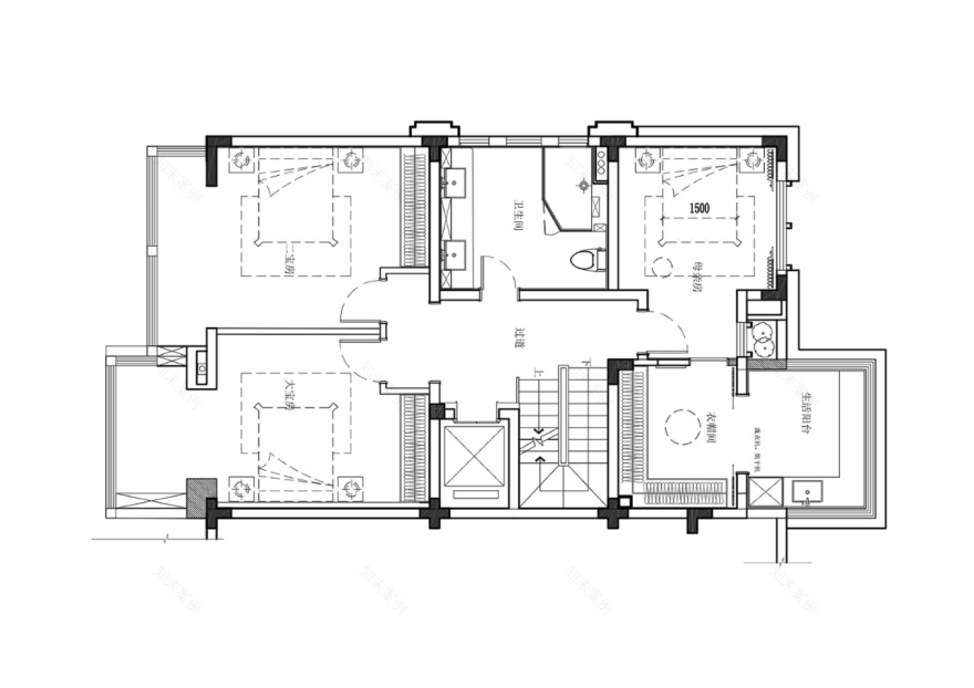
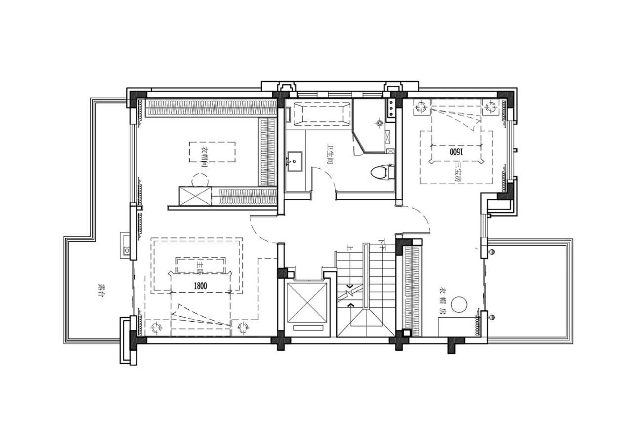
1F 2F 3F 平面图 P. 40
- 项目名称 -
华润桃源里别墅
- 设计总监 -
卫周敏
- 硬装-软装设计 -
万灵设计(合肥)
- 项目面积 -
室内 460㎡
景观 90㎡
- 项目地址 -
安徽 合肥
- 项目摄影 -
飞 羽
- 庭院绿化
娜时光
DESIGNER
卫周敏 万灵设计创始人-设计总监
万灵建筑装饰设计工程(上海/合肥)有限公司,简称万灵设计。于 2013 年创立于合肥,致力于为多种业态的高端客户提供高品质的室内设计和软装设计及落地服务。
主理人毕业于安徽工程大学艺术学院,专注于地产展示、酒店、餐饮、商业综合体、写字楼、高档住宅等。团队的每个设计师均具备丰富经验。公司系统化的运营模式和大型项目的管理能力,打造了一支极具行业竞争力的设计团队。
客服
消息
收藏
下载
最近

















































