查看完整案例

收藏

下载
Unbounded vision
客房的墙面选用微水泥,屋顶采用当地回收的老木梁,还有那些百年的老家具及工艺品,现代与传统相融,追溯自然,回归本质,在质朴与现代之间寻求平衡。
杭州澜廷设计
本项目位于浙江泽雅的一个小山村,一个隐于群山之中的村庄,村里就剩下些许老人和那些石头垒砌的房子。这些石头历经百年的风雨冲刷,长满了青苔和野草,它们饱含风霜像是与子孙们诉说着百年的寂寥。
▲项目概览
© Unbounded vision
▲建筑外观
© Unbounded vision
▲客房俯视泳池
© Unbounded vision
在亲水平台处,由上往下可以去往不同的空间,充满趣味和未知。同时这里也是去往客房、泳池、咖啡厅空间的一个交汇处和停留点。
▲由泳池看建筑
© Unbounded vision
▲泳池
© Unbounded vision
▲泳池近景
© Unbounded vision
▲泳池区域细部
© Unbounded vision
微光在线条与缝隙间随意穿梭,色彩交替中投下一片影子。穿过拱形隧道,沿着曲折的阶梯拾级而上,去感受大自然的魅力,让人对未来充满期待。
▲拱形通道
© Unbounded vision
▲接待厅入口
© Unbounded vision
▲入口阶梯
© Unbounded vision
▲接待厅户外
© Unbounded vision
几颗大树包围的接待大厅,屋顶长满了野草,石头墙上光影投射的平行线。建筑由石墙与老木料搭建,室内保留了石墙,和建筑形成呼应,同时保留了最佳视线。
▲接待厅户外
© Unbounded vision
▲接待厅室内
© Unbounded vision
咖啡厅和无边泳池面对着山谷,鸟语、溪流、对面的山林一览无余。咖啡厅墙面保留了质朴的清水混凝土,搭配中古家具,让整个空间呈现出质朴松弛的氛围感。大面积玻璃门,将面前的竹林引入室内。让绿意沾满双眸,品茗也好、阅读也罢,总归是平静、祥和。
▲咖啡厅
© Unbounded vision
▲由咖啡厅看泳池
© Unbounded vision
▲户外亲水平台
© Unbounded vision
▲咖啡厅与自然的联系
© Unbounded vision
▲咖啡厅细部
© Unbounded vision
▲书吧
© Unbounded vision
我们保留了原有的石头墙,缝隙里长满了自然生长的野草。通过空中廊道,进入客房,走到廊道的尽头,山谷与远处的景色尽收眼底。
▲1F 入客房通道
© Unbounded vision
▲2F 入客房通道
© Unbounded vision
客房的墙面选用微水泥,屋顶采用当地回收的老木梁,还有那些百年的老家具及工艺品,现代与传统相融,追溯自然,回归本质,在质朴与现代之间寻求平衡。
▲客房
© Unbounded vision
▲客房细部
© Unbounded vision
床背面是一个室内的泳池,墙地一体的材质,串联了不同的空间,给整个房间增加了些许浪漫。大面积的落地窗,提供了最佳的观景面。
▲浴室
© Unbounded vision
▲浴室细部
© Unbounded vision
项目图纸
▲总平图
© 杭州偲所设计、杭州澜廷设计
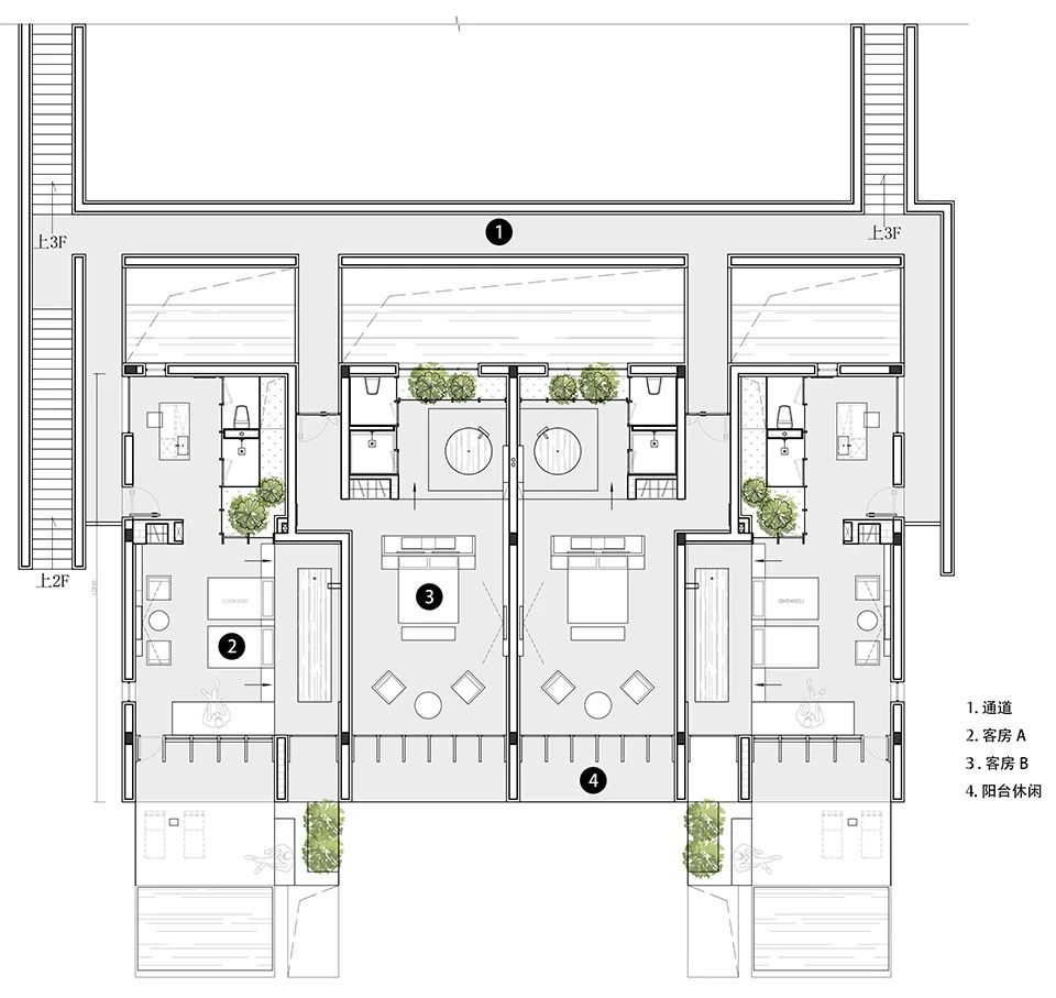
▲主楼一层平面图
© 杭州偲所设计、杭州澜廷设计
▲主楼二层平面图
© 杭州偲所设计、杭州澜廷设计
▲主楼外立面 1
© 杭州偲所设计、杭州澜廷设计
▲主楼外立面 2
© 杭州偲所设计、杭州澜廷设计
▲主楼外立面 3
© 杭州偲所设计、杭州澜廷设计
▲主楼外立面 4
© 杭州偲所设计、杭州澜廷设计
项目名称:秘伽度假酒店(一期)
项目地址:中国·温州泽雅
设计团队:杭州偲所设计、杭州澜廷设计
主案设计:吴小勇
参与设计:常欢、宋清芸
景观设计:李上扬
摄影:無介视觉
竣工日期:2023 年 06 月
占地面积:13850m²
建筑面积:2000m²
主要材料:石头、微水泥、老木板、清水混凝土
客服
消息
收藏
下载
最近





















































