查看完整案例

收藏

下载
力之感
古希腊尊崇理性主义,深信世间万物皆有定律。这种思想在几何学上尤为显著,体积、纹理、光线及颜色、建筑以及事物本身,均能透过完美的比例结合,创造出超越物质本身的卓越效果,而并非简单数量累加。
建筑大师密斯·凡·德·罗秉持“少即是多”的建筑设计理念,开创了流动空间的全新概念。
生活宛如一卷不断回放的卡带,
日复一日,周而复始。
构建一个城市居住空间或许并不复杂,
然而,
塑造一种真正独特且属于自己的生活方式,
则需依赖于多元化的精神构建。
空间的笔触循序渐进,从吸引到探索,走向更具象的内涵世界。
洄游秩序舒展叠面,千面生活打开多元视角,形态与每一个展示部分形成多层次,多维度的场景特性。
入户的设计思考,既非可走动的开口,也非窗户,而是引导生命、暗示空间功能的符号。以此点化空间的场域意趣,与微部小境肌理组合昭示,行之所至,移步易境,别有洞天。
斯卡帕的“波特莱尔”情节抗拒世俗对黑暗的负面理解,将反向视为正向力量、生命韵律的起始点,那些美丽至极的细部常常是转化自被视为残质或不得不出现的接缝。
居所已不再仅作为物理性质的作用,而是一种生活方式,一种内向主体性,一种哲学建构的空间性事态。
这一幕背景的引入,是好奇探索和欲望的开启,只有踏入其中,才能洞察生活的本质。
平滑的镜面金属与电子壁炉的结合让整个背景墙以异质的形态效果呈现,力的纠缠与渗入不断向上延伸,与此金属构造的特征彼此牵扯,在对视觉和触觉的细致繁复识别,空间构造问题回溯到身体空间和自由的活动空间之里。
交错空间里,生活格调与理性相互交织,形成一种沉稳而高雅的氛围。暗灰色调的运用,使空间散发出一种低调的奢华气质。看似规则的线条,实际上是对生活的独特解读和精心梳理。
构建秩序,立定视觉,空间投射设计的多元创想,每一处细节都被巧妙地安排和整理,将生活的故事一层层地展开。犹如一本令人着迷的书籍,每一页都充满了生活的精彩瞬间,每一次翻阅都能引起情感的共鸣。
意之痕
木色牵绕,引发内心曲线之韵,形成立体层次感,展现出结构规律的律动,诠释出艺术之美的独特魅力。
设计之精巧,令人豁然开朗,动线负责描绘现实,情感承载着虚远的意境。
一室之内,多元技法交织,情感交融,辗转间展现出独特的魅力。
意象是意识叩击物象产生独特想象的结晶。意象转化为影像后,相对于客观物象来说,是“它”,又不是“它”。好的空间精神是设计师不能丢弃的灵魂,好的作品能拍出来,让人感知,触动心灵,也是要通过人文内涵去点燃。
围而有开的游离,是空间属性表达的态度,木饰面暗藏经典的空间意向,使得整个就餐空间氛围别有格调,拥有最惬意的表达方式。生活不被定义,形、色、质融为一体,挑动想象。
体块在空间中变换、穿插、分割、再次重组自由分布却又协调共存。
吊灯与餐椅的完美搭配,交替出艺术与现实的碰撞,光线、质感,等世间万物有太多游弋于所谓的逻辑或体系之外。
形之语
设计将建筑美学代入空间,与原始的中规中矩里投下一波又一波的涟漪。光的凝固感、层次感,刻画空间本身的质感与张力,调性的丰盈,是空间形体和情感双重维度的关键词。
这样空间既是一种克制的隐退,又是一种引入探索的诱惑。
设计是美学和理性的复杂对比。以一种融入性的手法将客餐厅组织叠合,浸入式的生活体验介入空间秩序,再通过几何体、线条的置入来形成节奏,来控制虚实的错落,彼此穿插,材料与材质之间形成咬合,也运用光影、质感来寄予一种精神美感,与生活共生共存。
墙体之间、穿插手法构建出丰富的生活层次,其中,统一的空间材质为展示载体,于无序中建立有序的平衡感。光线映入,内外之间产生视觉连通与生活情境相互融合互动,万般惬意。
半叙烟火,半享清欢,生活情绪润物无声地连接空间与人的生活方式,自然与空间互为滋养,并在这悠然的时光柔波里漫溯。
仪式感是一件非常重要的事情,它对生活的重视,它让生活成为生活,而不是简单的生存。在梦幻中看见世界,就是在梦幻中看见自己。在梦幻中看见火、水、气、土,就是在自我与基本的伟大物质的认同中如梦幻般地意识到自我,这也是空间的诗意所在。
生活的旋律在几何体块的交错中轻轻响起,现代美学的质感与纯朴之情在空间场景中相互交融,为都市的喧嚣增添一份厚重与宁静。每一个细节都被精雕细琢,细腻的交融让人们在都市生活中始终不忘对桃源般诗意的向往与追求。
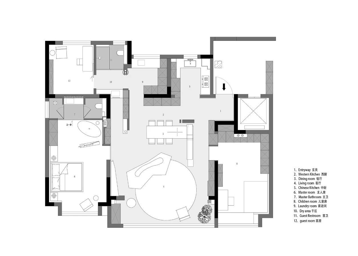
平面图
项目名称|克制的隐退
项目地址|中国 安徽 合肥
项目面积|178㎡
设计单位|佐岩艺作设计
总设计师|王滢
设计团队|董宁宁、张文强
完工时间|2023.10月
软装执行|筑漾软装设计
木作执行|蜂鸟木坊
空调执行|安徽极能机电
部分主材|广东荣高门窗、非木之间地板
内容策划|绽微文化
项目摄影|徐义稳
王滢
佐岩艺作设计品牌主理人创意总监
荧光绿®️设计创始合伙人及创作总监
坚持创意型设计
用建筑思维处理人与空间关系
佐岩艺作设计是一家专业的商业、住宅设计机构,设计聚焦于高端住宅、办公空间、体验空间、酒店、民宿、生活方式、提供国际化的建筑、室内、软饰、产品设计、品牌包装的服务、致力为全国地区客户提供专业的一体化、设计解决方案。
佐岩艺作站在更高的视野中去审视现代化的美学,用塑造空间的形式创造人们的记忆与情感,以空间的自发性和体验感为出发点,同时保持求知向上的探索欲让设计求真。坚持以设计价值的导向来专心服务每一位客户,平衡设计为美好生活带来的愿景诉求,一同携手做出理想空间的作品。
部分案例
天津设计办公空间|光之律动
△合肥住宅|公园里
正泰电器长沙总部
客服
消息
收藏
下载
最近






























































