查看完整案例

收藏

下载
一方天地,快慢有度,动静皆然。方知,有舍方有得。
听说那里有光。有光的地方就会有故事,而很多故事来自山里、田野、树林,如果你驻足停留,它会找到你,给你温暖和光明。这束光居翠林之间,伴田野清风,来到这里,你只需放空自己,慢下来生活。
慢方舍位于温州乐清市下山头村,坐落在有着世界上最多、最长、最高,以滑梯为主题的铁定溜溜乐园中。项目围绕现代农业观光创新,结合美学、文化、在地等元素将现代设计融于乡野意趣中。
沐浴在时间光泽下,简洁安静中的质朴的美。
▼前厅,lobby ©叶松
▼前厅细部,Details of the lobby ©叶松
There is a world, fast and slow, dynamic and static. Knowing, there is something to do.
I heard there is light there. Where there is light, there will be stories, and many stories come from mountains, fields, and woods. If you stop and stay, it will find you and give you warmth and light. This beam of light resides among the green forests and is accompanied by the breeze of the fields. When you come here, you only need to free yourself and slow down your life.
Manfangshe is located in Xiashantou Village, Yueqing City, Wenzhou City. It is located in the Tiedingyou Paradise with the largest, longest, and highest slide theme in the world. The project revolves around the innovation of modern agricultural tourism, combining aesthetics, culture, locality and other elements to blend modern design into the countryside.
Bathed in the luster of time, the simple and quiet beauty of simplicity.
▼休闲吧,Leisure ba ©叶松
▼餐厅,Restaurant ©叶松
▼亲子书吧,Parent-child bookbar ©叶松
▼包厢藏酒区,Private room wine area ©叶松
▼餐饮包厢A,Dining box area A ©叶松
▼餐饮包厢B,Dining box area B ©叶松
▼餐饮包厢C,Dining box area C ©叶松
以窗框景,一帧帧自然风光与空间相交辉映。
With window frames, frames of natural scenery and space intersect each other.
▼餐饮包厢D,Dining box area D ©叶松
从商业运营角度满足不同房型规划。每间客房大面积落地窗,最大程度引入自然采光,保证室内空间的通透。山野风光融于室内,年岁光景在窗影之间,通过日出与日落余晖,感受四季的更替。
From the perspective of commercial operations, it can meet the planning of different room types. Large area floor-to-ceiling windows in each guest room introduce natural light to the greatest extent and ensure the transparency of the interior space. The scenery of the mountains and wilds are integrated indoors, and the scenery of the years is between the windows and shadows. Through the sunrise and sunset, you can feel the change of the four seasons.
▼客房区过道,Guest room aisle ©叶松
客房室内采用质朴的老木板,结合暖白色灯光和艺术涂料将民宿融入自然。
The interior of the guest room uses rustic old wooden boards, combined with warm white lighting and artistic paint to blend the homestay into nature.
▼客房A,Guest room A ©叶松
▼客房B,Guest room B ©叶松
▼客房C,Guest room C ©叶松
望山、见田、醉心、田园
Looking at the mountains, seeing the fields, fascinated, pastoral
▼客房D,Guest room D ©叶松
▼客房E,Guest room E ©叶松
▼楼梯,由天窗照亮,staircase, lighten by skylight ©叶松
▼建筑总平面,Building master plan ©慢珊瑚设计
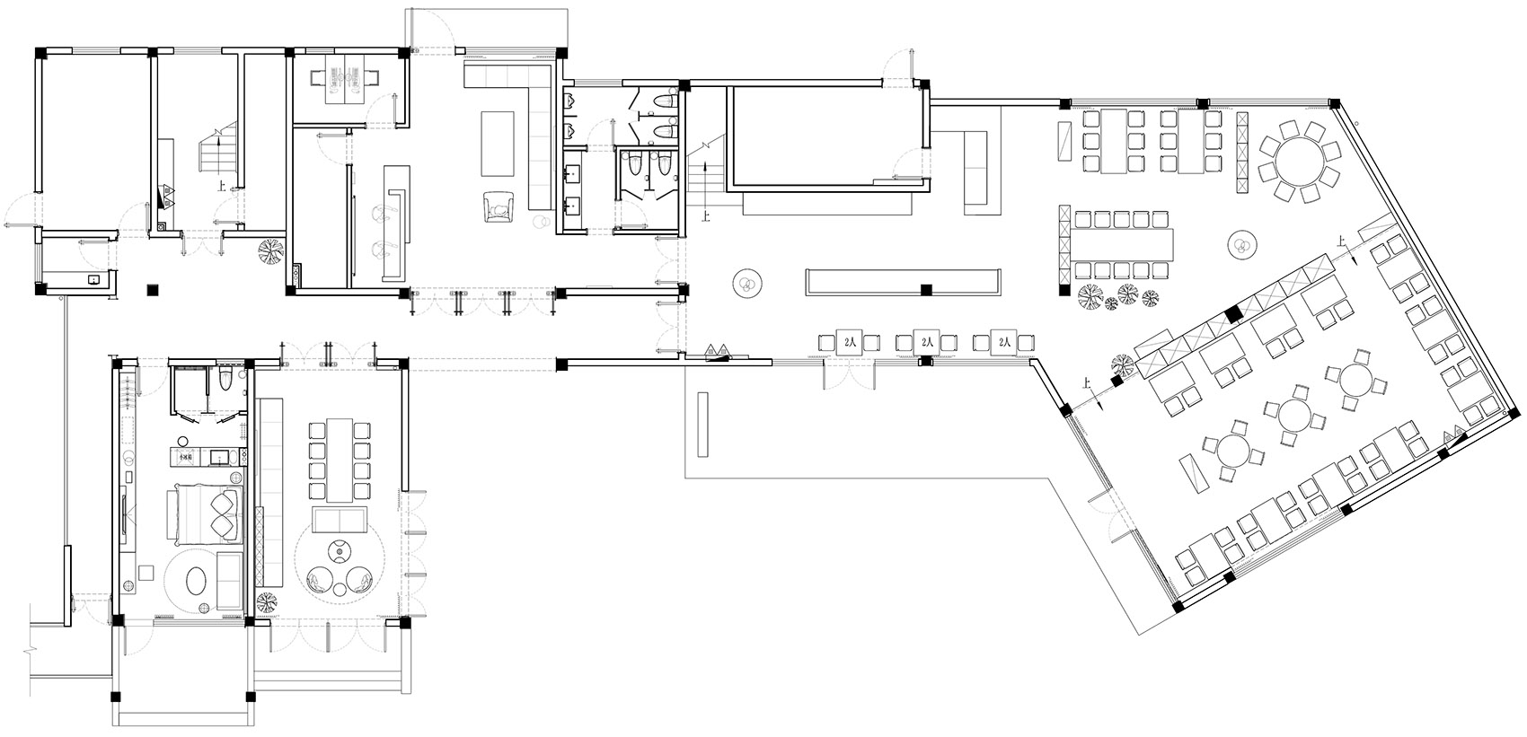
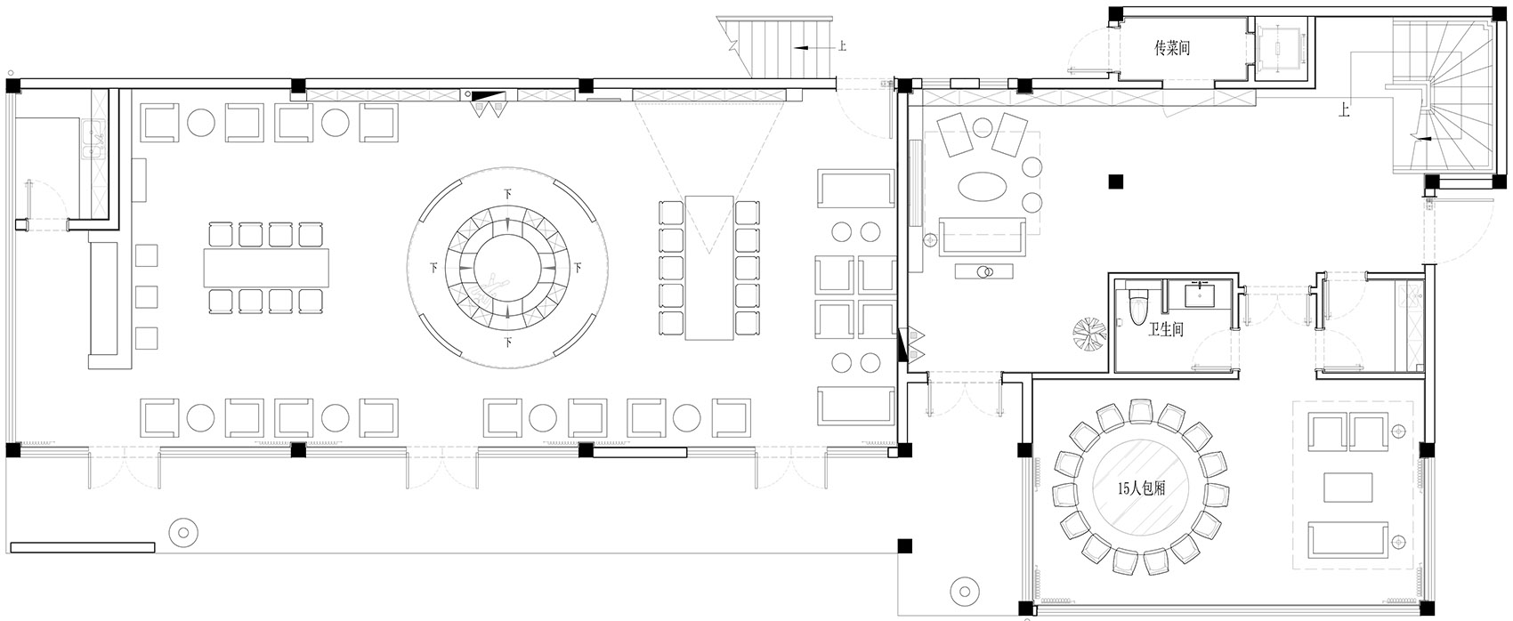
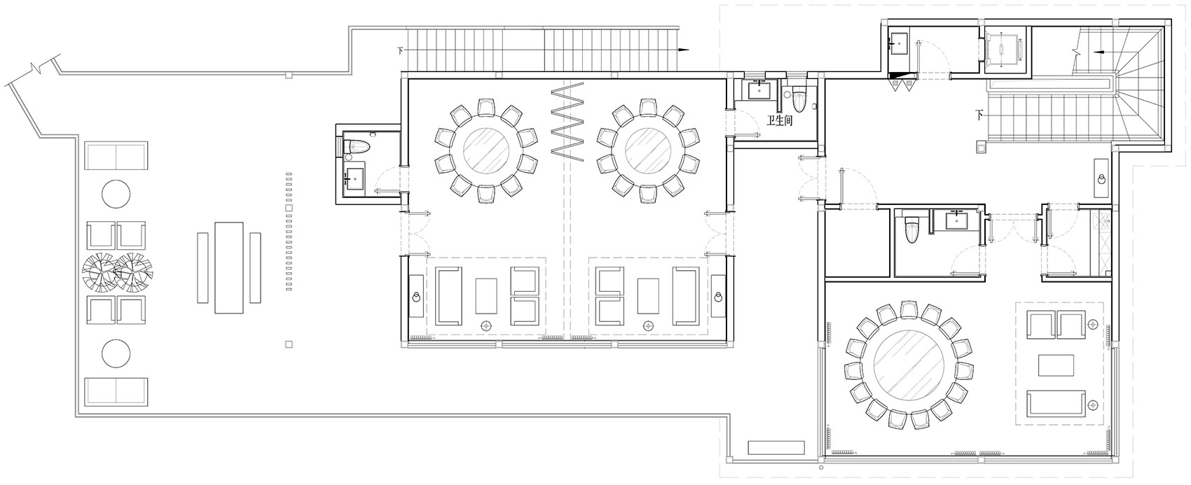
▼公区平面图, Public area plan ©慢珊瑚设计
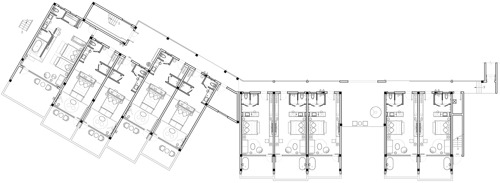
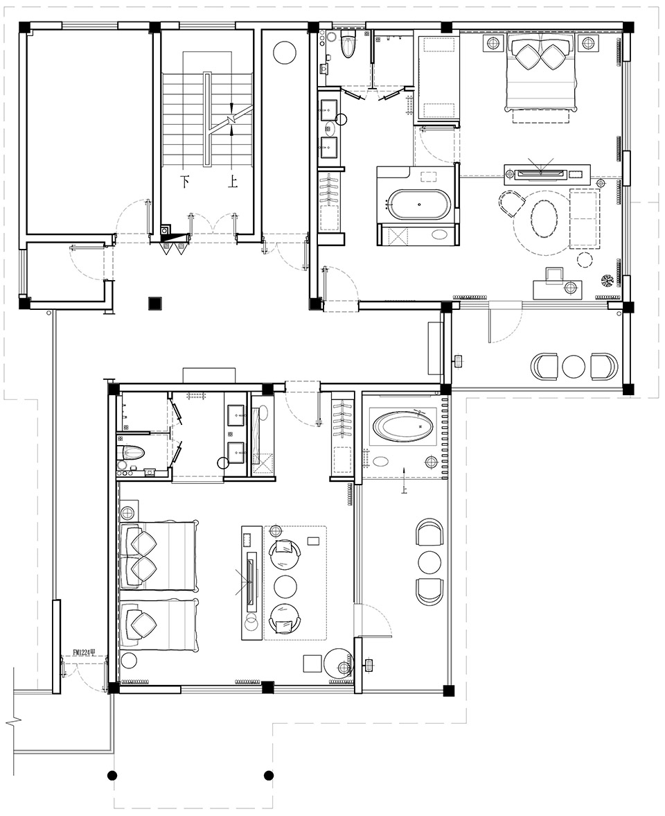
▼客房平面图,Guest room plan ©慢珊瑚设计
▼立面图,Elevations ©慢珊瑚设计
客服
消息
收藏
下载
最近




































































