查看完整案例

收藏

下载
山地土壤
浙江 义乌绿城桃花源510㎡别墅
现代极简居住空间中体积感、尺度的表达。
项目位于浙江义乌市绿城桃花源,远离城市中心喧嚣,僻静的环境属性和四层的建筑空间,使得设计的核心落于给居住者营造一个舒适且自由的生活空间。
室内面积约为510平方米,我们在设计上结合了对不同空间体积及尺度的思考,辅以现代极简风格和对细节的珍视、处理,让居住空间得以在悠久的时间里,合乎功能和日常使用的各种实际需求,同时也映衬出居住者的个性、生活方式和生活品味。
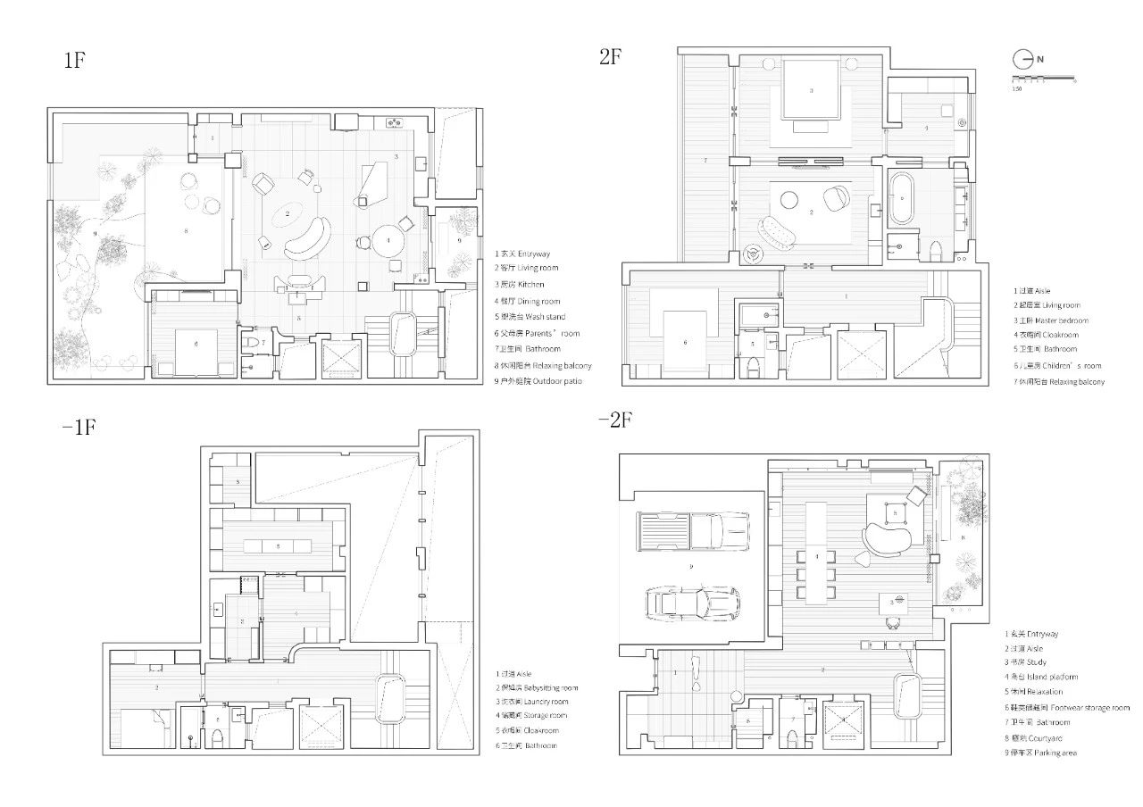
一层区域在平面规划中由三个主要的生活支点展开,分别为厨房、客厅以及餐厅。
厨房是居住者每日活动的中心,在体积和尺度感上,我们消除了墙体即存的边界线,空间得以延展,在整体动线上更加灵活多变,屋主们日后在厨房的使用中也能更好地互动、交流。
在厨房和餐厅连接的区块内,有一根建筑原有的支撑柱体,贯穿着天花和地面。在细节设计上,我们用三角改变原始的柱体骨骼形态,表皮则包裹上天然石材肌理。靠近餐厅的墙体结构内部为原始建筑排水管道,我们将管道的外围赋予秩序几何,再镜像复制,平衡视觉。
在空间的间离和链接上,我们在客厅和父母卧室的空间中增加了一条分割线,主单元与次单元以一种模糊的关系融合在一起。在分割的边线的细节处理上,设计师于此置入了一个立体装置,给予体积尺度感上的厚度支撑,同时与实用功能相结合,让此处空间成为一个独立的体系。
介入的全新装置不仅仅局限于体积造型感的表面,而是真正地满足日常生活的功能。项目中所有建筑自有的横梁和柱体,都有着不同体积尺度的处理,达到整体空间统一表达的极简之感美学。
二楼起居室与卧室休息区的顶部由一根抛物线连接首尾。在纵向轴线中插入边界墙体,左右两侧的移门消隐在墙体内侧。这样尽管主体相连,但却又保持各自的独立性。在负二层的顶面置入一个方形几何体,几何体的内部如同一个巨大的容器承载着储物功能。在其外侧,我们通过人为干预把几何体的网格边线向右侧移动,给居住者形成一个有意识的空间形变。在几何体外侧的挑空处,我们预留了五个透明的盒子,光引入室,通过光的阴影与折射给空间增添自然厚度。
所有的家具和功能区域都经过精心的布局,确保动线的合理流畅外,最大程度地优化到日常生活中的使用层面。在空间的材质和颜色选取上,设计师以呼应和对比的处理,呈现色彩和不同肌理的表现。休闲茶吧的储物柜体与墙体饰面,由两个不同颜色的木饰面拼接,在空间呈现的主要表面上形成对比。深色的柜体表面与折叠造型门相呼应,让材质与材质之间发生对话。
△建筑剖面图
项目名称:义乌桃花源住宅
项目类型:几何感、简约现代住宅
室内设计:杭州山地土壤室内设计
项目设计:2021年2月
完成年份:2023年02月
设计总监:董甜甜
项目地址:浙江省义乌市
建筑面积:510㎡
摄影版权:Wen Studio
灯光设计:华豪照明
施工公司:上海淳霖建筑装饰有限公司
主要材料:艺术涂料、铜、大理石
客服
消息
收藏
下载
最近

































