查看完整案例

收藏

下载
“大胆”的温哥华住宅:在泳池中加入水下窗户
▲ 这座住宅取代了“陈旧的上世纪 50 年代平房”
▲ 在游泳池设有水下窗户
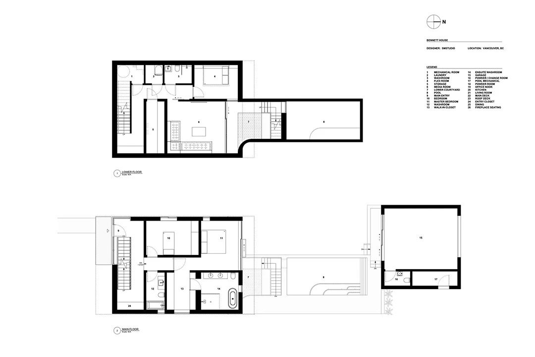
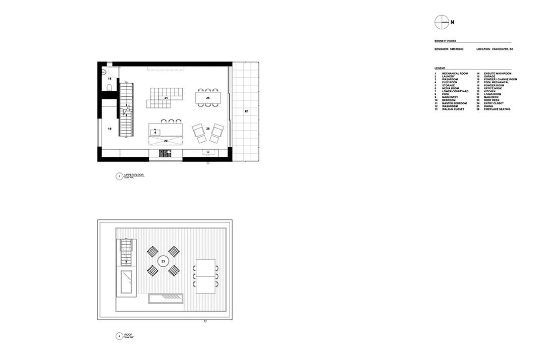
SM工作室设计的是一座 251 平方米的三层住宅,旨在“大胆而友好地融入社区”。除了别墅主体的三层楼外,该住宅还有一个屋顶露台、一个游泳池,后院还有一个 48 平方米的工作室和泳池。
▲ 在内部,SMStudio融合了天然和工业材料
▲ 住宅各层之间由一个立有金属网的楼梯连接起来
▲ 外墙由纤维水泥制成的方形面板包裹
▲ 天然石材、板式混凝土和花旗松的运用
▲ 整片玻璃给人以开阔的感观
▲ 住宅的中性色调内饰延伸至浴室
后院的独立建筑具有多种功能,可用作车库、工具间、创意工作室和游泳池。车库的卷帘门与邻近的公园相连。
摄影:Ema Peter
客服
消息
收藏
下载
最近



















