查看完整案例

收藏

下载
法式空间
ItalProject
望以轻松的法式“巴黎”风格进行设计,
空间布局
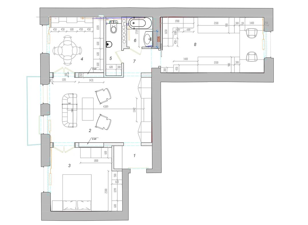
公寓不大,应该有一个大客厅,对于一家人来说尽可能大,里面应该有空间放置书柜、钢琴和各种东西。利用横杆下方墙壁的厚度来制作内置橱柜,将走廊的一部分连接到厕所,并将其打造成放置洗衣机的壁龛,并在里面放置一个小水槽。使用镜子扩大空间,卧室-客厅-厨房变成了一个连廊,与玻璃门结合在一起。
室内色调明亮,采用温暖的乳白色色调,营造出宽敞的感觉。
黑色点缀增加了对比:
客厅和厨房的吊灯、桌子、纺织品、钢琴。
设计师们表示:
“该项目涉及营造一种带有淡淡巴黎风情的优雅女性氛围。
卧室非常紧凑,但里面有一个小工作区和一个内置的存储系统,可以容纳大量的书籍。
女孩的房间是对称的
这里的空间被柜子分成两个功能区:
睡眠区和学习区。
客服
消息
收藏
下载
最近





















