查看完整案例

收藏

下载
纽扣寓意连接
Button亦象征着启动键
在温暖的光中组织起常见型材
其余的氛围构建交给时间与友谊
一间小而美的社区咖啡馆由此而成
几个好友发起的共创项目也温暖落地
Cafe: Button
Cafe :: Button诞生于一场朋友聚会。喜欢咖啡的大毛、做vi设计的超哥与擅长空间营造的设计师寿如松,三个老友灵感碰撞,就以“纽扣”为意向串联起品牌与空间的关系,开启了一场化解空间弊端、释放场景可能的低成本改造探索。
空间位于一层底商,近地下车库入口处,位置条件并不优越。创造一个能引人注目,又充满亲和感的外在空间印象,是向过往行人发出的无言邀请,也成为由外及内推动设计呈现、由始至终贯穿空间表达的关键。
纽扣创建情感连接
纽扣-Button,对于品牌来说是一个具象的符号,寓意着与消费者的连接,而落地到空间中,又成为串联起空间细节的线索。
一如尽可能保留原貌的门头,由简洁的店招点题,再进一步延伸纽扣的符号意义,成为点状的“P”字,代替原本的蓝色停车指引,于保证功能性的前提下,将空间与品牌融入场地。
为了营造更加亲和与友善的步入感,老友们重新设计了原本平开也有些沉重的门。以斜向的贯穿拉手呼应内部场景,以把手上端的店名细节突出精致思考,并去除了原有的lowE贴膜,让空间尽可能地向外通透敞开。
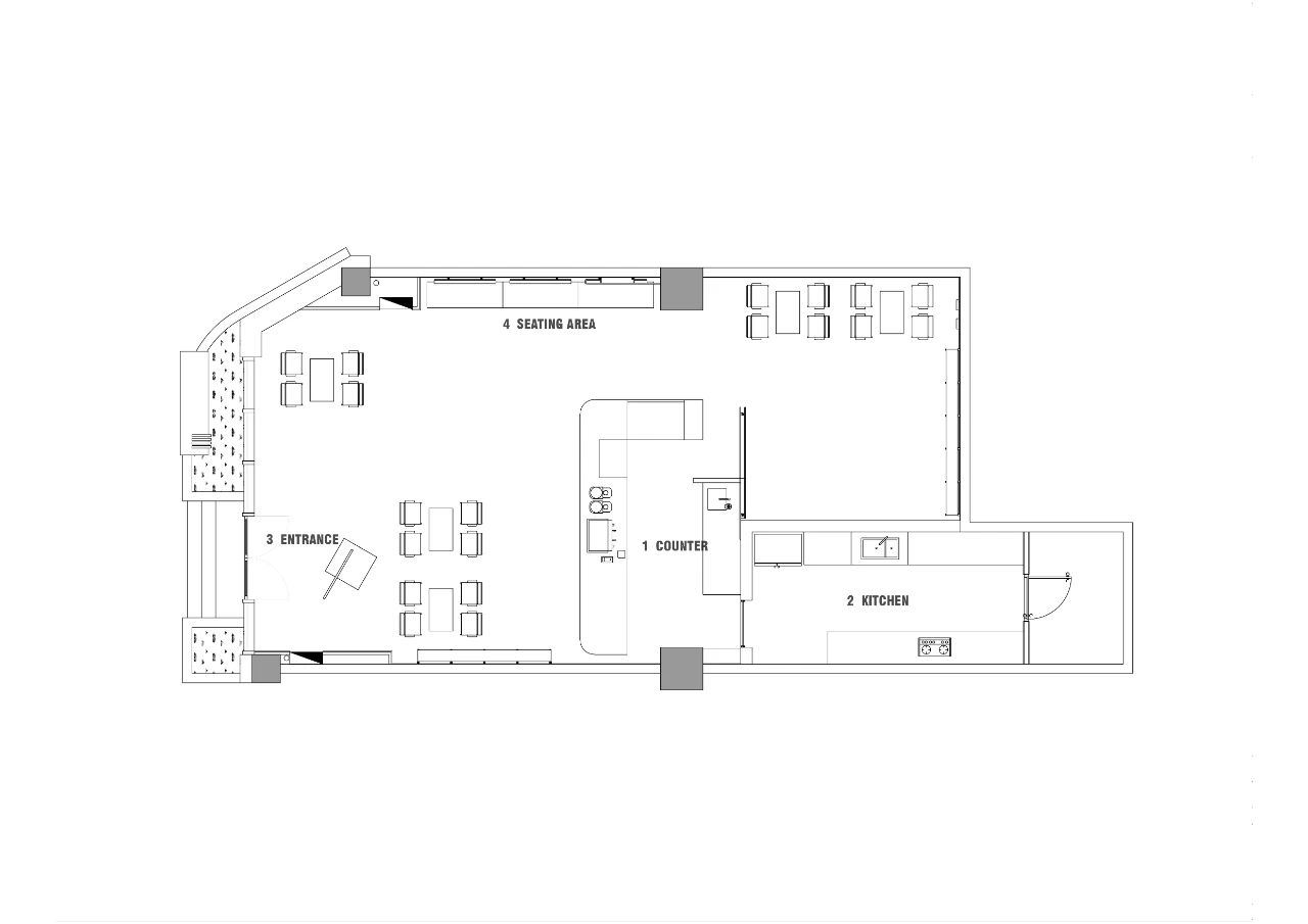
推门而入,半高的粉色亚克力板与定制的箱体轻盈间划定动线,让来者在隔而未断的视域内将空间尽收眼底——宽大的吧台便于操作,或围桌团坐、或邻墙独坐的品饮区域,满足多样化的人群需求。
型材构筑灵活空间
综合成本与环保考虑,室内空间更关注功能的实用。但基于当下咖啡馆依赖空间审美的传播需求,设计师提出以桦木板与铝型材构筑空间基础的解决方案。而唯一需要封闭的厨房区则以红砖砌筑,构建整体呈现灵活可变且兼具自然与工业双重感官体验的公共空间。
节之处的精心设计,则让寻常可见的材料带有独特的空间印迹。采用横4竖4砌筑方式的红砖墙,呼应着品牌logo中的4个圆点;肌理强漆薄刷后的墙体,显示出混凝土的粗粝与其被中和后的质感……
同样由桦木板与铝型材定制的吧台,作为空间的核心结构,通过合宜的尺寸,消解空间纵深过长的尺度感。其简单纯粹的造型,不会过多攫取消费者的注意力。而在点单之后,他们才会或是顺着材质的统一表达,或沉浸于咖啡香气的氤氲里,进一步探索空间。
墙面的处理也遵照如工业化生产的秩序逻辑,构成混凝土、墙漆与延展开的铝型材三个层级,而在其上形成的卡槽延伸、帆布套锈钢管伸展而成的陈列板及固定于铝型材上的灯带则为趋于“成品”的最终装饰性层级。空间有金属般的现代感,亦有木质的天然感,粗犷与精致混合、渐进,自成语序。
暖光交织亲和场景
恰到好处的灯光,会营造人与空间氛围的深度连接。场地顶部虽然原始但仍显规矩与整洁的条件,激发着老友们的灵感,选用灯管矩阵的方式与本有的梁结构形成呼应,调整后的暖光则负责店面基础氛围的烘托。
灯全部选择成品灯具,仅以黑色线盒与镀锌钢管梳理走线,波浪形的曲度设计带来流动感,吊装至妥当的高度亦为顶部空间带来疏密有致、层次分明的结构表达。红色的消防喷淋装置得以原样保留,成为其中亮眼的串联元素,亦是空间中颜色组合的“鲜艳另类”。
家具选择上,也延续着空间中的应用材质,以桦木板和铝型材结合的桌椅为主,并搭配一些露营用具,力求达到轻松与亲和的场景氛围。
而这也正好与空间最初的构想不谋而合——是三五好友的聚会地,是周边工作或居住的人们偶尔休闲、放松的“附近”。
afe :: Button以品牌元素的自然植入,代替了复杂的体块与装饰,老友们将精力用于空间细节的打磨及场景的构建,共同完成一次有关社区咖啡空间的低成本共创尝试。
在宽敞无遮蔽的场景中,暖光连接内外,纽扣系起的不仅仅是人与空间,或是人与咖啡文化,更是在拉近围桌品饮的人们的关系,是为某种有关公共性亲密关系的重建。
项目名称 |
Cafe :: Button 纽扣咖啡
室内设计 |
MOON LAB
设计团队 |
寿如松、潜坤
平面设计 |
设计时间 |
2022.09-2022.10
完成时间 |
023.05
项目地址 |
杭州市临平区商会大厦D座
建筑面积 |
120㎡
施工团队 |
杭州智悦装饰工程有限公司
施工材料 |
陶土砖、桦木板、铝型材、无机石板、水洗石、绿帆布
寿如松
MOON LAB创始人
013年毕业后从事建筑设计工作,2018年开始进行独立设计工作,2019年创立MOON LAB
曾入选有方空间中国年轻建筑事务所
MOON LAB是一家多元化的设计事务所。设计内容包含了建筑设计、室内设计、家具设计以及音像拍摄等服务。致力于更深入的理解空间与使用功能之间的关系,并结合行为、情绪、体验,将其转译之后重新呈现。
客服
消息
收藏
下载
最近






















