查看完整案例

收藏

下载
年驿道此穿行,雨霁天高绿蔓婴
历史的风从不停歇
在青石文化的脉络里滋养着人文情结
写实成当代,逐情生仪式
精神的自由,不囿于时间,不困于空间
△项目视频
本案于建筑上做了大量改建工作,将联排别墅打通,融合为一座系统性的独栋别墅生活。浓郁的人文古雅与当下1500㎡墅居的奢享,光影协同自然的赋诗与当代多元艺术美学的风尚,生活的整一性与不同时刻的片段体验,在同一空间达成了高度默契……
这是一次居者生活理想的空间转译,亦是一场室内“游园”的精神朝圣。设计在表达的展开上,将疏密得宜,曲折尽致与眼前对景之游园的精髓一网打尽,于境界上亦是层层递进。
东方人居特有的诗意以空间为语言,诉说得淋漓尽致,最终抵达人居生活理想的精神性层面。
叠光幻影
OVERLAPPING PHANTOM
园林的底层逻辑,于室内造 “园”,是室内表达的核心要义。
旋转楼梯是主轴线,打破常规的动线,循着光影寻踪的叠曲,将空间的叙事,与人物生活的叙事,纳于统一篇章之下。
光影和自然,于建筑体和空间中极尽渲染之能势,静态之中生出气象万千。光这一永恒且流动的情绪催化剂,负责探索另一脉“曲折”的营造,跃动了秩序,穿插于体块。
看似漫不经心,早已勾勒出空间的边界,谱写空间艺术的架构,将建筑的三维尺度升华为四维的精神,美即刻被感知。
恢宏格局的天赋下,洄游式动线的外在形态,伏笔着居者未来的生活将如何展开。在时间的流线逻辑里,不同分区的特写,侧写,呼应等多变模式,建立起空间与空间不同的主次关系,也生发出人与空间碰撞出的不同故事可能,重复的生命篇章便多了些不期而遇的意趣。
曲折尽致
FULL OF TWISTS AND TURNS
自然与秩序共处一室,导向了自由主义与精致主义的双向诉情。在白色主导的纯粹色调里,自由精神浮想出无比丰富的内容。一波三折的转折性空间叙事,让有序走向变幻多姿的余味无穷,不同空间的边界被打破,看似模糊的关系里,早已伏笔了功能与氛围的过渡。
建筑是本体,建筑亦是喻体。设计于室内造园,可观艺术小品之意趣,亦可见精雕细琢之雅情,将国人居住的诗意情结淋漓释放。借“梯”发挥,旋转楼梯成为功能与造境的双重媒介。以此为节点,不同空间功能依次环绕于其周,疏密有致,视觉自成不同切面。场域随身辗转,生活丝滑流动。
艺术自带形而上的天赋,是化俗常平淡为神奇的密码。视觉可见的物与物的写实体,宏大与精微写就的多维情感寄予,在四季流转中呈现出每日景色各不同的人文治愈,背后隐喻的主张与精神言有尽而意无穷。
光影斑驳着跃动,石材凝结着亘古。心灵对自然的朝圣,以疏影横斜一笔点化。艺术的个性张扬,只需一抹红色舞蹈的催化,便于稳固中骤生幻变。
自然与艺术融于一境,转译为生活中的丰盈仪式,生于野,安于室的国人终极生活理想被打开。
设计反其道而行,打破生活场景的平铺直叙。曲径通幽的园林古意,增持了引人入胜的婉转,经现代语境的点化,顿悟“隐”与“现”的恰如其分。
旋转楼梯以默契的会意,重新定义了烟火与诗情的边界。或遮挡,或半掩,营造曲折的朦胧意蕴,后至豁然开朗。
移步异景,形万变,意永恒。
精神绿洲
SPIRITUAL OASIS
以精神为线索的叙事脉络,始终藏着一份对高品调性的执着。或用微部的流光去着锦俗常,缔造一场盛大的格局自我加冕;或泼墨晕染留白,安静地品味奢享的真谛。不张扬,自昭示,在简素的色彩构成里,将奢隐于雅中,凝练为更高级的写意。
场域的表达,归根结底是人之精神的识别。一镜到底的格局辽阔,一念致远的艺术遐想,皆是居者自在生命美学的转述。可与自然天地对话,可在艺术里遨游想象,亦可从容切磋漫长的岁月,方是高格者的人生境界。
洗尽铅华不著妆,一般真色自生香。
当卧室空间走向私密的自我,更尊重居者本心素情的回归,简单原色的纯粹,是于繁华都市生活里盛放的精神绿洲。
昼可闲观云卷云舒,月下无拘尽慵懒,所有向往可达的潜台词里,都是悦己的精神属性。
△负一层平面
△一层平面
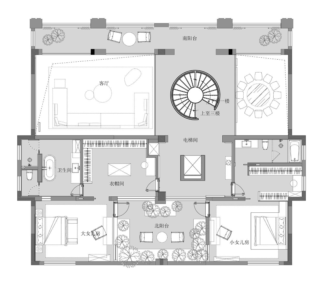
△二层平面
三层平面
项目名称丨水木世家
项目地点丨中国 四川 隆昌
建筑面积丨1500㎡
设计公司丨浙江安生建筑设计有限公司
总设计师丨吴振宝
设计团队丨陈钇达、陈建东、任杰
设计时间丨2020年10月
竣工时间丨2023年10月
施工管理|郭伟
艺术陈设|1637ART
木作执行丨重庆梵蒂尼Vantini casa
照明设计|想天照明
空间摄影丨徐义稳
空间视频丨郭明泽
内容策划丨清歌传媒
吴振宝(Answer wu)
诗意东方人居美学探索者、表达者
ANSWER安生设计创始人及创作总监
1637艺术陈设创始人及创作总监
专注于室内设计15年,深受江南韵与骨的文化熏陶,自成一脉「诗意东方」的核心设计体系,自然美学与人文精神的立体坐标,是这一表达的两大脉络。在他的设计哲学中,“诗意东方”起于形,超于象,忠于意。东方为根脉,当代作维度,自然生长出无限诗意。设计在他笔下,化为造境的艺术,依托自然,发乎于心。更像是一场人与空间,与世界万物,与艺术精神等形而上的先锋探索。“审美性”为索引,“精神性”是指向。
寻找生活方式多元答案的探索,是安生设计的思维哲学。安生设计生发于“Answer”,始终在发掘设计的核心价值,即解决不同问题的提出,依托室内设计、环境建筑设计等全案一体化综合能力,为每一次委托交付最佳答案。
生活方式表达的场域转译,是安生设计的创意脉络。设计的视野不囿于空间类别与技法之间,人居,商业办公、实验性空间等皆在叙事范畴内。安生设计以诗意东方的探索为核心,当代的手法落笔艺术韵脚,一切场景美学的营造之外,早已指向空间对人的人文滋养和精神浸润。
安生设计部分案例
△流光溯影,自由艺术·安生设计办公空间
△ 安生自宅
△金色黎明
△gorenje展厅
△ niko服装买手店
客服
消息
收藏
下载
最近



























































































