查看完整案例

收藏

下载
图尔库新城市图书馆坐落于城市的历史中心,与旧图书馆相连,周围的建筑具有较高的历史价值。场地的历史和文化价值对新设计提出了挑战。建筑不仅需要顺应周边的历史环境,也要展现现代建筑的特色。在城市规划方面,设计应遵循城市网格,填补街角空白,修复城市肌理。
The new city library in Turku is located at the historical centre of the city. The building is the latest addition to a block with the old library and several other historically valuable buildings. The historical and cultural value of the site presented a great challenge for the planning of the new building. The objective of the project was to create a new construct, which would harmonize with the historically invaluable setting while also manifesting an architecture of its own age. In terms of urban planning the goal was to fill out the open and unstructured street corner by following the edges of the existing urban grid.
▼从街道看图书馆,周围是历史建筑,view of the library from the street, among historical buildings © Arno de la Chapelle
▼街角建筑入口,修复城市肌理
entrance, filling out the unstructured street corner © Arno de la Chapelle
建筑师将实体布置在外围,在场地中留出了开放空间,为娱乐和文化活动提供舞台。新建筑内部与已有100年历史的旧图书馆大楼以及19世纪的总督府相连,后者经过修复与改造成为新的咖啡厅和会议室。
By constructing the building on the outer perimeter, we were able to provide an open space in the middle of the lot, which was designed to serve as a courtyard for recreation and a stage for cultural events. The interior of the new building is annexed with the existing 100-year old library building and the chancellery of the governor built at the beginning of the nineteenth century, now restored and transformed to facilitate a café and meeting rooms.
▼从内部庭院看图书馆,view of the library from the courtyard © Arno de la Chapelle
新图书馆功能明确。公共空间主要位于面向庭院敞开的两层,工作区域则自成系统,布置在面向街道的一侧。接待处、休息区、儿童与青少年阅览区均在一层,名为“新闻市场”的现代风格的期刊阅览区连接着新图书馆和旧建筑。通过主楼梯可到达新图书馆的主要阅览空间,这个大空间内布置了非虚构类的书架和阅览区。未来随着新媒体的引入,图书馆的功能将发生根本性的改变,因此空间采用灵活的布局原则,仅由可移动家具在开放空间内划分了功能。
The new library has a functionally clear design. The public spaces are situated mainly on two floors surrounding the opening to the courtyard. The staff premises are located systematically on one side of the building facing the street. The new main entrance opens onto the corner of two main streets. The first floor has a reception and lounge area, a children’s and youth section, and a modernized version of a periodicals reading room called the news market, which functions simultaneously as the link between the new library and the old buildings. The main room of the new building is reached through a main stairway, which opens to a monumental space containing the non-fiction stacks and reading areas. The guiding principle in the space planning was flexibility; the functions of the library may change radically in the future with the introduction of new media. The rooms are open, and the functions are limited only by the transformability of the easy-to-move furniture.
▼图书馆大厅
lobby of the library © Arno de la Chapelle
▼一楼的儿童与青少年阅览区
the children’s and youth section on the first floor © Michael Perlmutter
▼楼梯通向二层主要阅览空间,the stairway leading to the main room on the second floor © Michael Perlmutter
▼主阅览区的大空间宽敞明亮,the monumental space of the main reading area © Michael Perlmutter
▼大空间通过天井与一层互动,the monumental space interacting with the first floor through the patio © Michael Perlmutter
▼非虚构类阅读区
the non-fiction stacks and reading areas © Arno de la Chapelle
▼夹层丰富了空间
spaces with mezzanine © Michael Perlmutter
▼阅读区有充足的自然光
plenty natural light in the reading area © Michael Perlmutter
▼屋顶露台
roof terrace © Arno de la Chapelle
▼通向旧建筑的“新闻市场”区,”news market” zone, as the link between the new library and the old buildings © Arno de la Chapelle
建筑的材料顺应环境。外墙的抹灰来源于街区中建筑的主要材质。建筑师起初曾想用红砖材质,建造街区中唯一的砖砌建筑来强调图书馆的地位,但最终放弃了这个想法。外墙、楼梯和地面上广泛使用了天然石材,室内的大部分墙体和家具则主要采用欧洲橡木。建筑结构由混凝土现场浇铸而成,作为室内设计的重要元素暴露在外。清水混凝土由垂直模板压制而成,赋予材料粗糙的特质。从室内外看,玻璃都是极为重要的材质。从设计开始,玻璃便显而易见地成为建筑师的最佳选择。公共建筑适合使用大量的玻璃,透明、开放的图书馆可以促进开放的思想。
The materials of the building were chosen to accommodate the environment. The facades are mainly plastered, which is the predominant material of the old buildings in the block. Initially we considered using red brick, but gave up the idea to allow the old library building to remain the only brick building on the block thus emphasizing its primary position in the neighbourhood. We also used natural stone extensively on the facades, the stairway and the grounds surrounding the building. In the interior we used mostly European Oak in the wall furnishing and furniture. The structure of the building was made from concrete cast on site, which was left exposed as an important part of the interior design. The fair-faced concrete was formed with vertical boards to achieve the rough feeling characteristic of the material. Glass was given a seminal role both in the outer architecture and the interior world. From the first steps of the planning process it was clear that the exuberant use of glass would be the best choice. Transparency befits this type of building; a public library building should evoke the idea of openness.
▼材质细节,立面遮阳的磨砂玻璃
details, frosted glass for facade shading © Michael Perlmutter
▼材质细节,螺旋楼梯内部材质
details, internal material of spiral staircase © Asmo Jaaksi
项目旨在建立起适应未来挑战的新图书馆,同时也继承当地悠久丰富的历史。图尔库城市图书馆成功地将过去与未来凝结成一体。
The basis of the planning was to create a new library to meet up with the challenges of the future. At the same time, the library has a long and rich history, which the architecture should also take into account. The architectonic whole is formed from the union of these two oppositions, the past and the future.
▼夜景,通透的公共空间,night view, transparent public space © Michael Perlmutter
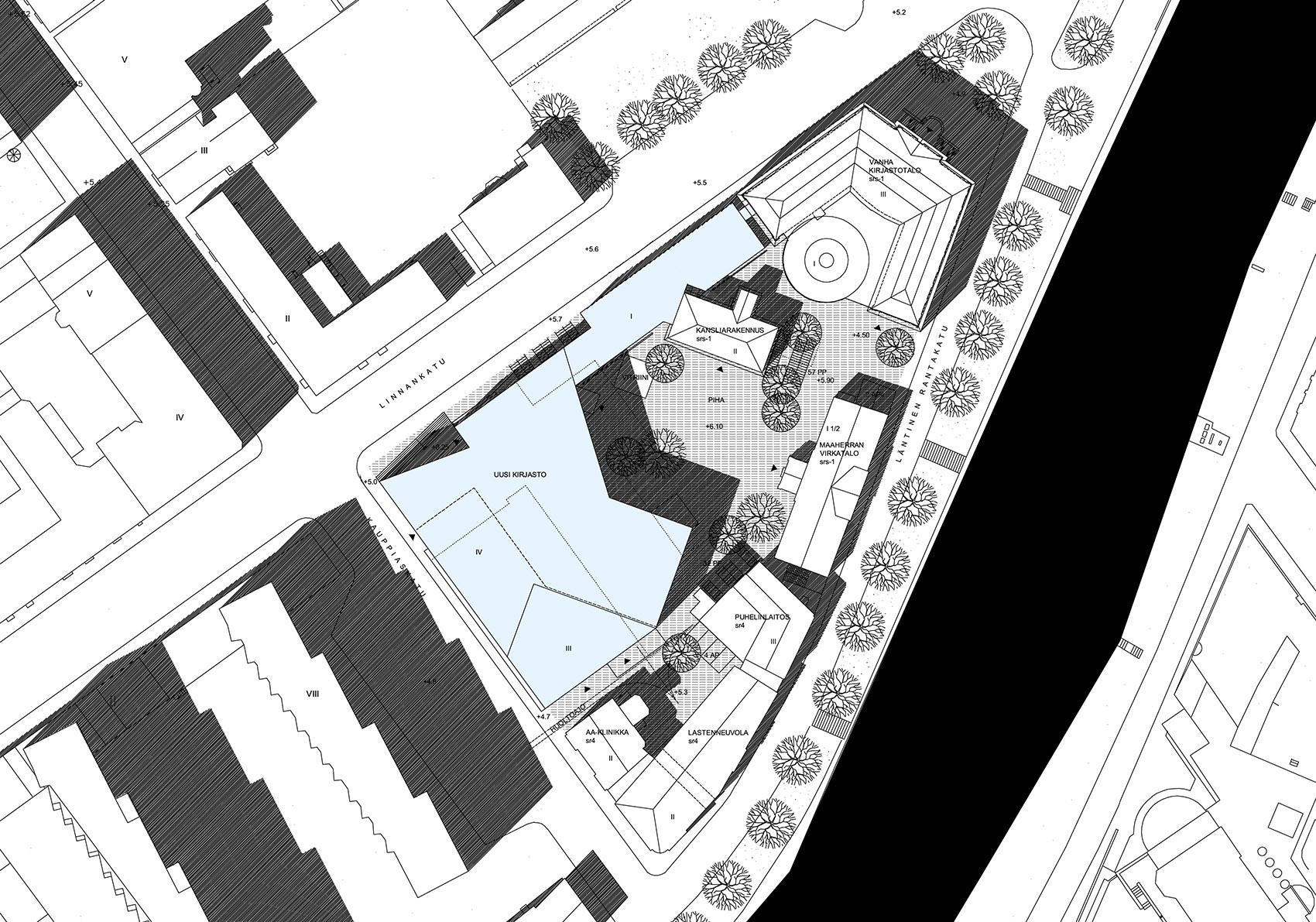
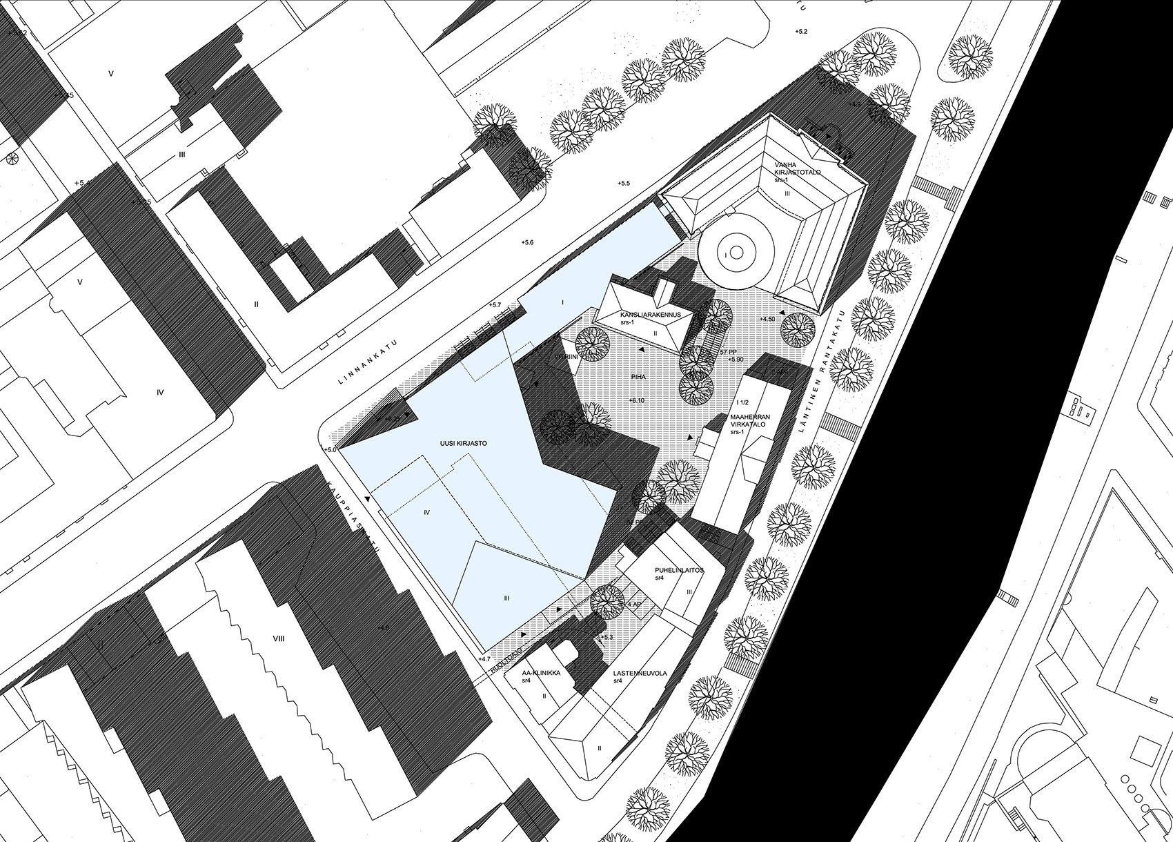
▼总平面图,site plan © JKMM Architects
▼一层平面图,the first floor plan © JKMM Architects
▼二层平面图,the second floor plan © JKMM Architects
▼三层平面图,the third floor plan © JKMM Architects
▼东西剖面图,east-west section © JKMM Architects
▼南北剖面图,north-south section © JKMM Architects
项目名称:图尔库市图书馆
项目地点:芬兰图尔库市
建成时间:2007年
建筑面积:6900平方米
设计单位:芬兰JKMM建筑师事务所
主创建筑师:Asmo Jaaksi 、Teemu Kurkela 、Samuli Miettinen、Juha Mäki-Jyllilä
建筑师:Mikko Rossi、Katja Savolainen
室内设计师:Päivi Meuronen
景观设计:Molino Oy
结构设计:Narmaplan Oy
暖通设计:Elomatic Oy
电气设计:Pöyry Building Services Oy
总承包:NCC Rakennus Oy
电气施工:Turun Valo ja Voima Oy
空调施工:Tekmanni Oy
水暖施工:YIT Kiinteistötekniikka Oy
喷淋施工:Kaksoisputki Oy
摄影:Arno de la Chapelle、Michael Perlmutter
客服
消息
收藏
下载
最近








































