查看完整案例

收藏

下载
“萨和”(SAVHE)起源于傈僳族语言中“呼吸”一词,来自于亚朵品牌的发源地,也是本案的灵感来源。为了营造酒店的精神场所“萨和”,我们改造了原有公寓中空置的天井,与书店的阅读功能相结合,塑造它成为一个“会呼吸的空间”,让人们在繁忙的大都市中能够沉静下来,关照内心。
The project draws inspiration from the concept of “SAVHE”- meaning “the respiration” in the language of LISU minority group, which is traced back from the place where the hotel brand of “Atour” started. We reshape the originally wasted open space inside a service apartment and transform it into a spiritual space “SAVHE” for the hotel. It features a reading function and creates a moment of reflection in the hustle-bustle of the city.
▼项目概览,project preview ©吴清山
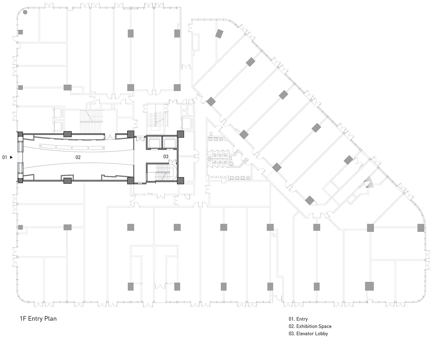
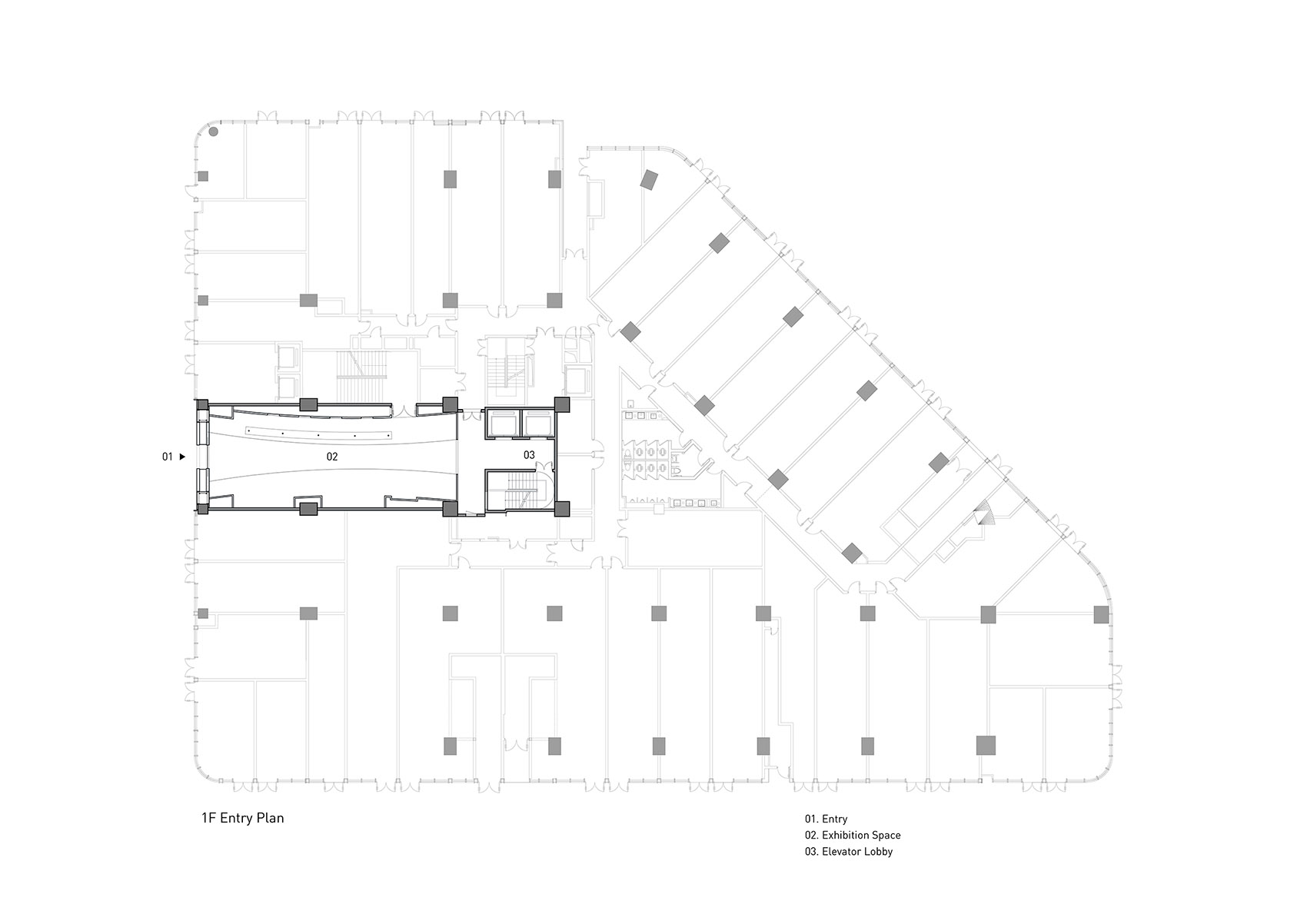
访客由一层展厅进入,乘坐电梯到达三层大堂。这个穿行的体验是酒店的第一印象,我们希望它如同一场超现实的时空穿越之旅,让人们在欣赏艺术的同时,能够转换心情以迎接入住。因此,展厅就是一个“时空隧道”。品牌Logo演变成为了银白色的A字造型的天花,漂浮在昏暗的空间中,成为一个醒目的装置,吸引着过往行人。
To enter the hotel, visitors are guided through an exhibition space at ground level and brought up by elevators to the reception on third floor. The exhibition area is designed as a “time tunnel” that aspires to create a surrealist experience of travelling in outer space. The journey brings visitors passing through art works and reshapes their state of mind before check-in. An illuminated pitched ceiling, inspired by the company logo, hovers above the dark space as an eye catcher, attracting people from the street to come in.
▼入口空间,entrance ©Atour
▼乘坐电梯到达三层大堂,hotel lobby on the 3rd floor ©吴清山
▼接待区域,reception ©吴清山
酒店的接待大堂最引人注目的是“萨和”空间——它是一个七层高的三角形中庭,旨在鼓励人们放慢节奏、呼吸冥想。它高拔的尺度让我们联想起过去曾经到访过的教堂。我们希望强化这种竖向空间的精神性,引导人们的视线一路向上到达天空。中庭由连续的三层高的书架墙所包裹,上层建筑立面使用了接近的材料颜色来加强延伸感。一个透明的薄膜天棚加设于原有屋面结构之上,保护“萨和”不受风雨侵扰,也最大化引入了自然光线。一个倒影池居中而卧,天光云影徘徊,渲染出沉静的氛围。
▼剖面透视图,sectional perspective ©吴清山
The hotel reception features a triangular atrium of 7 levels- the “SAVHE”. The “SAVHE” is designed to achieve “A moment of Respiration”, where the visitors are invited to slow down, pause and meditate for a while. The striking scale of the space is reminiscent of those in chapels. The verticality is celebrated to draw our views all the way upwards to the sky. The atrium is enclosed by a continuous bookshelf spanning 3-stories high, together with the upper building facade painted in matching color. A transparent membrane canopy is added on top of the opening, protecting the space from weather while allowing natural light to cast down and enliven the space. A reflection pool centers the atrium and captures the changing light of the day and renders an atmosphere of serenity.
▼“萨和”空间——一个七层高的三角形中庭,the “SAVHE”— a triangular atrium of 7 levels ©吴清山
▼中庭由连续的三层高的书架墙所包裹,the atrium is enclosed by a continuous bookshelf spanning 3-stories high ©吴清山
▼透明的薄膜天棚加设于原有屋面结构之上,a transparent membrane canopy is added on top of the opening ©吴清山
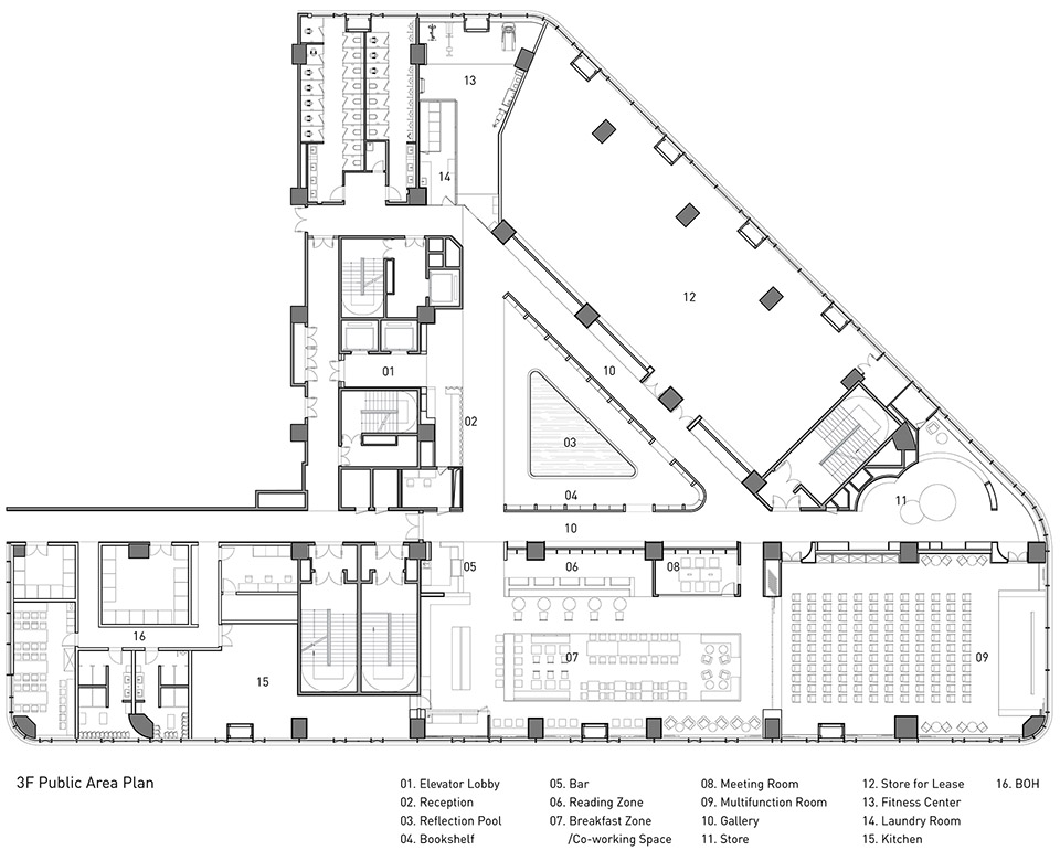
酒店的公区不只服务于住宿客人,而着眼于创造多种类型的共享空间,包含书店、轻吧、早餐厅、联合办公、多功能厅等,形成服务于邻里的社区化酒店。由于原有结构梁深的限制,我们设计了一个连续的斜面折顶天花,它作为极具视觉张力的空间元素贯穿于整个公区,串联起下方多元的功能,也巧妙隐藏了原有结构的不利因素。
Instead of simply servicing the guests, the public area of the hotel houses all sorts of shared programs bringing in people from the neighborhood- a bookstore, a bar, a breakfast station, co-working space, event space, etc. A continuous angled ceiling folds and extends in response to the structural constraints of deep beams, and acts as a powerful architectural element that ties together the diverse programs underneath it.
▼公共区域,public area ©吴清山
▼连续的斜面折顶天花贯穿于整个公区,a continuous angled ceiling ties together the diverse programs underneath it ©吴清山
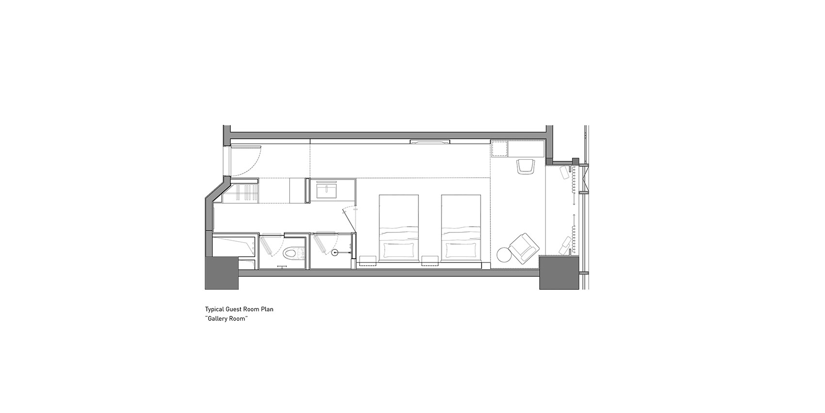
客房设计也出发于原始条件的大进深与高层高,试图塑造适宜的尺度,并冠以三个不同主题:“家的未来适”、“住在美术馆里”、“在森林里开派对”。“家的未来适”在纵深上将客房划分为三个区域,以延展的斜屋顶造型塑造家的舒适感。靠窗的功能区被规划为“第四空间”——一个能植入多种功能的灵活空间,类型包含茶室会议、康体、亲子、影音等。
The design of guest rooms also responds to the precondition of large clearance and depth. Three themes- the “Cozy House”, the “Gallery Room”, and “Party in the woods” are designed for guests in creating a scale of intimacy and comfort. The “Cozy House” is divided from the front to the back into three zones connected by an extending pitch roof. The zone adjacent to facade is planned as “the fourth space”. It is designed as an inserted functional “house” that can be transformed into themed typologies of teahouse, fitness club, kid’s room, home theater, etc.
▼客房走廊,guest room corridor ©吴清山
▼客房内部,guest room interior view ©Atour
“住在美术馆里”意在营造出美术馆的艺术氛围,藉由不同大小的“景框”量体元素互相嵌套来定义空间,并在适当的位置摆放艺术品及画作,让客人在住宿的同时也能领略艺术的魅力。
The “Gallery Room” aims to create a feeling of “living in an art gallery”. Multiple L-shaped masses varying in sizes and materials, interlock with one another and frame the space. Paintings and accessories are placed to generate different viewports, giving the guest the unique experience of being surrounded by art works in gallery.
▼不同大小的“景框”量体元素互相嵌套,multiple L-shaped masses varying in sizes and materials, interlock with one another and frame the space ©吴清山
▼美术馆的艺术氛围,a feeling of “living in an art gallery” ©吴清山
套房具有面向城市绿地的视野,我们设想了“在森林里开派对”的空间情境。多道树形的墙体错落地排列,它们不仅是独特的视觉元素,让人产生置身于森林的感受,也丰富了空间层次与视野的互动性。
For the suites, we envision a scenario of “Party in the Woods”. Multiple walls taking the shape of trees are arranged with different orientations to bring about the feeling of being surrounded by nature. These strong visual elements also create layers in space, framing the vistas of activities in room and the urban greenery beyond.
▼树形墙体错落地排列,multiple walls taking the shape of trees are arranged with different orientations ©吴清山
▼浴室,bathroom ©吴清山
▼剖面透视图,sectional perspective ©致野建筑
▼一层入口平面图,1F entry plan ©致野建筑
▼三层公区平面图,3F public area plan ©致野建筑
▼六层标准平面图,6F typical floor plan ©致野建筑
客服
消息
收藏
下载
最近















































