查看完整案例

收藏

下载
Kannikegården位于丹麦最古老的城市里伯的主广场上,与大教堂相对。建筑上方是简洁的砖砌体块,遮蔽着下方具有1000年历史的墙垣废墟。现代表皮与古老废墟并立,讲述着文化与历史遗产的故事。建筑不仅服务于当地的教会委员会和教会工作人员,同时也为城镇居民提供了公共活动的开放场地,人们可以在此举办演讲、音乐会和电影放映会等活动。
▼建筑与里伯大教堂相对,new building across from the cathedral © Anders Sune Berg
Kannikegården is located in Ribe, Denmark’s oldest city, located on the main square, just across from the cathedral. The simple brick clad volume hovers above the city floor to expose an open ground floor with an integrated 1000-year-old brick ruin. The ruin as well as the modern cladding convey stories of cultural and historical heritage. The building houses functions for the parochial church council and the church staff. Simultaneously, it functions as a hospitable setting for public events for the town’s citizens, such as talks, concerts and film screenings.
▼概念草图,建筑与大教堂关系紧密,concept sketches, close relationship with the cathedral © Lundgaard & Tranberg Architects
场地上的历史遗迹是建筑师们需要面对的特殊挑战,通过考古发掘,这里发现了公元800年丹麦最古老的基督教公墓的遗迹,更为显著的是1100年代Augustine Canon修道院的砖砌废墟。现在,这些废墟被整合成新建筑的一部分,在展览空间中分层展示着不同历史时期的遗迹。
The project was faced with a special challenge: Prehistoric finds have been located on the building site. The archaeological excavations have uncovered remains of Denmark’s oldest Christian cemetery from 800 A.D. Most visible however, is a listed brick ruin from the Augustine Canon’s monastery dating back to the 1100s. The ruin is now integrated into the building as an exhibition space designed to communicate the many cultural historic layers on site.
▼建筑提供了开放的活动场地,the building provides open spaces for events © Anders Sune Berg
建筑主体是一个斜屋顶的长方形体块,以支柱支撑在考古发掘区上方。建筑长边与广场平行,比例与周边建筑相协调,符合广场的尺度。建筑体量像雕塑般微微向南弯曲,保证了周围建筑物的光照与通风。建筑师还在Sønderportsgade和Rykind两条街的街角上设计了亲切舒适的绿色庭院。
The building consists of a single, oblong volume with a pitched roof, supported by pillars above the preserved archaeological findings. The length of the building is located along the square with a scale and roof pitch following the neighboring buildings on the square, thus adapting to the surrounding city scale. The archetypical shape of the volume is given a sculptural crookedness towards the south, to bring in light and air towards the neighboring buildings. An intimate green courtyard is established along the streets of Sønderportsgade and Rykind.
▼建筑物体量倾斜,the volume given a crookedness towards the south © Anders Sune Berg
▼体块首层架空,以支柱支撑在遗迹上方,the volume supported by pillars above the ruins © Anders Sune Berg
▼建筑风格与周边相协调,the architectural style in harmony with the surroundings © Anders Sune Berg
▼临近街角处配置的绿色庭院,intimate green courtyard established along the streets © Anders Sune Berg
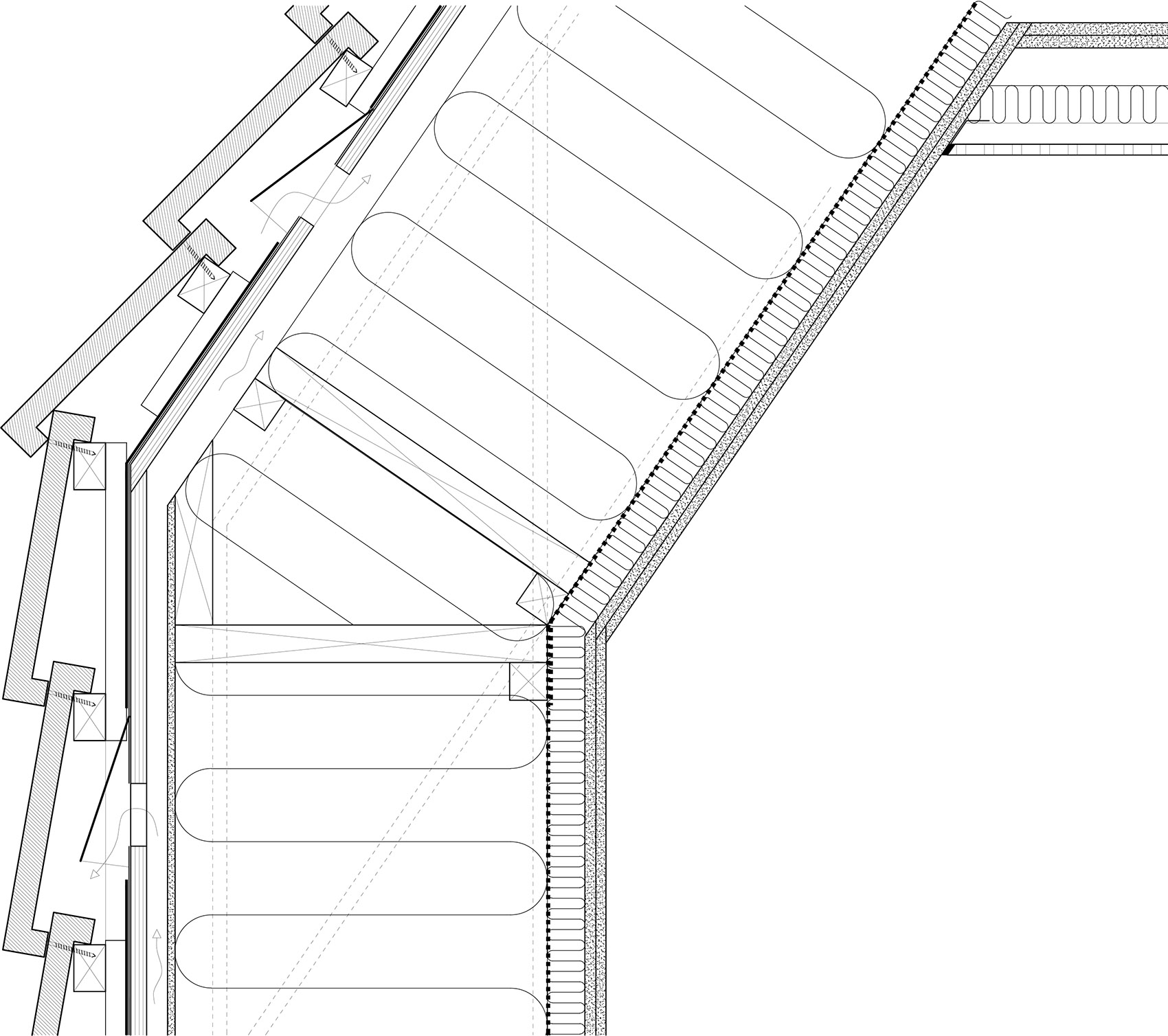
建筑的主体量由简单的钢框架支撑,立面由轻巧的预制元素组成。支撑建筑的柱子与地下的混凝土基础相连,在现场直接浇灌而成。地基与承重墙解决了高差,预留出低于主广场地平约2.5m的空间以保护历史遗迹。建筑体块的外立面覆盖着特制的红棕色瓦片,与当地传统的红砖房相协调,同时建筑物的架空结构又体现出现代感。立面的瓦片像鱼鳞一样重叠悬挂,局部围合出窗框。建筑首层的截面向城市打开,通过立面的玻璃展示出历史废墟。落地玻璃外还穿插安装可旋转的橡木板,不仅作为遮阳设施,也使临街尺度更加亲切。
▼分析图,建筑结构,diagrams, tectonics © Lundgaard & Tranberg Architects
The main volume consists of a simple steel frame enveloped by lightweight prefabricated façade elements. The volume rests on in-situ cast columns that grow out from an in-situ concrete base on the ground floor. The base merges the various levels around the building with supporting walls and frames the ruin space approx. 2,5 m under the main square level. The upper volume is covered with specially developed façade tiles in reddish brown shades comparable to the city’s and the region’s characteristic, brick houses – but as a more contemporary interpretation due to the hovering tectonics of the building. The shingles are hung in an overlapping fashion, like fish scales, and frame the windows of the interior spaces. The lower section appears with glass facades and ensures an open cross section through the building exposing the ruin space to the surrounding urban context. The transparent façade is interrupted by pivoting oak planks that create exterior sun shading as well as a human scale at street level.
▼建筑下方展览空间内的历史遗迹,under the building, exhibition space displaying the ruin © Anders Sune Berg
▼首层的落地玻璃外安装可旋转的橡木板,transparent façade interrupted by pivoting oak planks © Anders Sune Berg
▼传统风格的瓦片像鱼鳞一样重叠悬挂,the shingles in an overlapping fashion, like fish scales © Anders Sune Berg
▼建筑内部的木质楼梯与格栅,wooden staircase and grille inside the building © Anders Sune Berg
▼通向遗迹区的铁质楼梯,iron stairs leading to the ruins © Anders Sune Berg
▼遗迹展示区概念草图,concept sketch of the relic exhibition area © Lundgaard & Tranberg Architects
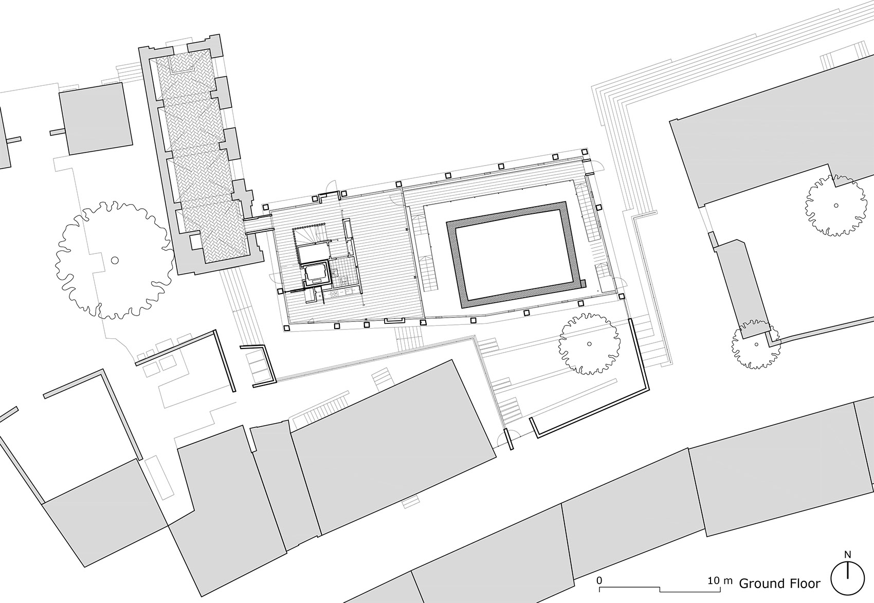
▼基地平面,ground floor © Lundgaard & Tranberg Architects
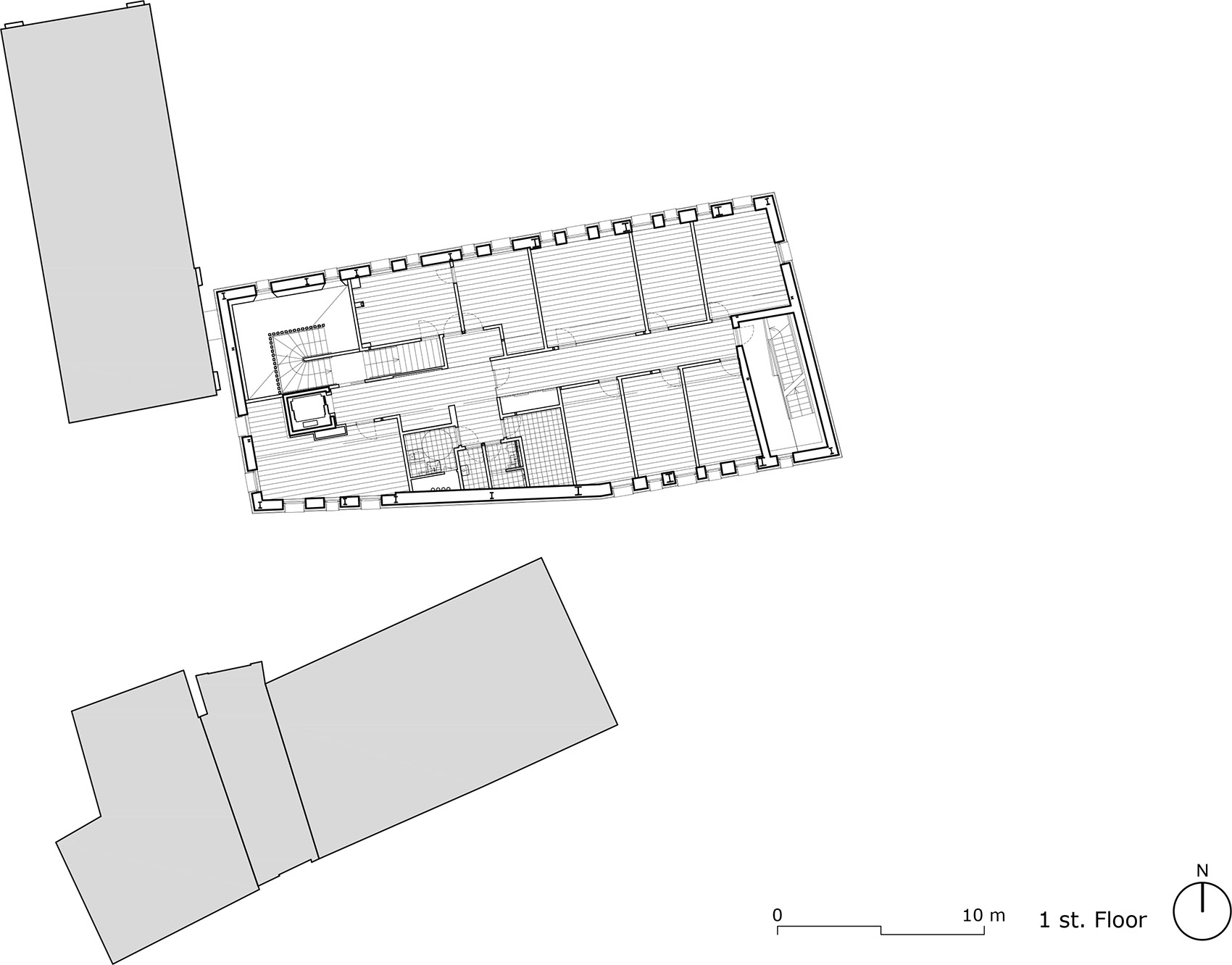
▼首层平面,the first floor © Lundgaard & Tranberg Architects
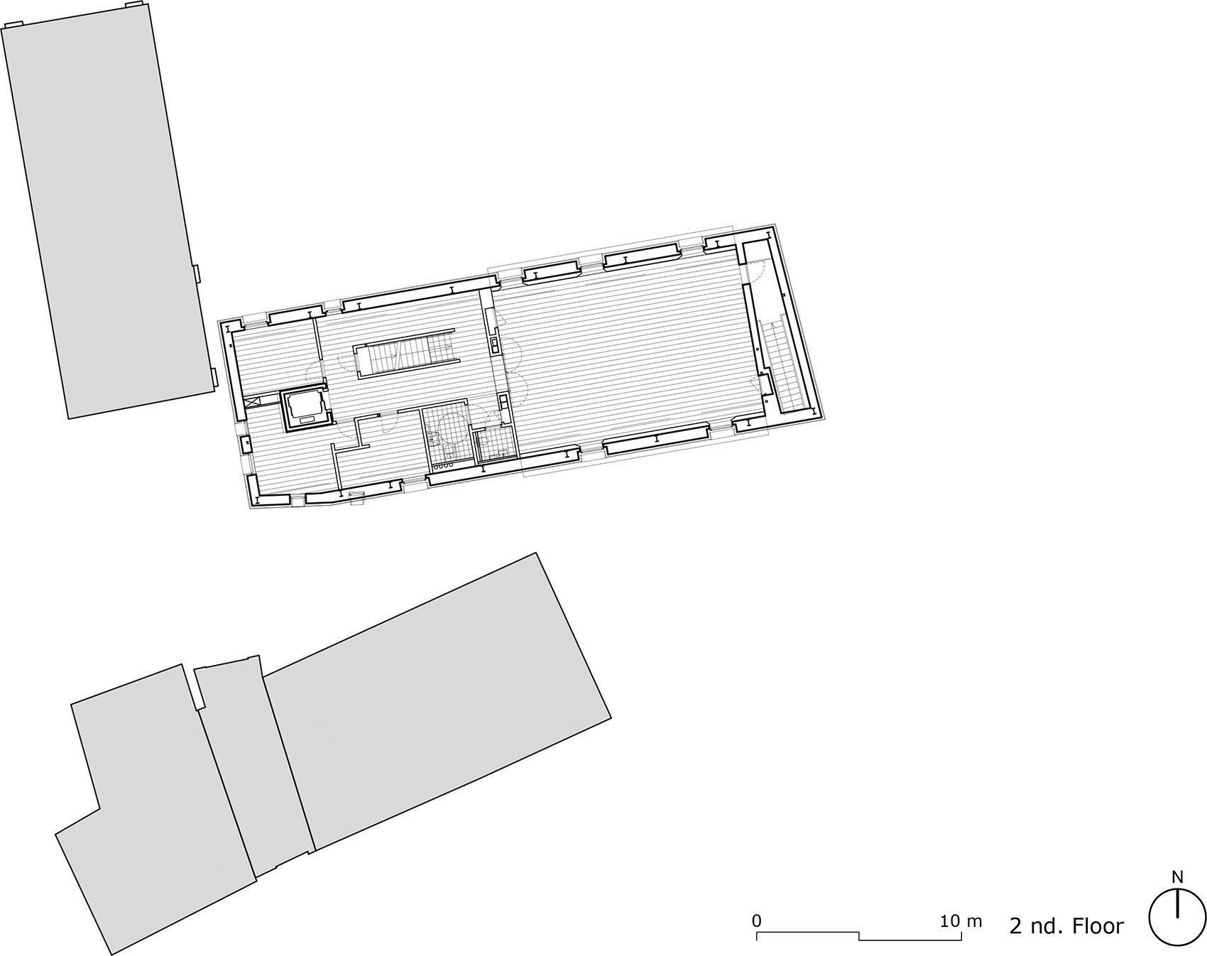
▼二层平面,the second floor © Lundgaard & Tranberg Architects
▼剖面图,section through the square © Lundgaard & Tranberg Architects
Address: Torvet 13, 6760 Ribe.
Client: Ribe Domsogns menighedsråd
Architect / Lead consultant: Lundgaard & Tranberg Architects
Landscape architect: Schønherr
Structural engineer and construction manager: Oesten ingeniører og arkitekter Aps
Mechanical & electrical engineer: Esbensen Rådgivende Ingeniører
Main contractor: Jorton
Area:998 m2
Time schedule:
Competition: fall 2012
Ground-breaking: June 2014
Completion: December 2015
Photographer: Anders Sune Berg
客服
消息
收藏
下载
最近
























