查看完整案例

收藏

下载
中式甜品在博大精深的中国传统饮食文化中占有一席重要之地,它不仅有着悠久的历史,还与自古以来的生活哲学有着深远的联系。偷得浮生半日闲,专注于制作精美的甜品,便是中式的生活哲学。在古典诗词中,这种生活哲学不仅与饮食有关,通常还与园林文化联系在一起。这三者的结合,赋予了项目一个优雅的名字——“折甜“。
Although representing a niche in China’s vast culinary panorama, the art of Chinese desserts enjoys a long tradition which is deeply linked with a specific life-style, one which allows for a momentary detachment from life’s concerns to focus on simple, carefully crafted moments. In classical poetry, this attitude towards life is associated as much to food as it with the controlled yet lascivious esthetics of gardens, and the combination of characters which gives name to this project, Zhe Tian, reflects this ambivalent beauty, the tension between something sweet but imperfect and temporary, beautiful but broken.
▼餐厅主入口概览,overall of the main entrance © Peter Dixie / LOTAN
项目的设计理念围绕着记忆与创新,自然与人工的主题展开。设计师将其定位为新概念“甜品餐厅”,一场美食的饕餮盛宴,一个躲避世俗的休闲之地,一间体验手作的烘焙实验室。项目坐落在上海历史悠久的前法租界,紧邻繁华的步行街。“折甜”的设计独具一格,宽大的玻璃窗向路人展示出店内的景象,吸引着顾客进入。
Working around this challenge to merge memory and innovation, nature and artifice, we imagined the space as a “dessert restaurant”, a whole new concept in the busy world of food and beverage, a place to enjoy a break from everyday life as well as a laboratory for culinary experiments. Aptly located on the bustling sidewalks of Shanghai’s historic Former French Concession, Zhe Tian is exclusive in the uniqueness it proposes, yet openly inviting the passersby exposing its inside towards broad glass windows facing the street.
▼项目外观,appearance of the project © Peter Dixie / LOTAN
▼宽大的玻璃窗向路人展示出店内的景象,吸引着顾客进入,openly inviting the passersby exposing its inside towards broad glass windows facing the street © Peter Dixie / LOTAN
“折甜”代表了一种矛盾的美感,甜蜜却带有缺憾,在片刻的欢愉与回味之间迸发出戏剧性的张力,美丽而又破碎。在这里,人们既能品尝到童年时家乡甜品的怀旧味道,又能沉浸在现代化的服务体验与空间体验中。“折甜”为人们在过去的残余记忆与现代精致美食之间,找到了一个稳定的平衡。
The tastes experienced at Zhe Tian draw from the nostalgic tastes of childhood homecooked desserts while offering a complete twist in the way these are served and experienced, tracing a thin but steady line between remnants of past memories and the sophistications of contemporary fine-dining cuisine.
▼项目室内轴侧图,axonometric drawing of the project interior © Quarta & Armando
项目的前身是一家古董店,店内原有的地板与天花板上的木条被取下并抛光,用于装饰新餐厅的墙壁和立面。在天花板上,这座20世纪70年代建筑的原始混凝土结构被暴露了出来。
Wooden slats belonging to the floors and ceiling of the previous owner, an antique shop, have been polished and repurposed to decorate the walls and facade of the new restaurant. On the ceiling, the original concrete structure of the 1970s building has been exposed and left bare.
▼墙壁由原有地板与天花板的木条装饰而成, walls decorated by wooden slats of original floors and ceilings © Peter Dixie / LOTAN
这种带有缺憾,反复无常的美感,借鉴了日本的“侘寂”风格,旨在追溯空间本身与暂时的、脆弱的自然之间的联系,同时也是甜点制作的灵感源泉。设计师保留了原有建筑的痕迹,并运用柔和的白色墙面,赋予了其新生命。
This esthetic of imperfect, impermanent, incomplete beauty borrows from the Japanese concept of wabi sabi to trace a connection between the space itself and the temporal, frail nature guiding the composition of the dessert itself. Bringing the relationship between space and time even further, traces of previous lives of the building have been given a second life as precious textures, framed by the neutral white-painted surface of the walls.
▼裸露的混凝土天花板与简洁的家具构成“侘寂”风, exposed concrete ceiling and simple furnishings create a wabi-sabi style © Peter Dixie / LOTAN
主用餐区内设置了一张大型定制混凝土桌,客人们聚集在桌前,在分享美食的同时,观赏每道甜品的现场准备到制作的过程。
Massive, custom-made concrete cast tables occupy the main dining area: the experience is meant to be shared by few customers at a time, sitting together while each dessert is personally introduced by the chef and prepared on the spot.
▼主用餐区内的定制混凝土桌,massive, custom-made concrete cast tables occupy the main dining area © Peter Dixie / LOTAN
均质桌面的一角架在半圆形的混凝土花池上,让人联想到质朴的建筑结构。植物从桌面的缝隙处生长而出,揭示了材料本质上的脆弱。
The monolithic slabs of the tabletops are balanced on semi-circular concrete planters in a composition reminiscent of primitive architectures, their surface interrupted by fractures, cracks and veneers from which grass and plants are allowed to grow, revealing the substantially fragile nature of the material.
▼植物从桌面的缝隙处生长而出,grass and plants are allowed to grow in the cracks and veneers of the tabletops © Peter Dixie / LOTAN
凭借其简洁而完美的细节,精致的家具,以及富有层次感的空间,“折甜”提倡了一种慢节奏的生活理念,引起了新一代中国客户的共鸣。相比于快餐式的互动体验与即时的满足感,当下的青年人追求的是更进一步的参与感。“折甜”向人们展示了一种更有意识的方式来对待中国传统饮食文化的历史与未来。
With its simple yet precious details, its sophisticated products and the layered, slow experience it offers, Zhe Tian resonates with a new generation of Chinese customers seeking engagement beyond quick interactions and instant gratification, aiming at showing the way for a more conscious approach towards food culture, its heritage and its future.
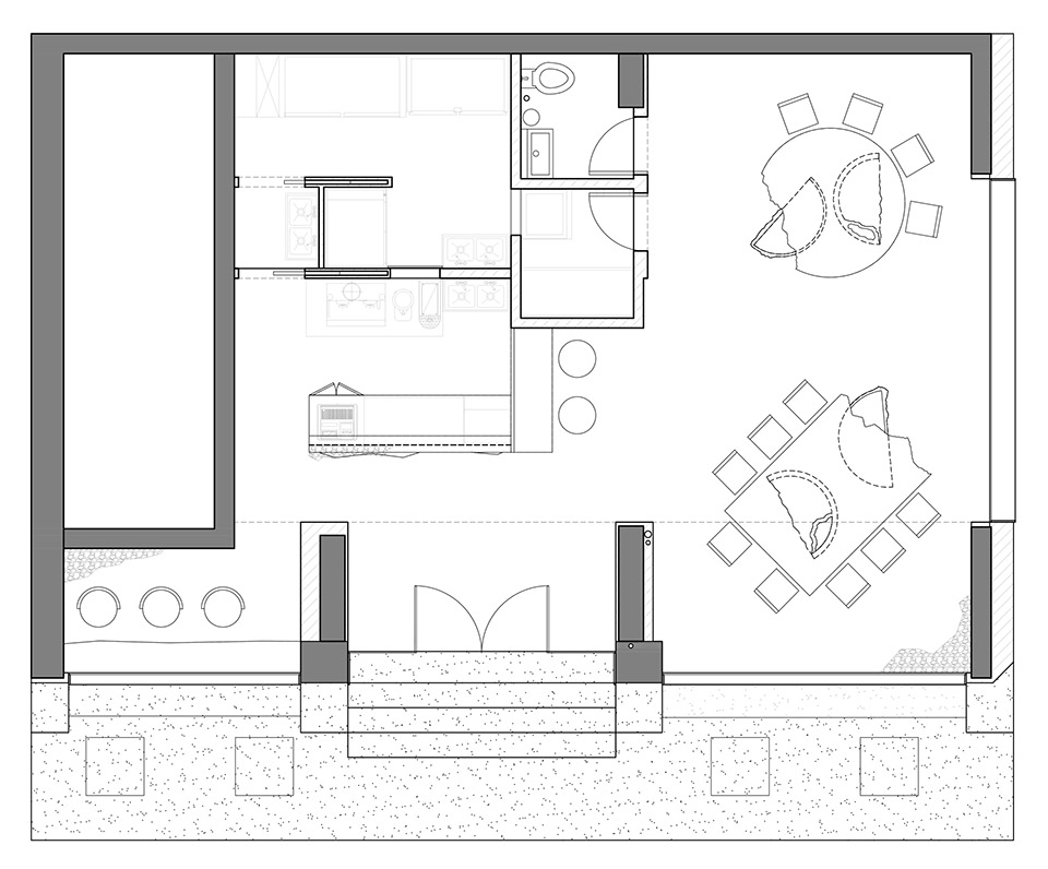
▼平面图,plan © Quarta & Armando
Project information and credits:
Design: Quarta & Armando
Design team: Gianmaria Quarta, Michele Armando, Gu Tao, Tianyi Mao
Client: Zhe Tian
Location: Middle Jianguo Road 125 , Shanghai (China)
Built area: 90 sqm
Completion: June 2020
Photographer: Peter Dixie / LOTAN
客服
消息
收藏
下载
最近











