查看完整案例

收藏

下载
困境
DILEMA
建筑师受邀重建一座迷人的建筑。这座本是住宅的房屋遭受过重大破坏,在共产主义时期重建成粮仓,而后被洗劫一空,又挪作他用。在实地考察中,建筑师分析了它的节点、凹进和凸出,发现了其原始形式。
We were approached to reconstruct a fascinating building. We found a house that suffered significant damage, a former homestead rebuilt under the communist regime into a granary. The house was looted and reorganised for another purpose. During the first site visit, we analysed its joints, niches and protrusions, discovering the original forms.
▼项目概览,overview © BoysPlayNice
尽管这座房子没有被很好地重建,但它的气派丝毫没有丧失。反而它所处的位置、高耸的结构,经受住了时间洗礼的原始材料,都体现出了极高的质量。房子损毁到只剩框架,包括砖墙外围护结构和屋顶。建筑师同业主一起讨论房子的定位。他们认为,任何用修旧如新的方式对待传统建筑都意味着使其失去原有特点。因此,建筑师只用了很短的时间就决定拒绝推测性重建以及任何对原有建筑的仿建,而是对具有浪漫色彩的废墟现状进行修整,使其变成可以重新进入的房子。
Despite its previous inconsiderate rebuilding, the house has not lost any of its grandeur. On the contrary, the way it is situated, the way it rises to the sky and the way its raw matter resists time, have proven to be of the highest quality. It was a ruin to the bone. All that was left of the original house was a brick envelope with a roof. Together with the building owners, we asked ourselves whether the house had a place to return to. Any attempt at a traditional repair would mean losing the original character of the ruin. Relatively soon, therefore, we rejected a speculative reconstruction of the original state, as well as any other imitations. We proposed to fix the current state of the romantic ruins and enter the house anew.
▼北立面,材料抵抗时间变化,north facade,material resisting time change © BoysPlayNice
花园
GARDEN
正如改造一开始就尊重房屋的历史一样,花园被设计成自然景观的一部分,没有有形的界限。其边界由破碎的矮墙和耐候钢门组成,与周围环境融为一体。果园、草地和山楂树都是从附近“借”来的景观。花园成为联系房屋、视野和周围景观的纽带。
Just as the house has respected its history since its inception, the garden has been designed to become a natural part of the landscape. There are no physical boundaries. The boundary is indicated only by fragments of low walls and a corten gate, and the garden is connected to its surroundings. The orchards, meadow lawns and hawthorns are only “borrowed” from the immediate vicinity. The garden becomes the binding element between the house, its views and surrounding landscape.
▼花园被设计成自然景观的一部分,没有界限,the garden has been designed to become a natural part of the landscape,no physical boundaries © BoysPlayNice
拆除 – 新建 – 再利用
REMOVING – ADDING – RECYCLING
建筑师拆除内部结构,将三层改回两层,并恢复原有尺度。建筑立面划分也随之复原,通过理性分析,设计在需要的地方增加了大尺度的开口。建筑师在现有框架中新建了一个保温性能良好的房屋,它可以满足当前所有的能源标准,并重新利用原有结构性能良好的木梁,替代现在的天花和桁架。大部分材料被保留下来,只做位置上的改动。
We proposed to tear down the inner parts of the building and return its original layout with two floors instead of three, as well as the original scale.Related to this is a return to the original division of the facade. Without sentiment and depending on the needs of the layout, we opened other large openings where needed.We have built a new, insulated house into the existing staged ruin, a one that can meet all current energy standards. We reused the structurally sound wooden beams as elements of ceilings and truss replacements. Most of the material remained in place, just rearranged.
▼轴测图,axonometry © ORA
整体
WHOLE
该项目融合了高低空间。建筑师将新的层次插入当前建筑,呈现了与原空间完全不一样的宗旨。新旧结构互不接触,其间留有通风间隙,并略有不同,窗户与旧墙洞口不完全吻合,因此在新房屋的某些地方也能看见旧墙,使得两个体系在视觉上交织在一起。新建筑的入口穿过旧墙,而原有入口被用作窗户。
The house combines low and high. We have inserted a new current layer, differing in its purpose from all the previous ones. A ventilated gap is maintained between the new and the original structure, and the structures do not touch. The new structure is sometimes slightly shifted from the old one. The windows do not fit precisely the openings in the old wall, and it some places, the old wall is also present in the interior. There is a visual intertwining of the two worlds. The new building penetrates through openings in the old wall, and on the contrary, the old wall enters through new windows.
▼原有入口被用作窗户,the original entrance is used as a window © BoysPlayNice
▼现窗户(原入口)细节,details of the present window(the original entrance) © BoysPlayNice
▼新建筑的入口穿过旧墙,the new entrance passing through the old wall © BoysPlayNice
生活
LIFE
生活空间通高,包括带有瓷砖炉子的客厅和厨房,房客可以在这里聚会。它同时也为现代生活提供便利,宽敞大厅中的楼梯将房客引到带有浴室的独立卧室,他们可以在这里享受宁静的空间,透过巨大的旧墙框架向外眺望辽阔的风景,或者沉浸在寂静氛围中。大厅里的圆桌与外面的橡木桌子呼应,天气好的时候,房客可以在外面活动,与自然景观的距离变得更近。
Guests of the house meet in a generous double-height living space with a tiled stove and a kitchen. It also offers the conveniences of modern living. Stairs in a generous hall lead guests to individual rooms with bathrooms. There, they can enjoy the tranquillity of the space and look out into the open landscape through the massive old walls that frame the views; or surrender to the silence that reigns here. The round table in the hall communicates with a massive oak table outside, where you can move when the weather allows and be even closer to the surrounding landscape.
▼入口空间,通高 © BoysPlayNice
entrance space,double-height
▼客厅,带有瓷砖炉子,living room,with a tiled stove © BoysPlayNice
▼厨房和餐厅,kitchen and dining room © BoysPlayNice
▼厨房,kitchen © BoysPlayNice
▼宽敞大厅中的楼梯将房客引到带有浴室的独立卧室 © BoysPlayNice
stairs in a generous hall lead guests to individual rooms with bathrooms
▼从另一端的楼梯回看餐厅 © BoysPlayNice
looking back at the dining room from the stairs at the other side © BoysPlayNice
▼从卧室看向餐厅,view to the dining room from bedroom © BoysPlayNice
▼卧室,宁静的空间,bedroom,tranquil space © BoysPlayNice
▼浴室,透过巨大的旧墙框架向外眺望辽阔的风景© BoysPlayNice
bathroom,looking out into the open landscape through the massive old walls that frame the views
生态
ECOLOGY
该项目是建筑师以何种方式对待老建筑改造的宣言。不必抹去真实存在的年代感,不必拆除,也不必武断地重建。即使是一栋接近废墟的旧建筑,也可以使用现代材料经济地建造,达到所需要求。
The project is our manifesto of how it is possible to treat old houses. It is not necessary to lose the authenticity of old age. It is not necessary to demolish, neither to reconstruct dogmatically. At the same time, even in such a case, it is possible to build economically using modern materials and achieve the required parameters.
▼夜景,night view © BoysPlayNice
材料
Materials
白蜡木、水泥砖、云杉板、玻璃马赛克、砖、陶瓷隔热砖。
Ash wood, cement tiles, spruce boards, glass mosaic, brick, ceramic insulated blocks.
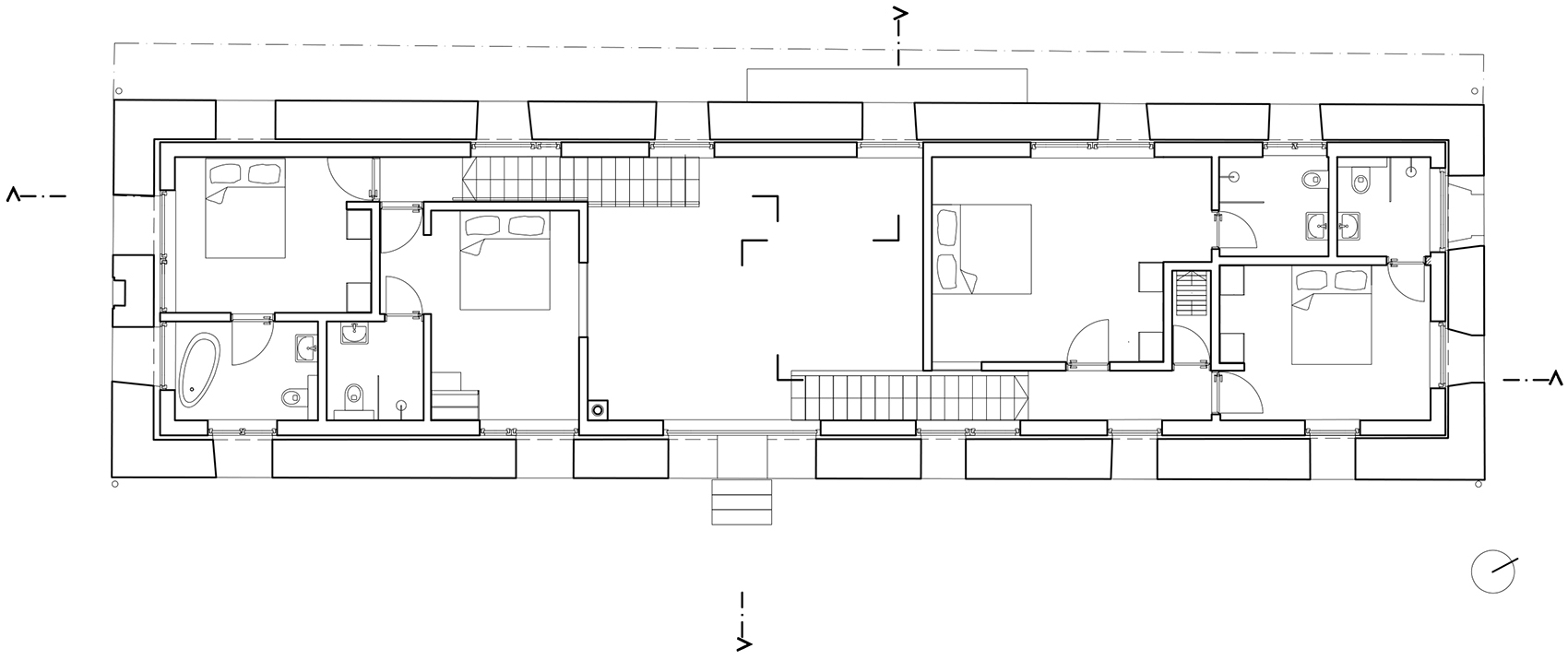
▼一层平面,ground floor plan © ORA
▼二层平面,first floor plan © ORA
▼剖面图,section © ORA
▼立面图,elevation © ORA
客服
消息
收藏
下载
最近


































