查看完整案例

收藏

下载
对于自然的呼唤,是萦绕每个都市心灵的终极命题。虽然结庐在人境,却希望在享受现代生活便利的同时,能够与身处的山林水境相互萦绕,为居住平添许多意外之喜。而重庆作为国内居住形态最为丰富的山城之一,人们对于生活场景的体验和期待的不断迭代,也因这座山城的多变建造条件幻化出不同的生动形态。
△项目视频
悦空间设计成立多年来,始终坚持自己的设计准则和筛选标准,将设计范围锁定在所在的五公里范围内。独特的行事原则,自然会吸引相同频率的理想者。
当业主找到设计师,有趣的灵魂相遇,关于自然和生活的讨论被这处居所激活。通过结构改造和动线重组,建筑、庭院和室内空间相互嵌套联通,场域精神被赋予流动的新形态,而居住场景的呈现也随之变得更加具体而坚实。
开端—洞见
受限于建筑本身的高度和结构限制,结合重庆潮湿阴沉的天气,居住者在地下一层的主要活动区域很难感受到阳光的温暖和惬意,这是在地气候与居住产品亟待解决的共通困惑。而设计基于上述考量,决定从「光」的破界入手,让限制条件转化为独一无二的舒适体验。
因此设计从居住的舒适性出发,将原有的空间结构进行改造,从纵深天井的透视关系入手,令垂直的方形天井改为圆形,流线型的边缘可以充分容纳阳光的进入,使得中心庭院在日照角度较小的冬季依然能够感受充分的温暖。
作为衔接垂直空间的楼梯,设计以光的延续为主线,借由一体化的思路,将其赋形为空间中具有鲜活生命的雕塑。每一处转折与动线的变化中,体块的坚实质感通过楼梯的转角切换被赋予了新的节奏。身体的活动与触碰,都成为了空间感知的有效手段。
大理石的静谧深邃,白色与深色的奏鸣,赋予了居所垂直向度的层层透见,也将自然通透的优雅美学传递给感受当下的语境中:享受生活带来的美好寄予,就能发现内心身处的理想居所。
不同区域根据需求敞开或闭合,都与周边空间形成整体。在并峙的空间界面中,人们可以依照心情自由穿梭,通过自然的材料勾连,为开阔空间中凝聚温暖的能量。
人作为个体与空间的深度链接,通过不同的功能分区和灰空间的串联,形成独特的场域精神。洞见、透视、对照,通过设计将传统东方园林的营造手法带入室内空间,激发了居住者的多重探索欲望。
设计刻意降低软装形体在空间中的比重,以更轻盈的方式将空间和人的关系探讨作为主题。动态漫步之外,在静态上考量了空间的内在流动性,观景区、餐厅、客厅、厨房、廊道,在圆融中却又各自独立,以开阔性彰显空间气场,简化材质的表现,达到视觉观感上的绝妙统一。
以光为引
Take the light as a guide
光与风的声音无声流动,唤醒了居所的场域灵魂。结合业主的现有居住场景和人生境遇,设计选择将重点放在突出起居空间的社交属性与场域精神上,以光线的晨昏变化和空间体感来串联人的活动,在流畅的关系调度中塑造生活的本真模样。
不同区域根据需求敞开或闭合,与周边的自然与空间形成整体。功能与分区在统一场域内形成了平等的对话关系,而自然材料的加入,为开阔的空间增添了打动人心的纯净气息。
面对地下空间采光不足的问题,通过专业结构设计对房屋结构的重新计算,针对部分房屋结构进行改造,天光借由墙壁的折射蜿蜒而入,与室内的纯净光谱呼应,四棵骨感婆娑的紫薇站在院中,生活与居住中勾勒出静谧沉静的体感空间。
场域的流动
The flow of the field
内置庭院呈现中心式景观,而通顶的玻璃幕墙为身处空间的来客提供了舞台式的审视角度,从用户角度关照人的视觉观感和使用体验。当林的阴翳后退,木的温润柔和回归,具象到人与空间的关系讨论中来。
在居住的舒适性之外,设计想要通过自然、场景和材质的共同构建,来探讨人与居所、空间的关系。生活场景的精致感,来自于对于生活方式和习惯的洞察,设计师基于对业主的了解,将会客功能的属性放大,在公共区域内设置了多处具有可变属性的功能赋予,为纯净的自然能量找到登堂入室的切口。
以内置庭院为中心场域,设计将内在的场域联合,通过段落式的节奏串联不同功能的划分。为顶面赋予了松弛舒缓的原木品格,通过西厨操作台联通两个独立的内置庭院区域,让居住者在生活场景中享受沉浸式的自然乐趣。
餐厅以围合式的布局统领场域,在不同大小的环形嵌套中,灯光塑造处软性的可变结构,食物和空间、室内与环境在顶部曲折的水波纹,映射出日常生活中被忽略的精彩瞬间。
纯净的力量 Pure strength 开放并联的区域里,二层的公共区域作为整个居所的功能分区,集中串联了生活所需的隐性需求。设计选择将西厨中岛的顶面打开,以半圆界面带来了层次丰富的空间情绪,色彩、结构、质感......在赋予了极细腻的微妙变化的同时,以艺术品和纯净体感添加了叙事核心,厚朴细腻的材质通达自然,容纳更多样的空间情节去兼容生活情绪的走向。
理想的居所,是一处独特的情感寄托,它串联起生活的鲜活片段,一缕阳光、一本书、一杯茶,都能唤起独家记忆和对生活的向往。而对于卧室空间的塑造,设计选择让设计后退,通过人和家的无声对话来创造更多的可能性,让设计以不打扰的柔软形式出现,成为融化在生活和工作中的无声陪伴。
卧室以柔和的米色温暖包裹,刻意避免复杂多变的造型和色彩,仅以顶部的几何结构线条破除单调,搭配工作与收纳场景的隐性链接,居住者在这里可以打开想象,舒展身心,用心感受每一个清晨和黄昏的时间变奏。
从生活本质到链接温暖的细枝末节,悦空间设计从业主的渐进性需求出发,通过探讨人与空间的互动关系,将建筑的原有限制条件转换为具有独特体验的私享体验。以灰空间的体验与功能升级为场景提供多重可能,在盈盈一室中注入场域的鲜活能量,而设计在为居住赋能的过程中,也伴随着一个个鲜活的生活片段与建筑共同成长,陪伴着居住者的长久使用。
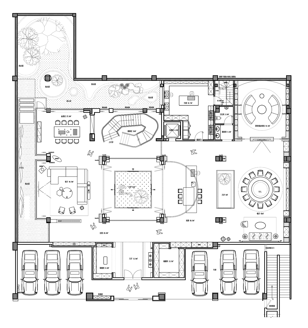
△一层平面
△负一层平面
△负二层平面
项目地址|中国 重庆
设计公司|重庆悦空间设计
设计主持|马锐、张宇
设计团队|文涛、杨媚、刘永霞、邱燕、李星驰、黄凌
项目面积|1500m²
设计时间|2021
完成年份|2023
项目摄影|徐义稳
内容策划丨壹 品牌管理咨询
马锐
设计师
张宇 设计师
重庆悦空间设计成立于 2011 年,公司专注于室内设计、建筑设计、景观设计等,始终坚持将热爱与专业,匠造于每个作品。让你透过设计,感知生活的美好。
部分案例
江岸栖居
重庆北碚别墅
△重庆嘉陵江畔别墅
重庆照母山别墅
客服
消息
收藏
下载
最近





































































