查看完整案例

收藏

下载
Yeongcheon 之家是由Plan Architects Office为一对带着三个儿子的年轻夫妇设计的住宅项目。设计主要考虑到孩子们是否可以在安全的环境中玩耍和学习,并在房子里留下宝贵的童年记忆。
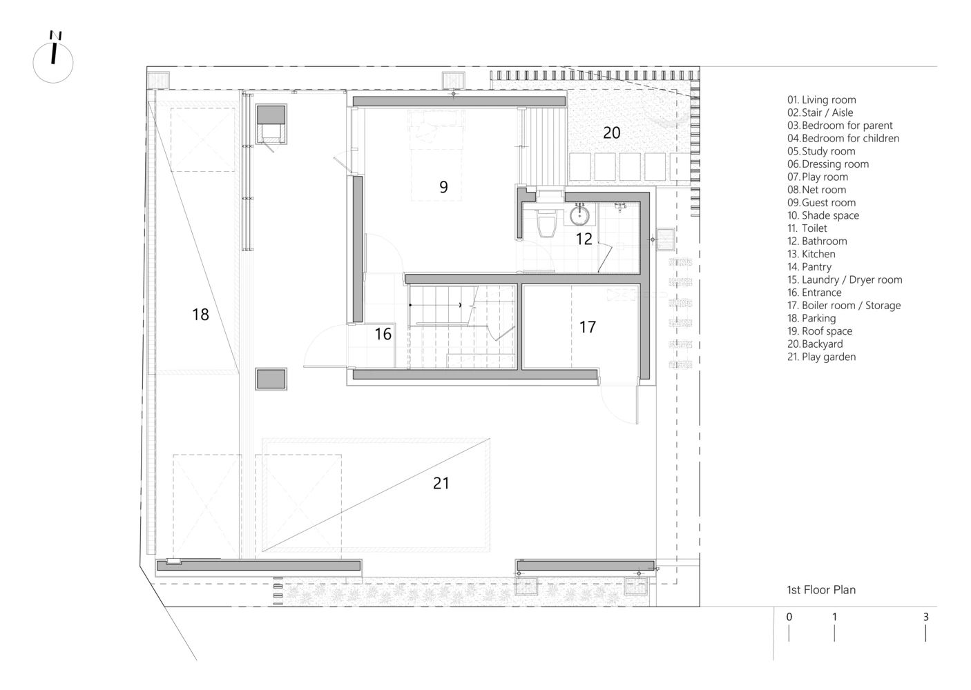
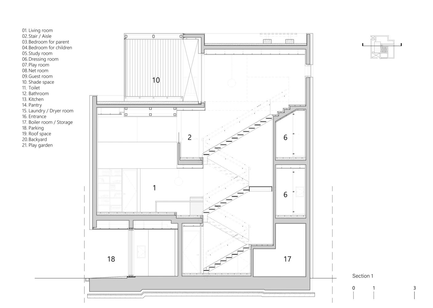
由于土地面积有限,设计师必须捕捉独特但可组合的特征,并且是规范但可变的。设计师基于“流通与连接”的逻辑来设计,从日常运动路线和生命周期来看,房子具有流通的性质。作为回应,楼梯被放置在中心位置,楼梯周围的每个房间都发挥着自己的功能,并根据功能的连续性连接左右。
从景观角度来说,房屋给人的第一印象十分陌生。设计师不希望建筑被迫与周围环境融为一体,成为过去景观的一部分,而是希望捕捉实际变化并传递新的积极感受,为陈旧的街道增添陌生的造型原理和独特的色彩。
房屋设计独特,但仍有意识的维持它与周围环境的关系。建筑并不是一座被围墙隔离的堡垒,而是通过开放的墙壁来允许干预与周围环境的关系。透过墙壁可以看到人们走过的剪影,风和光线可以自由穿梭。
Yeongcheon 之家
坐落地点:韩国 永川
面积:86㎡
Plan Architects Office
竣工时间:2023
摄影:Yoon, Joonhwan
客服
消息
收藏
下载
最近































