查看完整案例

收藏

下载
· 简洁即是生命力
设计说明
Design Description
在室内设计的蓝图中,我们注重打造一种简约而
精致的设计风格,利用空间布局与流线营造出一个宽敞而明亮的居住环境。透过大面积的落地窗,自然的阳光如丝如缕地洒在室内,与室外的花园景致相互融合,为生活带来一份别样的惬意与温暖。
客厅是别墅的核心地带,我们采用开放式的设计理念,将客厅、用餐区和厨房相连,形成一个宽敞通透的生活空间。精选的现代家具和艺术品点缀其中,为室内增添了时尚而雅致的氛围。
对于室内总面积585.7平米的别墅,我们精心设计了多个卧室和浴室,以满足家庭成员的多样化需求。每个房间都注重舒适性和实用性,同时保持统一的设计风格,让整个别墅空间浑然一体。
在室外设计方面,我们致力于创造一个与室内空间相互衔接的户外生活区域。根据个人的喜好和需求,我们设计一个带有露台和休闲区的室外花园,让您和家人在阳光明媚的日子里放松身心,享受宁静而愉快的时光。
在材料的选择上,我们注重品质和耐用性。结合现代建筑的要求,我们将采用高品质的建筑材料和装饰材料,打造出一个精致而持久的别墅空间。
总而言之,我们提供的是一个现代美学的别墅室内外设计方案。无论是室内的舒适与实用,还是室外的与自然融合,我们都将以诚实、精致和美感为导向,打造出一个与众不同的居住空间。
一种仅仅服务于实用的造型方法,它恰恰是最简洁也是最合理的。
越是来自于本能的东西越是具有生命力,这也是设计的本质。
本案别墅大门的匾额,我们邀请中国书法家老石先生泼墨题字,为整个别墅增添了一抹强烈的文化气息。大门上的两个红灯笼则恰到好处地表达了中国人的节日的喜庆氛围。
原有的大门入口进入后对庭院正对一条长长的通道,给人一种散乱狭长的感觉。我们把通道调整到侧面,使入口正对一片竹林,给人一种强烈的带入感和仪式感。曲径通幽处,这是属于中国人的美学意境,这样的设计也从风水上实现了锁住气口的功能。
入口右侧重新设计为一处休闲空间。之前进入大门后第一眼看到的就是厨房,给人一种过于突然和堵塞的感觉,且只能室外就餐。考虑到炎热的天气里大家的用餐需求,我们把原有厨房区域调整为茶室空间,可以随时在这里品茶聊天。此外,会客厅、厨房、西餐厅、中餐厅等全部公共区域都调整到了地下一层,这样不仅凉快而且集中。
建筑中一层庭院取消了原有的游泳池设计后,地下室的空间高度得到了大幅度提升。原有的游泳池位置则调整为绿地活动区域,孩子们可以在这里尽情玩耍和活动。
地下室的区域则调整为岛台及西餐厅和中餐厅。原有的地下一层的一侧卧室空间被重新规划为会客厅,阳光通透、凉风习习。原有的茶室空间也进行了面积扩展,与室外的休闲区域相得益彰,美景尽收眼底。
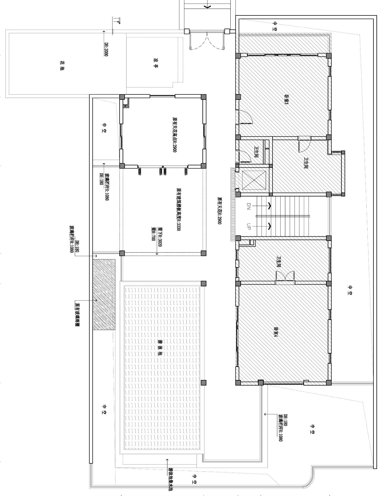
原始结构图
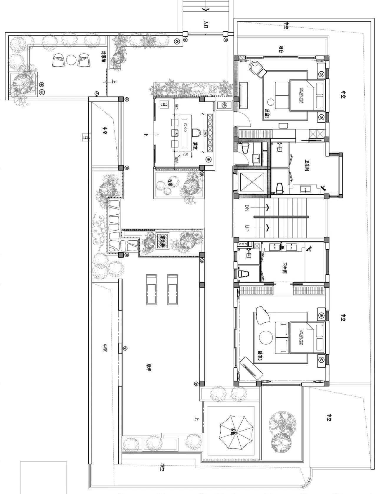
设计后平面图
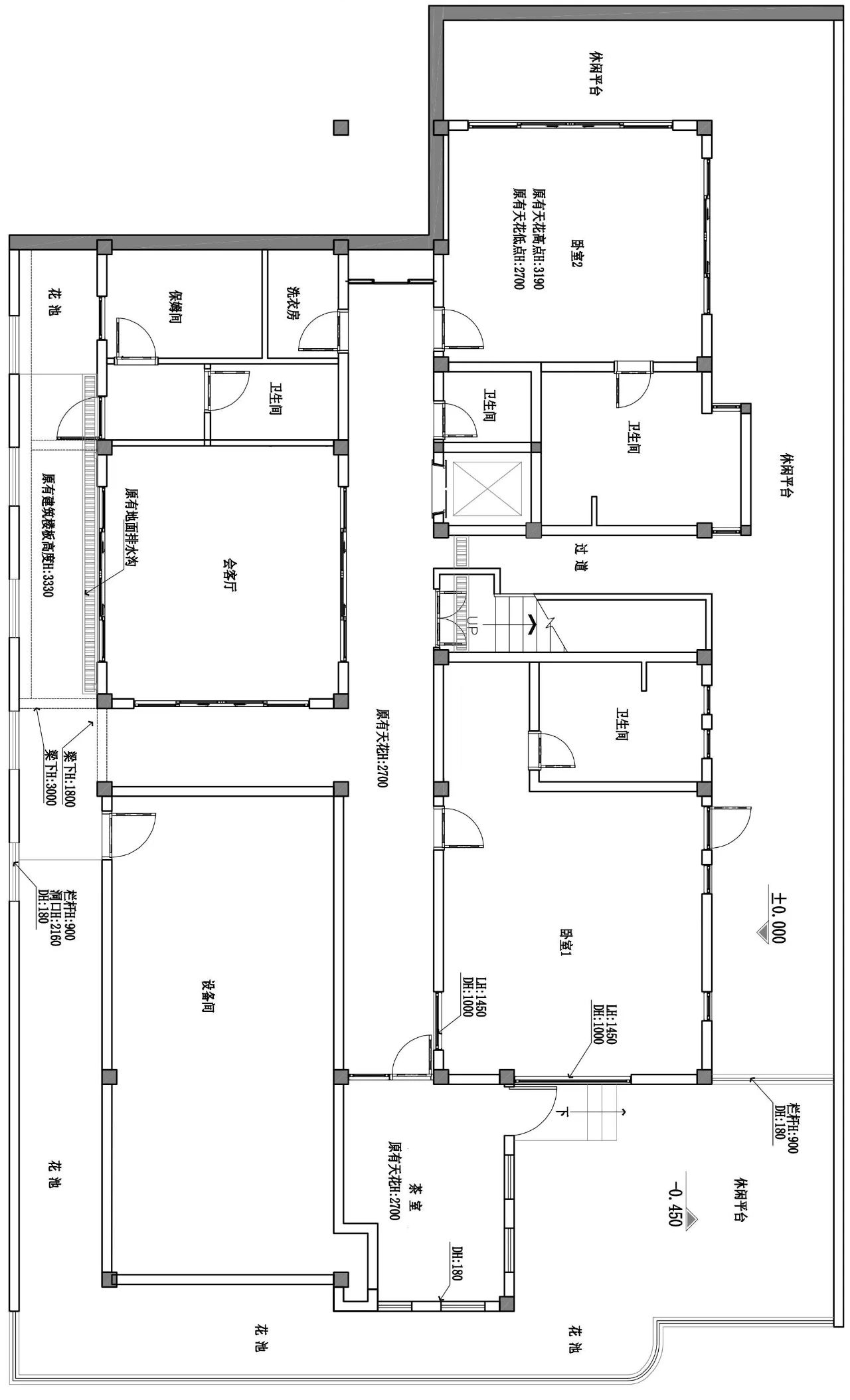
▽地下
一层设计前后对比
原始结构图
设计后平面图
项目信息
项目坐标:中国-三亚-亚龙湾
项目面积:585.7平米
景观面积:124.9平米
设计主理:黄文
设计深化:简奢设计罗国文
施工单位:汉星装饰张力
项目摄影:蓝狐视觉游德路
客服
消息
收藏
下载
最近





























