查看完整案例

收藏

下载
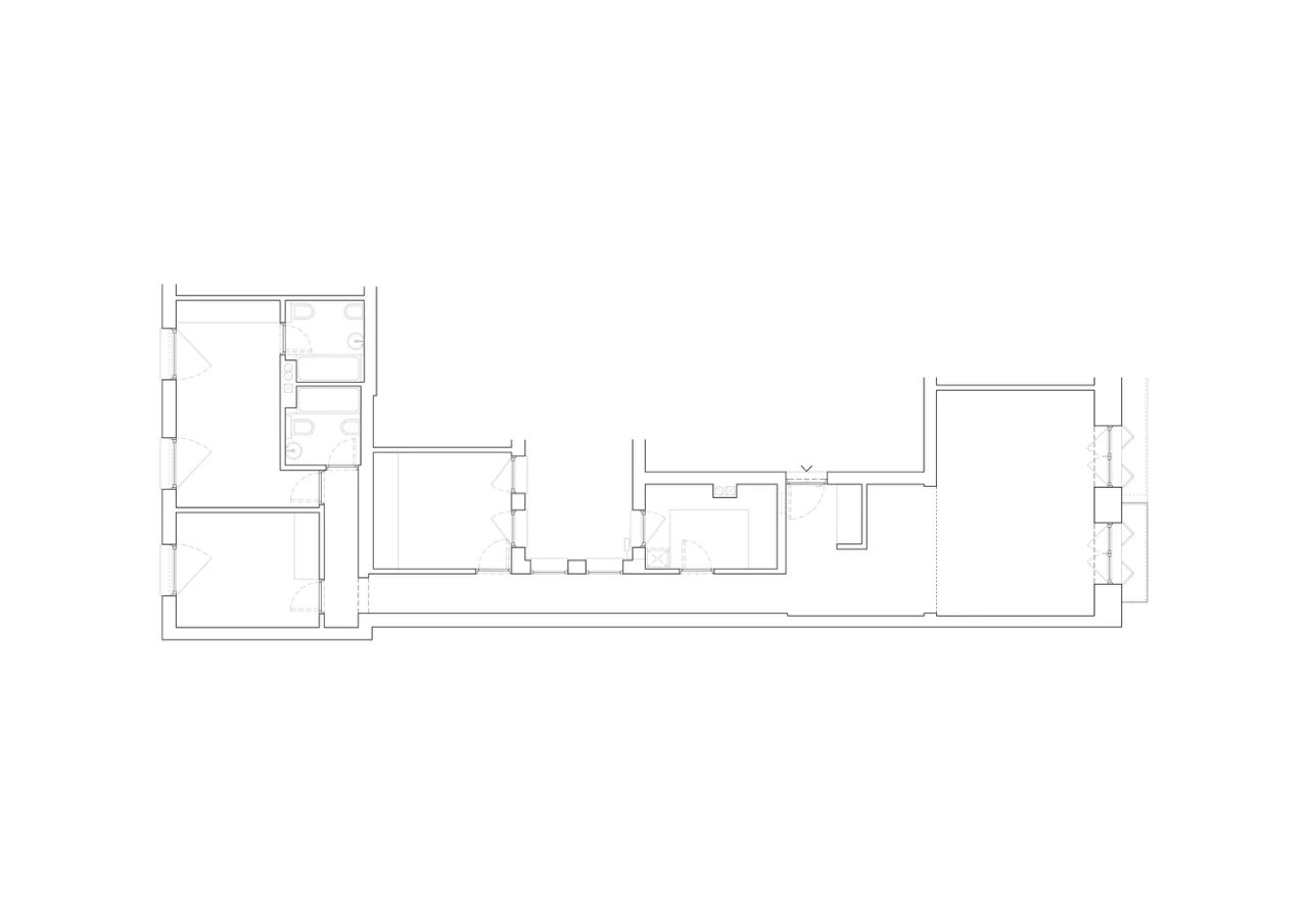
20世纪初的马德里住房具有功能细长分布的特点,这导致了走廊的过长和内部庭院的狭小。
对于这种传统布局,建议是统一空间,尽可能减少分隔和走廊,将它们转化为具有明确功能的房间。
在原有结构中,房屋包括一个入口大厅、壁橱、通往卧室和独立厨房的走廊,以及面向外立面的客厅。
新的布局将主要功能分组:门厅、厨房和客厅。消除了它们之间的走廊,使每个区域都成为一个拥有独特身份的空间。
每个房间都由一个物体占据,这些物体不仅限定了空间,还赋予了特定的功能。入口处的主要特色是一个巨大的架子,覆盖了墙壁并水平折叠,形成了仿牢房的天花板,为空间提供了照明和调节。
这个空间搁板采用了原胶合板和香草色层压板,而黑色镶板作为支撑,形成了一个倒L形的结构。客厅的入口则是一个深色的、用作铰链的镂空木制品,与开放式厨房相连接。
为了赋予每个区域或元素独特性,使用了多种材料,如樱桃木、铝、大理石、陶瓷、香草、象牙和灰白色。
在优化施工预算的同时,一些元素得以保留,如木地板、外部木工、隔板和假天花板。
另一方面,一些元素在拆除的过程中浮出水面,例如金属结构,使客厅的高度超过了三米。
20世纪初的房屋飞檐、造型和石膏装饰与最近的重大翻新中的金属梁和协作板相互对抗并共存。
项目信息:
翻新•马德里, 西班牙
建筑师:Estudio Gonzalo del Val
年:2022
摄影:José Hevia
客服
消息
收藏
下载
最近




















