查看完整案例

收藏

下载
协调城市构造
Harmonizing the urban fabric
这座办公楼位于布宜诺斯艾利斯飞速变化的巴勒莫区 (Palermo) 中心,使得我们想象在南美热带地区的特殊温润气候中工作的新方式。这座城市继承了西班牙殖民时期的城市结构,这是一种宏大的正交结构,从布宜诺斯艾利斯市中心一直延伸到郊区。该网格由常规街区组成,每个街区由8.66 m宽的地块组成。巴勒莫区是博尔赫斯作品中描述的郊区。 在布宜诺斯艾利斯城市扩张并腾飞时,这个长期被忽视的街区成为了过去十年来城市更新的主要地带。
异质性发展是经济繁荣时期与严重的经济危机之间相互作用的最终结果,同时也伴随着城市法规的变化。建筑环境的三维结构结合了1960年代的casa chorizo(“香肠房”)、车间、老旧工业建筑和高层公寓的建筑。Summers项目的业主在与Soler街区相隔的一个此类地块的中间,向Architecturestudio提供了一个空地。 该场地由两个相邻的地块组成,总宽度为16.32 m,不同高度的建筑物并排排列,其中一个建筑物超过了法规允许的最大限制。
▼远眺项目,overlooking the project ©Javier Augustin Rojas
This office building, situated in Buenos Aires in the heart of the rapidly-changing Palermo district, allowed us to imagine new ways of working in the special climate in this temperate region of South America. The city’s urban structure, inherited from the era of Spanish colonization, represents an immense orthogonal fabric that has run riot from the center of Buenos Aires to the outskirts. This grid is made up of regular blocks, each consisting of 8.66 m-wide plots. The district of Palermo was a suburb described magnificently in the work of Borges. The neighborhood, which was long overlooked while Buenos Aires expanded and took off, has become the theatre of a major urban renewal over the last ten or so years.
The heterogeneous development is the end result of an interplay between good times and profound economic crises, all accompanied by changes in urban regulations. The three-dimensional fabric of the built environment is results from blocks that combine chorizo houses, workshops, old industrial buildings and high-rise apartments from the 1960s. The owners of the Summers project handed Architecturestudio a vacant site in the middle of a block of this type alongside Rue Soler. The site consisted of two adjoining plots with a total width of 16.32 m, with buildings of different heights running alongside, one of which exceeded the maximum limit allowed by the regulations.
▼概念生成图,massing diagram ©Architecture-Studio
在场地限制的条件下雕刻出的体量
A volume sculpted by the constraints of the site
该项目是从一项情境研究中发展而来的,该研究调和了街区的形态学,城市法规以及建筑群暴露在阳光下的现状。 一项新的城市法规为我们提供了与城市有关部门进行对话的机会。对话的目的是删除盲山墙,并用新的外墙代替它们。结果,在其中的一个地块,建筑物的尺寸被授权超过最大规定高度,以使其与最高的相邻建筑物的高度相匹配。立面的对齐和连续性确保了和谐的城市融合。我们希望立面的不同平面之间存在连续性,这使得我们将不同的体量、相邻的建筑物、阳台和露台与包络线联系起来,这条包络线是由精确的直线和切线连接的曲线来定义的。
▼俯瞰露台,aerial view to the outdoor terrace ©Javier Augustin Rojas
The project evolved out of a contextual study reconciling the morphology of the block, urban regulations, and the building mass’s exposure to solar gain. A new urban regulation gave us the opportunity to start a dialogue with the city authorities. The aim of the discussion process was to remove the blind gables and replace them with new façades. As a result, the dimensions of the building in one of the two plots was authorized to exceed the maximum regulatory height so that it matched the height of the tallest adjoining building. This alignment and the continuity of the façades ensured that there was a harmonious urban integration. The desire for there to be continuity between the different planes of the façades prompted us to link the different volumes, adjoining buildings, balconies and terraces with an envelope defined by a precise set of straight lines and tangentially-connected curves.
▼建筑物的尺寸与最高的相邻建筑物的高度相匹配,the size of the building is authorized to exceed the maximum specified height to match the height of the highest adjacent building ©Javier Augustin Rojas
为所有人提供最佳舒适条件的工业建筑
A tertiary building with the best comfort conditions for everyone
通过详尽的日光分析,包路线变成了由30厘米宽的可旋转丝网印刷玻璃板组成的建筑物的双层外墙。这些材料调节来自太阳辐射的热量输入,并将第三层延伸到建筑外部,同时创造出一个生物气候空间。
Following an exhaustive sunlight analysis, the envelope became a double skin consisting of pivoting, screen-printed glass panels 30 cm wide. These regulate the heat input from solar radiation and extend the tertiary floor to the outside while generating a bioclimatic space.
▼双层丝网印刷玻璃外墙,the double skin envelope consisting of pivoting, screen-printed glass panels ©Javier Augustin Rojas
在布宜诺斯艾利斯的热带温润气候的条件下,以及在数字革命时代,我们设想了一个每个人都能找到其最佳工作条件的地方的可能性:以传统方式在办公室办公,与外界隔离;在玻璃面板的保护下完全打开凸窗,仿佛置身于室外,同时享受室内的舒适感;在两个外墙之间的阳台上设置一个更非正式的工作空间,该空间自然通风且不受干扰。
In the temperate climate of Buenos Aires, and in the age of the digital revolution, we imagined a place where every occupant can find the best comfort conditions for working, with a range of possibilities: Work in your office in the traditional manner, isolated from the outside; Open the bay windows fully and – protected by the glass panels – feel as though you are outside while enjoying the comfort of the interior; Arrange a more informal work space on the balcony between the two skins, which is naturally ventilated and protected from disturbance.
▼阳台,the balcony ©Javier Augustin Rojas
▼室内空间,interior view ©Javier Augustin Rojas
塔型建筑作为充满吸引力的脊柱
A periscope acting as an attractive spinal column
为了展示建筑物不同层次之间的联系,并在各个工作团队之间创造一个协同的氛围,以潜望镜塔的形式设计了位于建筑物中心的垂直循环的核心。得益于屋顶的天窗和宽大的城市飘窗,这个塔型建筑得以利用天顶的自然光。此外,它还转化成了建筑长廊。由于它完全包裹在玻璃块中,因此享受自然光线照明,在其中行走非常愉悦,并有利于互动和交流。玻璃砖也会在距开口最远的办公空间区域提供自然光。
▼以潜望镜塔形式设计的垂直交通核心筒, the nucleus of the vertical circulations was designed in the form of a periscope ©Architecture-Studio
To showcase the link between the different levels of the building, and to create a synergy between the work teams, the nucleus of the vertical circulations – positioned at the epicenter of the building – was designed in the form of a periscope. Thanks to a skylight in the roof and a large urban window, this periscope benefits from zenithal lighting. In addition, it transforms into an architectural promenade. Since it is entirely wrapped in glass blocks, it is lit by natural light, is pleasant to walk through, and is conducive to interactions, exchanges and encounters. Glass tiles also provide natural light in the areas of the office spaces furthest from the openings.
▼“潜望镜”外观, exterior view to the “periscope” ©Javier Augustin Rojas
▼内部视角,internal view ©Javier Augustin Rojas
▼“潜望镜”交通空间, circulation area ©Javier Augustin Rojas
形态跟随能量
Form follows energy
参数设计 | Parametric design
在我们的参数反射实验室中,我们谨慎地将环境数据与项目参数进行交叉引用,以设计和优化我们的工作。弯曲的立面来自每个玻璃面板接收到的太阳光的反射。使用力场设计的五幅丝网印刷可再现反射和透明性。具有规则图案的生成过程引入了一个随机的序列,巧妙地使立面变得生动活泼。
In our parametric reflection laboratory, we were careful to cross-reference environmental data with the parameters of the project in order to design and optimize our work. The curved façades are derived from a mapping of the solar gain received by each glass panel. Five screen prints designed using force fields reproduce reflections and transparencies. A generative process with a regular pattern introduced a random sequence that subtly enlivens the façade.
▼玻璃参数图,glass parameters ©Architecture-Studio
▼玻璃立面细节,glass panel details ©Javier Augustin Rojas
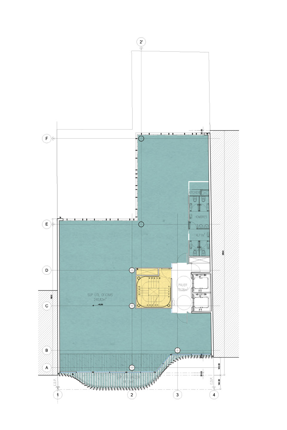
在街道层面,在Soler路上,这个塔型建筑勾勒出地下停车场的正门。 一侧是大厅的延伸,另一侧是可根据未来承租人的意愿进行布置的自由空间,例如用作陈列室,该陈列室具有通往Soler路或从建筑物内部的双重入口。在建筑平面图上可以看到一个双重地块。不同深度的两个体量(其中一个六层高,另一个九层高个)之间的衔接,再加上可以俯瞰整个城市的阳台和大块中央的大窗户,有助于最大程度地利用该空间本来狭窄的立面。
At street level, on Rue Soler, the periscope outlines the main entrance of the underground car park. On one side extends the lobby, and on the other is a free space to be fitted out in line with the wishes of the future lessee, serving as (for example) a showroom with twin access points onto Rue Soler and from inside the building.The footprint of the double plot can be seen in the drawing of the building plan. The articulation between two volumes (one of which is six stories high, the other nine) of different depths, together with the balconies extending over the city and the large windows over the middle of the block, helps to maximize the façades of this space that is otherwise narrow.
▼入口立面,entrance facade ©Javier Augustin Rojas
Architecturestudio的参数反射实验室能够用不同形式方面表达环境变量。在一个规则的模型下,板条以随机的顺序交替排列,巧妙地激活了城市外观。打开以四个为一组的玻璃面板,可以控制建筑物内部以及中间的半室外空间的太阳能摄入。面板的移动,不同程度的透明度以及太阳光线营造出富有生机的外观。它们随着季节和一天中的变化不断变化。这种双层外墙过滤掉了74%的太阳能,大大降低了建筑物的能耗。
Architecturestudio’s parametric reflection laboratory was able to express the environmental variables with formal aspects. In a regular pattern, the slats alternate in random order, which subtly enlivens the urban façade. Opening the glass panels – which are organized in groups of four – controls the solar gain both for the interior of the building and for the semi-exterior space in-between. The movement of the panels, the varying degrees of transparency, and the rays of the sun create a living façade. It constantly changes with the seasons and the day. This double skin filters 74% of the solar gain, greatly reducing the building’s energy consumption.
▼双层外墙过滤掉了74%的太阳能,the double skin filters 74% of the solar gain ©Javier Augustin Rojas
▼各层平面,plan of each level ©Architecture-Studio
▼立面&剖面图,elevation and section of the building ©Architecture-Studio
客服
消息
收藏
下载
最近



































