查看完整案例

收藏

下载
梦 之 居 所 |
每一个项目的背后,都隐藏着我们对艺术和生活的热爱。我们不仅仅是在设计一个房子,更是在创造一个有温度的,幸福的生活方式。
Behind every project lies our love for art and life. We are not only designing a house, but also creating a warm and happy living environment.
在这清浅时光里,一手烟火一手诗意,任窗外花开花落,云来云往。
In this light time, with fireworks and poetry in one hand, let the flowers bloom and fall outside the window, and the clouds come and go.
从最初的构思,到精细的设计,再到最后的完成,这个过程充满了期待和呵护。它不仅仅是一张张照片,更是一个回忆的故事。而这个故事,就是我们最大的贡献。
From the initial conception, to the meticulous design, and then to the final completion, this process is full of anticipation and care. Its not just photos, but also a story of memories. And this story is our greatest contribution.
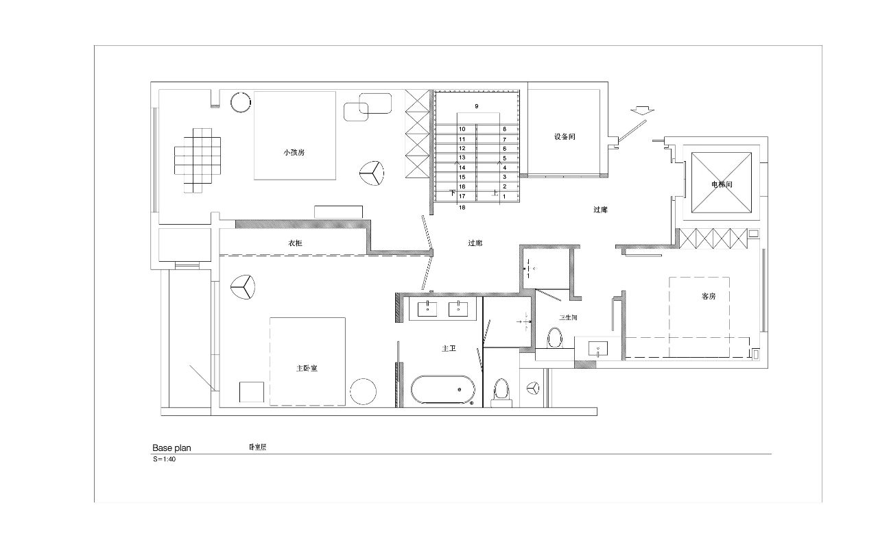
这是一个上叠户型,电梯直接入户,分上下两层外加一个阁楼的户型。
This is a stacked apartment type, with an elevator directly entering the house. The entrance is divided into two floors, with an additional attic space.
房子的硬装设计以简约的黑白色系为主色调,重点强调空间的互动感和开阔感。
The hard decoration design of the house is mainly in a simple black and white color scheme, emphasizing the interaction and openness of the space.
简约并不意味着简单,从挂画到家具,从灯饰到装饰品,丰富的软装元素让空间生动起来,给业主带来了比较轻松自由的生活气质。
Simplicity does not necessarily mean simplicity. From hanging paintings to furniture, from lighting to decorations, the rich soft decoration elements make the space lively, bringing homeowners a relatively relaxed and free lifestyle.
没有设计之前,所有的卧室分布在二层和阁楼,为了确保业主和家人睡眠环境的安静与舒适,我们把所有的卧室都集中设计在一层,并且把二层和阁楼层设计成家人集体活动的共享空间,形成动静分离的空间形式。
Before the design, all the bedrooms were distributed on the second floor and attic. In order to ensure a quiet and comfortable sleeping environment for the owner and family, we concentrated all the bedrooms on the first floor and designed the second floor and attic as shared spaces for family collective activities, forming a space form of separation between dynamic and static.
--左右滑动查看更多--
--左右滑动查看更多--
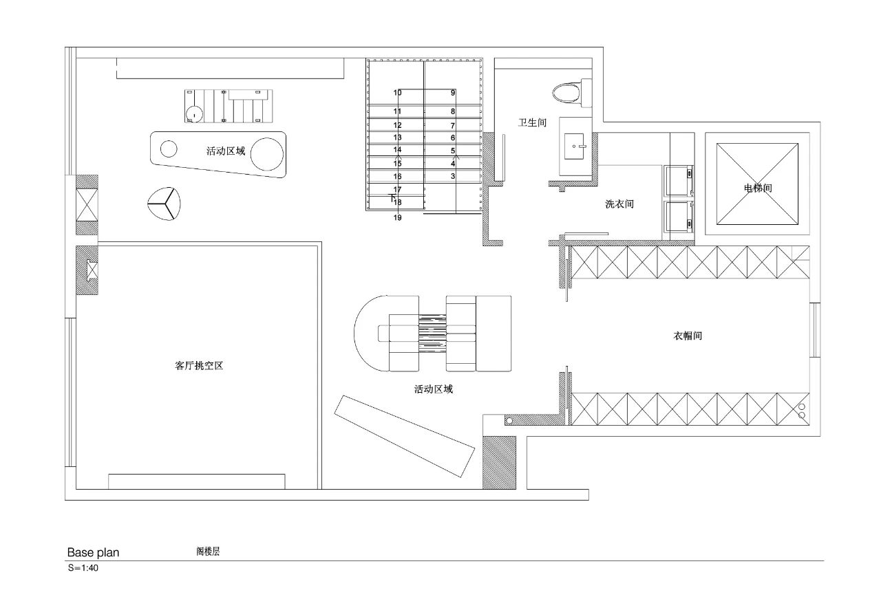
拆除二层和阁楼层之间的部分楼板,形成一个上下的挑空,把空间视觉最大化拉伸,让房子看起来很开阔。在这个空间里,家人们可以共同分享生活的喜悦,享受彼此的温暖陪伴。
Demolish some of the floor slabs between the second and attic floors to create an upward and downward overhang, maximizing the visual stretch of the space and making the house look spacious. In this space, family members can share the joy of life together and enjoy each others warm companionship.
厨房的布局采用了中西分厨的设计,西厨与餐厅、客厅共享空间,增加了互动交流,形成了一个公共区域的完美配套。
The layout of the kitchen adopts a design of separate Chinese and Western kitchens, with the Western kitchen sharing space with the dining room and living room, increasing interaction and communication, forming a perfect complement to a public area.
--左右滑动查看更多--
阁楼,这个充满神秘与想象的空间,被设计师巧妙地转化成了起居和书房的完美结合,明亮温暖的自然光线透过窗户洒进室内,舒适、宁静,未来这里将是全家人聊天聚会的最佳空间。
The attic, a space full of mystery and imagination, has been cleverly transformed by the designer into a perfect combination of living and study. Bright and warm natural light shines through the window into the room, comfortable and peaceful. In the future, this will be the best space for family chatting and gathering.
△平面图展示
项目信息
山西大同
北京叠品室内设计有限公司
王卫、李红、刘可欣、林学宇
关于叠品
叠品设计,
专注为精英阶层业主,
打造高品质别墅全案设计。
叠品的设计原则
一户一设计,一户一世界。
王卫
共合设联合创始人
中国杰出中青年室内建筑师
叠品设计公司主理人
20多年,专注别墅全案设计
亲手为300多个业主打造了独一无二的别墅设计
客服
消息
收藏
下载
最近






























