查看完整案例

收藏

下载
今天分享的这套公寓名为“丝绸公寓”,面积 123㎡,由设计师
Yevheniia Dubrovska 团队打造而成。
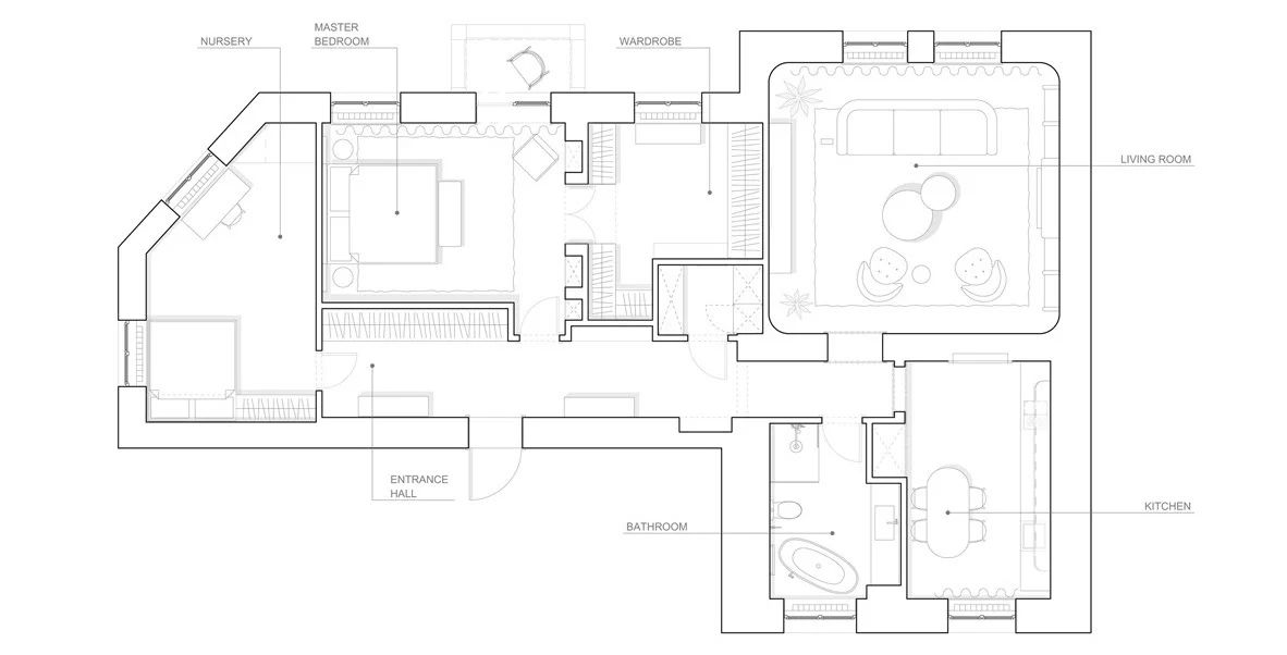
▲平面图
玄关呈一字型布局,既作为入户的过渡区域,又兼具室内主通道的功能,空间的利用显得巧妙而高效。
以质朴的木色和淡雅的白色相结合,给人一种清新的感觉,天花用艺术壁纸装点,彰显出独特的空间仪式感。
客厅区域自成一室,形式相对较为独立,充足的采光条件,让整个空间看起来干净而舒适。
设计师在用色上颇为用心,低饱和度的灰蓝色和桃红色相碰撞,顿时呈现出一种耳目一新的感觉,让人印象深刻。
围合式的沙发布局,让空间具备交流互动性,再加上艺术壁炉的设计,更加彰显出其气度感。
墙角做了弧形的处理,并延续到天花处,结合简化的法式线条,勾勒出空间的韵致。
吊灯的选型非常具有艺术性,流线交错的造型显得新奇而独特,在室内色调和氛围的烘衬下,更加别具一格。
展示架与墙面的色调一体打造,用灰蓝色进行晕染,显得简约自然,同时也加强了空间的整体性。
在和谐的色调背景下,家具软装显得更具神采,白色单椅和茶几与之形成对比,不争不抢,温和而淡雅。
展示架的形式也颇为考究, 区别于常规柜体的设计,无论是用材还是形式上都较为新颖,满满的细节感。
客厅边柜具有较强的原创感,同时也看得出匠心打造的痕迹,用木器漆调成做旧的木质感,较深的色调显得十分醒目。
其他家具的选型也别出心裁,外形上都具备一定的流线感,彰显出优雅和精致的情怀,也刻画出一种慵懒舒适的空间感。
餐厨区域也独成一隅,操作烹饪区既带有厨房功能,又兼具餐厅的服务区功能,良好的采光条件,让原本较小的空间也显得舒适而便利。
操作区域的瓷砖运用了国际象棋的元素,具备一定的主题性,吊柜做了隐形设计,柜门的形式和整体色调都能较好地与墙面形成一体。
艺术壁灯的形式非常新奇,玩味十足,与墙上的挂画相互辉映,像是会说话一样,让小小的餐厨空间充满了趣致。
一侧的餐边柜适量运用玻璃材质,通过反射的原理,让人的视线可以得以延伸,从视觉上延伸了空间的体量。
主卧的色调综合了公共区域的效果,将将浅灰和灰蓝色相结合,同时利用桃红色作为点睛之举,空间显得十分高级。
用半高的艺术屏风,取代常规的卧室背景,艺术感十足,再加上床头吊灯的加持,显得精致而独特。
床品和软饰采用浅灰色的棉
麻布料,柔和而有质感,给人一种舒适感和皈依感,虽没有过多的修饰,却有满满的高级感。
主卧还配备独立的衣帽间,柜体和门一体打造,整体性十足,再用简约的线条勾勒出其层次感。
儿童房满足孩童的生活习性,设计了树屋和玩乐设施,并有专门的睡眠休息区,预留的大面积空地满足儿童玩乐的条件所需。
卫浴空间的设计别具一格,用地砖复刻成国际象棋的元素,并利用简化的法式线条,增强空间的仪式感。
浴缸区域还选配了艺术吊灯,突出使用的尊享性,洁具五金件加入了黄铜元素,刻画出几分轻奢的质感,绿植的点缀,又让人可以放松身心。
镜柜集美观性和功能性于一体,既具有收纳作用,又不破坏其原有的简约性,洗手台柜同样也设计了较多的收纳空间,方便居者的日常使用和操作。
客服
消息
收藏
下载
最近








































