查看完整案例

收藏

下载
在日常的平凡事物中有一种力量
只有当我们注视良久时
才能发现它
( 期号:No.20231204 )
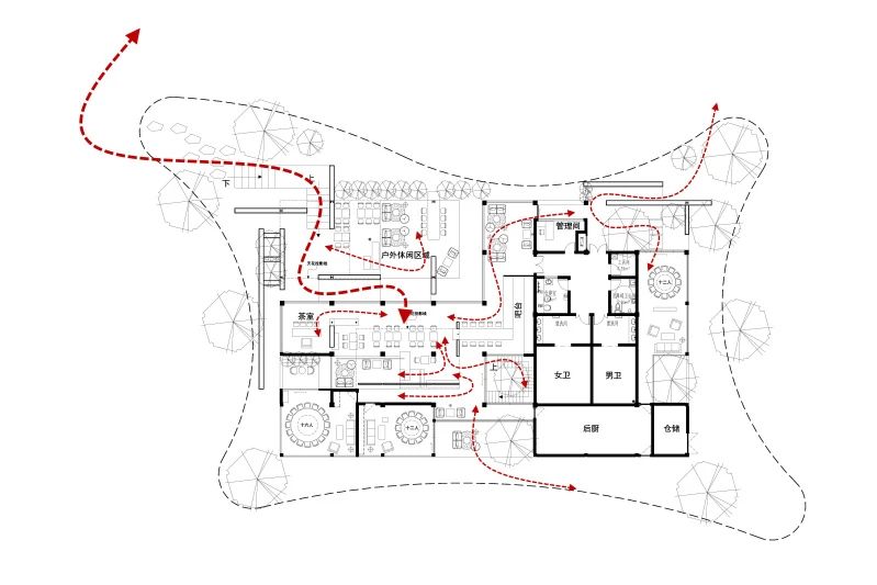
平面布局
交通动线
设计的基础在于了解和建立秩序系统。然而,我相信我们寻求的建筑之根本实质乃是出自情感和洞察。
项目位于河南省洛阳市
设计与生活存在感觉联系的建筑必须以远远超出形式和建造的方式去思考。
建筑和空间设计演变分析
同时设计师在此次建筑设计改造中,并没有将入口做成一个非常显眼的一个门头标识,而是把入口的方式变成了一个灰空间,可以让人们在入口停留下来。入口反而形成了以人为主的一个状态,可以更好的跟建筑产生很亲近的关系,让人临近建筑也好,走进建筑也好,从建筑走出来也好,都可以很放松的自由地在整个建筑内和外漫步。
设计师将这里打造成目的地。人们平时的生活忽略了自己的第三空间,什么叫第三空间呢?
所谓的第三空间,就是在某个场域下可以寻找到自己,可以找到自己心目中那份生活方式的场所,可以让自己放松下来,慢下来,沉寂在时光里。
从物质性的本体出发
建筑空间成为人们表现自我的一部分,在建筑空间氛围中折射出本性通往自然自由的样子。
混合与交叉 共性与个性 在空间的流动性中 凸显更多的人与人的可能性
建筑空间剖面
设计主线串联于光之中,阐述着建筑空间与物质与人的互动形式。
在建筑改造设计中,设计师将室内和室外进行连接,建筑内部空间开天井将阳光引进室内,同时测算到阳光的走向,阳光晒进来希望在内部空间可以感受到时间,所以天井的阳光不仅简单只是提升空间的体验感受,同时也可以更好的让人感受到向往的一个自由度,可以更好地让人们在这里很好的放松下来,伴随着自然,陪伴在人们的此时此刻。
不同空间尺度的连接
构筑人们在场域中的多样姿态
建筑空间、自然、人们的并置时态
不局限于传统意义上的布局与编排
而是在此处真实希望的行为动作的不同组织
成就人们可以在此感受到时光的建筑空间
表达人们身心与感受的自由
在创造目的地的时候,设计师特别强调了一个来这里的人的心理节奏。例如从市区开车到这个地方,希望有一个心理变化节奏,当来到这个地方,看到这个建筑的时候,心里已经存在一种此时此刻可以把自己的身心和建筑融合在一块,把自己的时间交给建筑,让建筑带给自己那份美好时光,我想这就是建筑的魅力。
情理之中,意料之外的惊喜
项目信息
项目名称:多功能复合型商业休闲餐饮建筑空间改造
项目地点:河南,洛阳
项目面积:1455平方米
设计时间:2023年3至4月
完工时间:2023年9月7日
设计机构:立造建筑X大象空间
主设计师:李聪、远楠
项目摄影:何永健
文案撰文:李聪
李聪
立造建筑 LZAD 创始人/主持设计师
主打深度思考多元化建筑与空间的设计公司。立足于建筑与空间研究打造上,拥有独特的创意理念和价值贡献,多维度的专业视角,善于挖掘建筑与空间本质;以综合专业为基础,传递人文、自然生态设计的理念,创造差异化的建筑与空间设计型格;于设计理念上,我们坚信建筑与空间设计创造的价值,承担着探索建筑与空间;与人与自然的相互链接,所衍生出的内容;建筑与空间是生活的容器,设计整个美好生活方式;我们以担当建筑师的社会职责为己任,不断突破新的可能;在纵向和横向的各个维度之间,以专业角度探索事物的本质,关注当下我们的生活,承载物质与精神的流动与循环;让建筑与空间载体重生。如果要给我们在这个时代定义一个角色,我想,我们是用建筑空间与人与自然的相互链接的方式,描绘每个人的所思所想的造梦者。
远楠
独立设计师
专注于室内空间设计,以体验者的身份,以本质作为导向,将设计回归与本身;用真诚且质朴的态度,让设计更有温暖;不设限,不局限,力求最优解,为了最终落地的成就感,竭尽全力;不做无底线的迎合。
客服
消息
收藏
下载
最近

























































