查看完整案例

收藏

下载
住宅坐落在洛杉矶好莱坞山的一处悬崖上,包含三个坡顶小屋,由当地设计公司Standard Architecture设计完成,项目业主为Viewpoint Collection。
房屋位于Forest Knoll路1471号,基地面积为0.4公顷,总建筑面积达929平米,可以俯瞰整个洛杉矶以及落日大道的美景。
Three gabled volumes form this residence that perches on a cliff in the Hollywood Hills neighbourhood of Los Angeles, designed by local practice Standard Architecture. The 10,000-square-foot (929-square-metre) house was designed by Standard Architecture and developer Viewpoint Collection. Located at 1471 Forest Knoll Drive, it occupies a one-acre (0.4 hectare) plot of land that features a promontory for sweeping views over Los Angeles and the Sunset Strip.
▼项目外观,位于山顶,可以俯瞰城市景观,external view of the project located on the top of a hill with panoramic view to the city ©Mike Kelley
三个白色体块平行并置,通过三个暗色金属坡屋顶连接在一起。根据建筑师介绍,这种重复构建的灵感来自于路易斯·康1972年在德克萨斯建造的金贝尔美术馆。“金贝尔美术馆由一排排拱形结构组成,其间由较低的体块连接。”Standard Architecture联合创始人Jeffrey Allsbrook说道,“与金贝尔美术馆相同,Forest Knoll项目由一系列高耸的坡顶空间构成,空间之间设置低矮的连接体块。”
Three, parallel white volumes are linked together with a trio of dark metal gabled roofs. Standard Architecture said it based the repetitive construction on the Kimbell Art Museum in Fort Worth, Texas, which was completed by Louis Kahn in 1972.
“The Kimbell Art Museum is composed of rows of vaulted structures with lower volumes between the vaults,” said the firm’s co-founder Jeffrey Allsbrook. “Like the museum, Forest Knoll is a series of high, gabled spaces with lower sections between.”
▼项目由三个白色坡顶小屋组成,中间由低矮体块连接,底层可以完全打开,the project consists of three white gabled volumes connected by lower volumes, the ground floor could be fully open ©Mike Kelley
▼项目顶视图,三个体块由深色金属屋顶连接,top view of the project, the volumes are connected by dark colored metal roofs ©Mike Kelley
每个体块中都设置了一直延伸的屋顶的整面玻璃窗,提供了宽敞的视野。这一手法也借鉴了康的金贝尔美术馆。“层高较低的体块中设置服务空间,如楼梯和洗手间。金贝尔美术馆中也采用了这一设计手法,从而使得拱顶空间更为开放通透。”建筑师补充道。
In each volume, large windows open up the top of the gables to expansive views – a feature the firm said also draws from Kahn’s art museum.
"The lower volumes contain the service areas like stairs and powder rooms, similar to the Kimbell, which allows the vaulted spaces to be more open and airy," the studio added.
▼体块设置整面玻璃窗,volumes with full sized windows ©Mike Kelley
住宅前后设有窗户和玻璃滑门。后花园包含露台,草坪,以及一个悬挑出去的梯形无边泳池。
Windows and sliding glass doors are placed on the front and rear walls of the residence. The back garden features patios, grassy areas and a trapezoid infinity pool that cantilevers past the edge of the property.
▼项目后部的花园,garden at the rear of the house
©Mike Kelley
▼悬挑的无边泳池,cantilevered infinite swimming pool
©Mike Kelley
中间的体块二层通高,层高达9米,由一个开放的餐厅和起居室组成。
另外两个体块均被分为两个楼层。
The central volume is double-height, rising 30 feet (nine metres), and contains an open-plan dining room and living room.
The other two volumes are split into two storeys.
▼入口,entrance
©Mike Kelley
▼通高的中间体块,double-height central volume
©Mike Kelley
在金贝尔项目中,拱顶体块的两端不含结构元素,因此可以完全打开。
Forest Knoll住宅在坡顶结构的两端采用巨大的钢制框架,保证住户可以享受洛杉矶的惊人景观。
"At the Kimbell, the ends of the vaults are not structural, which allows them to be open,” it continued. “At Forest Knoll there are large steel frames at the ends of the gabled structures, allowing for amazing views of Los Angeles."
▼透过整面玻璃窗可以欣赏城市全景,panoramic view of the city through the large windows ©Mike Kelley
在主要居住空间中,木板从天花延伸到墙面和地面。休息区域融合在首层空间中,包含一个家庭影院以及一间设有灰色操作台的厨房。
In the main living area, wood panelling extends from the ceiling to the walls and floors. Other sitting areas are incorporated onto the ground floor, as well as a home theatre room and a kitchen with grey counters.
▼主要居住空间,木材为主要材料,main living area in a wooden tone ©Mike Kelley
▼连接一层居住空间的过道,corridor connecting the living area on the ground floor ©Mike Kelley
▼设有开放厨房的客厅,living room with open kitchen
©Mike Kelley
▼客厅与室外花园通过玻璃滑门分隔,室内外界限模糊,glass sliding door defining the living room and the garden, blurring the boundary of the interior and the outdoor space ©Mike Kelley
▼开放厨房和餐厅,open kitchen and dining space ©Mike Kelley
▼通往二层的楼梯,stairs connecting to the second ©Mike Kelley
▼楼梯细部,stair details
©Mike Kelley
▼走廊,corridors ©Mike Kelley
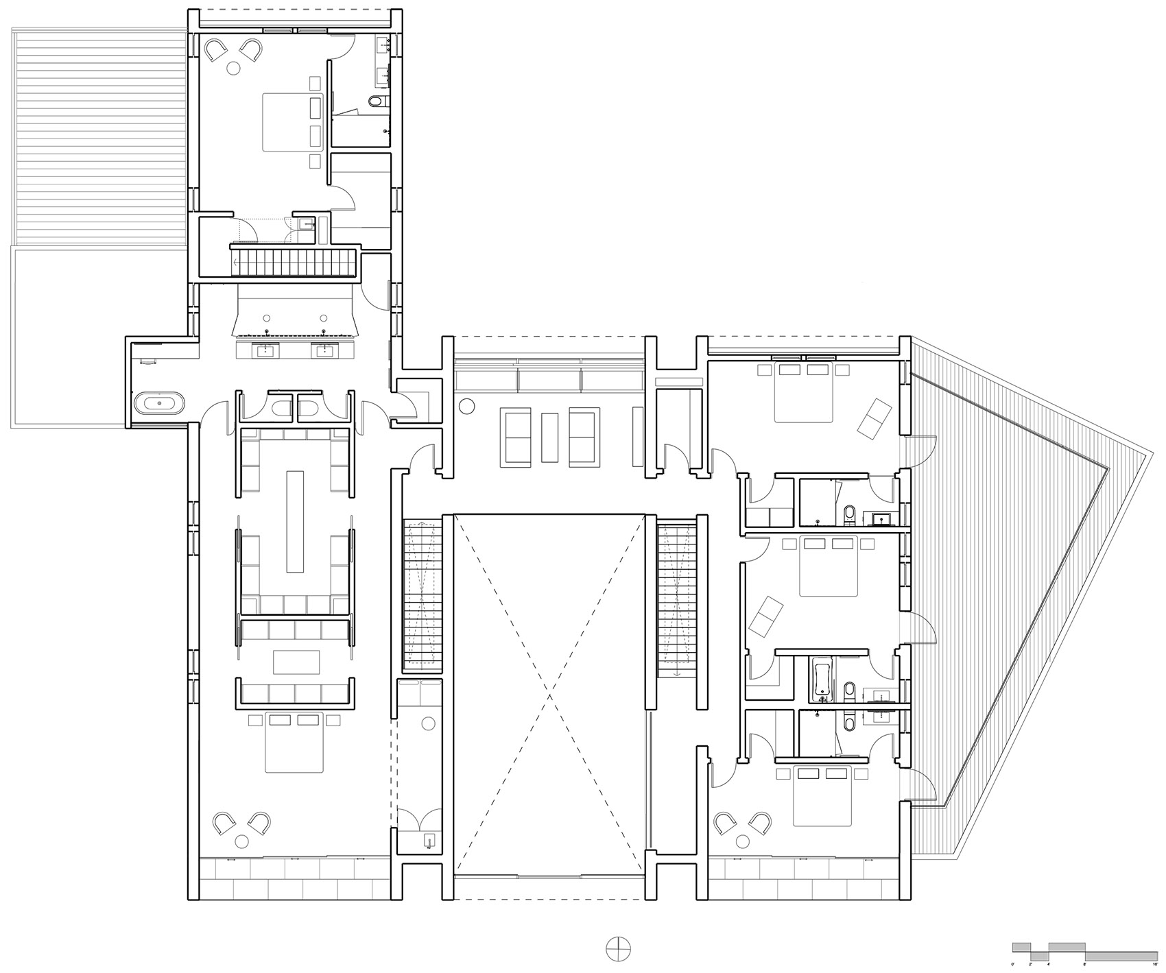
二层空间中设有四间卧室,其中三间位于同一个体块中,由一个三角形的共享露台连接。主卧单独设置在另一个体块中,包含一个步入式衣帽间。
Four bedrooms are located upstairs, with three housed in one of the volumes. Each is accessed by a shared, triangular terrace. The master bedroom is housed in the other upstairs portion and is complete with a walk-in closet.
▼卧室,由室外共享露台连接,bedroom connected with outdoor shared terrace ©Mike Kelley
▼主卧,the master bedroom ©Mike Kelley
▼连接主卧的步入式衣帽间,walk-in closet connecting to the master’s bedroom ©Mike Kelley
▼卧室之间的浴室,bathroom between the bedrooms ©Mike Kelley
▼从浴缸可以看到城市全景,panoramic view of the city could be seen from the bathtub ©Mike Kelley
▼洗手间,也可以看到优美的景色,washing room also with good view to the city ©Mike Kelley
▼与室外空间连通的健身房,fitness room connected with the outdoor space ©Mike Kelley
▼家庭影院,family theater
©Mike Kelley
三个体块之外,项目还包括一个可以停放两辆车的车库,上方也设有一间卧室。
A two-car garage with a bedroom above it rounds out the residence.
▼建筑背部,车库体块,garage at the rear of the building
©Mike Kelley
▼车库体块上方的卧室,bedroom above the garage
©Mike Kelley
项目的室内设计以及充满现代感的家具和装饰由Minotti Los Angeles和MASS Beverly完成,与建筑外观风格一致。所有物件以奶油色、白色和灰色为主要色调。
Minotti Los Angeles and MASS Beverly decorated the interiors with contemporary furniture and accessories to match the exteriors. Items are in cream, white and grey tones.
▼富有现代感的家具和装饰,contemporary furniture and decorations
©Mike Kelley
▼夜景,night view ©Mike Kelley
▼一层平面图,first floor plan
©Standard Architecture
▼二层平面图,second floor plan
©Standard Architecture
▼立面图,elevation
©Standard Architecture
Photography: Mike Kelley.
Team: Jeffrey Allsbrook, Silvia Kuhle, Ryan Ripoli, Mohamed Nazmy, Sarah Etaat, Wren Hoffman, Ashley James
客服
消息
收藏
下载
最近















































































