查看完整案例

收藏

下载
居所,非唯物之砖瓦堆砌,乃是生命之花簇年华。每一处细微元素,都诉说着时光飘渺轻吟,岁月的温暖情怀。
—— 王帅
此案是坐落于杭州市中心的别墅,一家四口悠然其中,宛如一曲闹中取静的诗篇。四层结构,每一处细节都仿若抒情诗,时间与空间如琴弦般悠扬共振,每一个角落,都沉淀着家的温度和幸福。
1F
1F 平面图
于这片空间的伊始,以巨大的岛台为轴心,呈现出一场开放的艺术舞台,将社交厨房与餐厅、起居室交织融合。在有限的空间里,用巧妙的设计手法最大化升华工作日早餐和晚餐的愉悦场景。
中厨的电动移门阻挡油烟且隐遮楼梯,为婴幼儿创造出更为安全的嬉戏乐园,降低看护时间,缓解陪伴的压力。
模块化的沙发,灵动而多变,模糊了客餐之间的界限,生活在其中更显自由与随性,生活与艺术的精妙编织,令人仿佛沉浸在一场引人入胜的视觉交响。
2F
2F 平面图
二层为家人宁静的睡梦之所。巧心雕琢,削减过道空间的铺张,将空间每寸精华都献予卧梦之窝。
楼梯踏步的精妙计算,于过道中嵌入一处水吧台,提供便利的直饮水源。
主卧套房,以简约之风姿,融入新装饰主义的设计元素,勾勒出幽雅而现代的格调,使素雅空间多了一抹繁华摩登的意蕴。
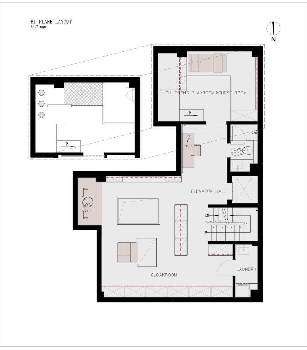
B1
B1 平面图
负一层如同一场幻境,既是家庭衣帽区域,又是孩子们的童趣天地。在衣帽间的设计中,不契合传统独立空间的俗套,反而借鉴图书馆的灵感,将隐秘式和开放式的整理、首饰珠宝的陈列、以及兴趣爱好的珍藏汇聚在同一空间中,多彩而有秩序地展现出来。墙面上的陈列柜造型灵感源自男女主人姓名的首字母“H”和“Z”,为空间增添了独特的专属感与趣味性。
这一空间,不仅是物品的收纳,更是家庭记忆的精致陈列,生活的艺术与秩序的交融。
儿童乐园汇聚了攀爬、滑梯、玩具收纳和书籍衣物的精彩组合。地面上宽大的软包集合,不仅为空间披上一层安全而温柔的羽毯,更可成为临时栖息的床体,在这里,空间不仅柔软,更是孩童们奔放梦想的港湾,使用的频率仿佛被生活的欢笑一再唤醒。
B2
B2 平面图
项目信息
项目名称:West Lake
项目地点:浙江,杭州
项目面积:400平方米
设计时间:2021年 10月
完工时间:2023年 10月
设计公司:DOES DESIGN
总设计师:王帅
执行设计师:杜梦成
硬装品牌:慧科技三恒系统、摩根智能、立邦魔术漆、森美整屋定制、汉斯格雅、hahne防水系统、德赛斯岩板、Laminam、Antoniolupi、Geberit、poliform、Monteni-C、Doorlux入户门、安德蒙德地板。
软装品牌:B-B italia、Baxter、Capital、Molteni-C、Vitra、Edra、Minotti、Arketipo、Cattelan Italian、Flos、Ligne roset、Poltronova、Luceplan、Poltrona Frau、Casamiliano、Flax。
摄影:谭小中
王帅 (Steven.Wang)
中国青年设计师代表人物
明星御用设计师
DOES设计事务所创始人
中国建筑材料流通协会室内设计委员会 常务副主席
金陵科技学院 艺术学院教授
王帅先生艺术学院教授,明星御用设计师,自幼学习艺术,擅长融合历史、人文、商业、艺术不断突破设计边界,用建筑手法演绎空间设计,在传承与创新中赋予现代生活更深的内涵,实现空间最大价值。
2023年受邀担任“未来之星”青年设计师大赛评委
2023年获红棉设计奖·室内设计至尊奖
2022年受邀参加哔哩哔哩首档改造综艺节目-《奇迹焕新家》,合作明星:姜妍
2022年受邀担任中国设计星(2021-2011)年度星竞选教练
2022年受邀参加明星改造综艺节目《设计理想家》,合作明星:苏醒、陆虎、王栎鑫
2022年担任中国设计星(2021-2011)年度星竞选教练
2021年受邀担任中国建筑材料流通协会室内设计委员会常务副主席
2021年获第九届中国最佳设计大奖-BEST DESIGN-住宅空间类
2019年获意大利 A Design Award-建筑和结构设计奖
2019年美国IDA DESIGN AWARDS-建筑类别概念设计奖
多次荣获意大利 A Design Award-室内空间和建筑大奖
中国筑巢奖金奖
中国设计星全国总冠军
热门卫视改造节目特邀嘉宾
客服
消息
收藏
下载
最近












































