查看完整案例

收藏

下载
关于梦想班
创业的第六年
终于把办公室搬到了衡山路8号。
在2022年那个艰难的时间点,
“梦想班”没有停下脚步,
仍然在一步一步去实现想要的东西。
那么,什么样的地方才是他们梦想中的办公室呢?
设计师的办公室
怎么能只是一个办公室呢?
给一群乐于思考和折腾的人一个自己做甲方的机会,如果不好好珍惜几乎可以说是辜负年华。我们曾经设想过花园洋房办公室,而当站在这个藏在梧桐树后面的改造园区里时,我们看到了创造一个开放而活跃的生态系统的可能性。
新的办公室承载了KWSD的很多想法,首先它一定不能仅仅是一间办公室,而应该是有多重体验和场景的,灵活的和灵感的,可以作为设计实践的,以及能够拥抱生活的场地。我们一直相信只有好好生活,才能好好做设计。我们想要在这里好好生活,好好设计。
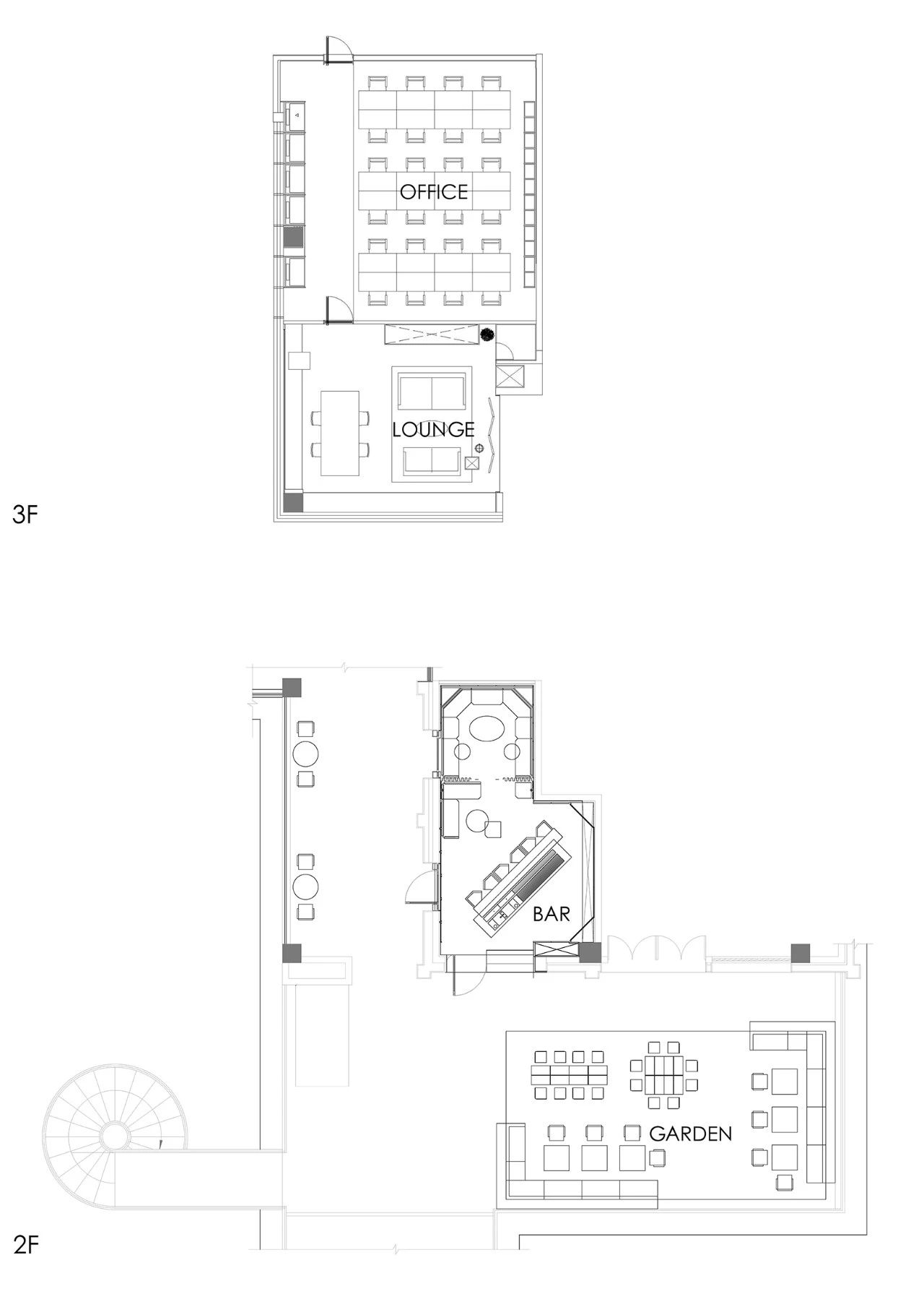
从二楼酒吧区到三楼办公区,我们将新办公室的空间格局一分为四:接近自然生活的花园,朋友家人聚会的酒吧,专注工作的办公室,思考放松或思维碰撞的小客厅。
KWSD的生活方式实践在一系列独特的场景中逐渐展开:从广场旋转楼梯走到二楼,看到的是带花园露台的咖啡酒吧区,三楼则是开放办公区和多功能会客厅。
把办公的室
做成家的感觉
项目是在2022年初开始设计,跨越了春天不得不居家的两个多月,在夏末秋初的时候姗姗完工。这段特殊的时期无疑给所有人都带来了不一样的冲击和感受。而回到空间本身,体会着各种不便和困扰的同时,家里放松的状态也让我们重新思考,什么样的办公氛围更适合激发大家的工作灵感和热情。
“家”的设计,无疑是KWSD很重要的组成部分。什么是家的感觉?这个问题从我们的豪宅设计延续到了办公室设计,我们想要把办公室也做出家的感觉。而家,是承载主人个性和生活方式的容器。内里所有的存在,物如其人。
KWSD的生活方式有设计、材料、艺术品、咖啡、酒和其它很多东西,需要把它们安放在恰当的尺度和温度中,就像过往设计案例中的生活场景那样。
于是,在办公室这个“新家”里,一天的工作生活是这样的:早上从一杯咖啡开始一天的工作,下午咖啡厅或会议室讨论方案,能看到有客人过来打卡拍照相互好奇,夜色酒吧适合独酌或聚会,也可以在会客厅里一边品酒一边分享设计。
这是一个从生活体验与洞察转换到空间策略与设计实践,再落脚于生活的过程。时间在空间里流走了,留下充实而有趣的时光。
躬身入局
KWSD是一个善于处理复合型空间问题的团队。由策略思考出发,从对生活方式的实际体验、探索和反思中,我们建立起一套对空间逻辑、项目价值和设计美学的实践体系。
体验和实践推动我们去探求事物内在而非表象的关系,并获取更为敏锐精准的项目洞察,深入挖掘更多的设计潜在价值。因而,衡山路8号项目作为一个实践基地,其生活方式和空间运营方式的塑造,对团队设计认知来讲,是一个更深的交互过程,而体验和实践的经验也同样反馈在道具和产品设计上。
酒廊里每一款酒和每一种咖啡豆的组合都是设计师尝试过再精挑细选的,家具、吧台和道具也是团队自己设计开发的。设计过程加入了作为酒吧客户以及咖啡师、调酒师的想法,最终站在经营者的角度通过空间和物品去实现。
设计大量采用原型元素和模块化的方式,满足空间多样性需求的同时,使复杂元素间的联系有序可控,并能提供事务所未来设计研究开发的模板。
▲吧台模块
从2022到2023,我们在一年之后才开始整理这篇文章,很大程度上源于项目实践是一个正向反馈和交互迭代的过程。
这一年里,公司设计师都学会了自己做咖啡,在张弛的空间节奏里把握着张弛的工作和生活。当然,在经营和使用过程中,我们也遇到了一些需要再次思考和调整的细节。现在,我们增加了面对园区广场的外立面灯箱,并且最近准备更新一次露台桌椅和花箱的摆放形式,使其具有更加开放的姿态并能接纳更多的客户。
新办公室的实践是我们成长过程中的一个重要节点,而在未来更长久的时间里,我们希望躬身入局和知行合一仍然是团队一以贯之的做事方式,一步一个脚印去继续我们的设计与生活。
Project Information
项目名称:KWSD新办公室及酒廊
项目类型:办公 酒吧
设计方:KWSD境物设计
项目设计:2022.01-2022.06
建设时间:2022.03-2022.09
设计团队:Eric Tsui(徐晓东),王帅,刘雷,施洁莹,孔祥林,徐维祺,王鹏
项目地址:上海市徐汇区衡山路8号
摄影版权:盛凌剑,徐维祺,KWSD
客户:KWSD境物设计
材料:不锈钢,木地板,石材,人造板材,岩板,玻璃等
About Designer
徐晓东 Eric Tsui
KWSD上海境物设计创始人-设计总监
著名室内设计师,深谙生活方式、探索生活美学,观点鲜明的生活方式实践者。
十几年室内设计行业深耕,2016年成立KWSD境物设计,从空间方法出发,推动建筑、室内、软装等一体化设计,力求在空间中实现真实的生活方式。主持设计外滩琥珀大楼公共区改造、嘉里中心办公室、滨江凯旋门顶层复式等项目,作品涵盖私宅、商业、办公等,曾获得多个设计奖项。
About Company
KWSD于2016 年在上海成立。团队实践经验丰富,并喜欢新的挑战。以设计和技术为基点,由策略出发,从对生活方式的实际体验、探索和反思中,我们建立起一套KWSD 独有的对空间逻辑、项目价值和设计美学的实践体系。设计和美学,来源于对生活的不断探索、理解、体验和实践,在感性抽象与理性具象之间应有其辩证统一的内在逻辑。我们在其中不断追寻和挖掘其中的无限可能。
多方位的体验和实践推动我们去探求事物内在而非表象的关系,并获取更为敏锐精准的项目洞察,深入挖掘更多的设计潜在价值。我们关注时间的意义和环境的影响,对无限可能的空间模式探索抱有极大的热情,致力于在不断演变的时空中,找到使用者对生活方式最本质的需求,建构理性内容和感性美学形式的辩证统一体。
客服
消息
收藏
下载
最近



















































