查看完整案例

收藏

下载
Headquarters of echcombank
越南银行总部
echco
mbank —
越南最大的股份制银行之一,在其成立 30 周年之际于河内和胡志明市分别开设了两座新的总部大楼,均由国际建筑事务所 Foster Partners 设计完成。
其中位于胡志明市的银行总部呈现节能且不失精致的现代风格,河内总部则将传统材料与现代设计完美融合,两座大楼陆续成为当地新的标志性金融建筑。
01
通高中庭
OPEN
ATRIUM
胡志明市的总部大楼高达21层,透光的自遮阳幕墙内部设有一个大型的内部中庭,兼具采光和通风功能,充分适应了当地的热带气候。
Foster Partners 负责人 Gerard Evenden 阐述道。
在满足退线要求的情况下,塔楼占地面积达最大值。
△总平面图
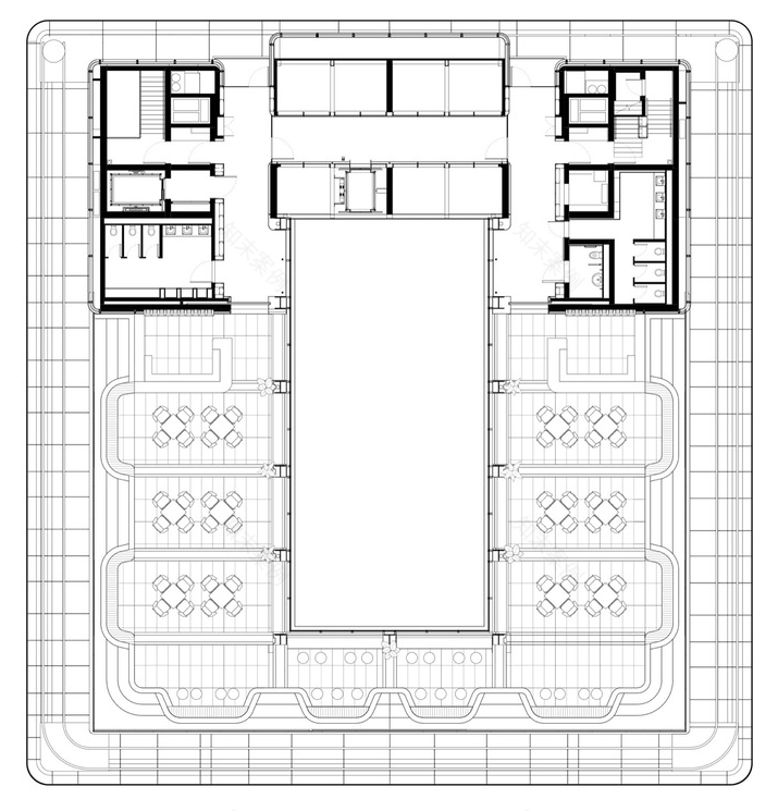
垂直核心筒集中分布于后方一侧。
中间凹入楼层平面图
立面图示
为缓解当地炎热气候的影响,建筑幕墙采用了创新性的朝向遮阳系统,以此保持舒适的室内环境。
每个窗户单元根据太阳角度方向调整至锯齿状分布,面向太阳的一面选用密孔遮光面板,另一面安设透明玻璃,保证室外景致的清晰视线不受影响。
太阳直射的金属网面板设计灵感来源于当地的竹编手工技艺,细密的空隙可允许一部分光线透入,为室内空间营造细腻的阴影效果。
开放式的中庭空间加强了各层之间的交流与协作,创建了具有包容性和聚集性的工作场所。
位于首层大堂的螺旋楼梯具备雕塑感和艺术性,是中庭空间最抢眼的亮点之一。
结构形
充分利用了楼层间高,有效降低公共楼梯的面积,
接近顶棚还设置有向中庭延伸的共享平台,为员工提供休憩交谈的放松场合。
通高中庭的一侧面向连续的采光幕墙,为围绕中庭分布的开放式办公空间提供充足的自然日照。
各层平面图
02
融合传统材料
BLEND TRADITION
位于河内市中心老城历史区外22层
Techcombank
总部,
毗邻
总平面图
建筑底部幕墙表层选用了朴实的传统屏风材料,与附近的老城区城市肌理相互呼应,在低层空间实现人性化的视觉尺度。
在上层部分则采用了常规的玻璃幕墙映射城市全景,建筑边缘设有通风透气的室外露台。
面向公众的银行业务部门集中位于大楼底层,方便居民高效使用,高级管理层和其他内部部门则位于上层空间。
上方的天花板同样采用了传统编织样式的面板,贯穿整个办事大厅▽
其他功能区的室内部分多采用木材、铜料和石材等品质材料,显露温暖、精细的空间氛围。
首层平面图
银行内部办公楼层平面
供员工和公众使用的社交餐饮
设有酒吧和户外露台的顶层
立面图
客服
消息
收藏
下载
最近












































