查看完整案例

收藏

下载
东西之家的主人曾漫游世界,深耕亚洲多年后回到荷兰,在海牙入手一栋典型的上世纪30年代角房。他们憧憬一个融合东西方特色的、现代且可持续的家。
传统上,西方建筑偏向石材,而亚洲则以木材为主。在这个设计中,建筑被解构,功能互换,仿佛东西文化交融。
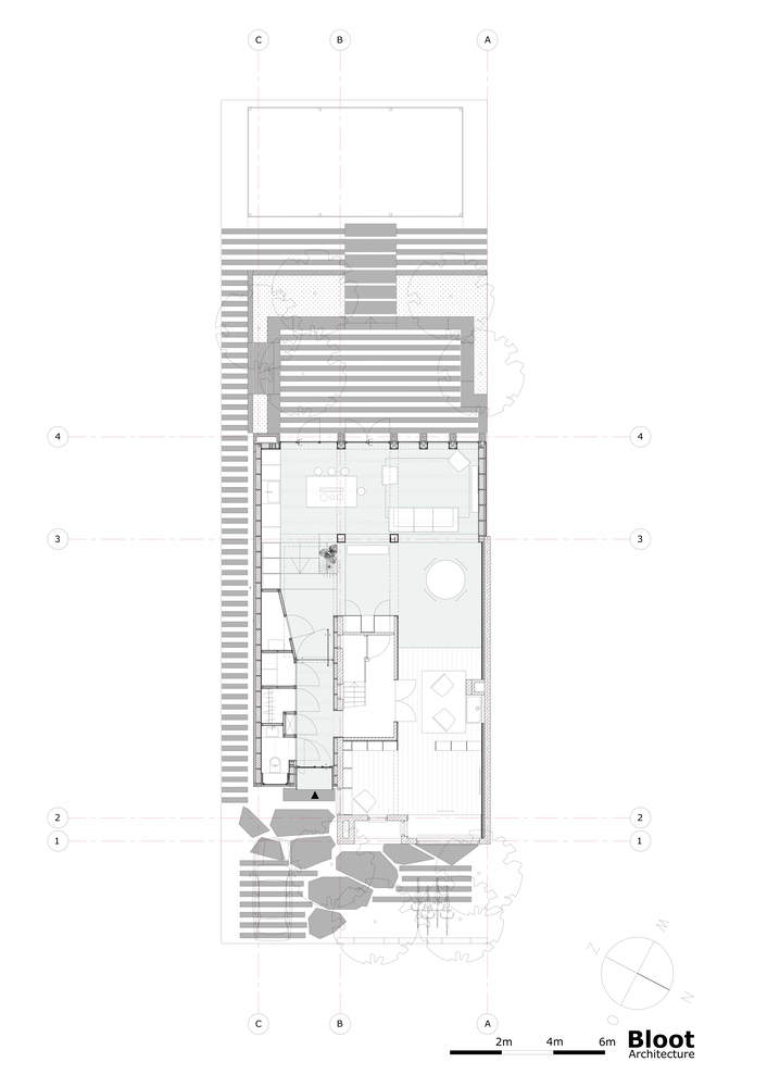
厨房是唯一固定的元素,分布在房间的三个不同元素上。材质调色板采用了丰富的木材、混凝土和钢,呈现温暖、深度和多样性。
扩建部分的立面与原有建筑形成鲜明对比,但材质调色板保持一致。降低的设计不仅创造了高度变化,还为室外花园和楼梯增添了趣味。
预制混凝土结构延伸到室内外,与原有房屋的结构和韵律相契合。整体设计中,翻新和扩建相得益彰。
入口由一个镀锌钢龛组成,内含与大厅等高的钢制枢轴门,使整个空间连贯流畅。从大门进入宽敞的大厅,引导人们到达房子的核心,这里有充足的阳光,绿荫浓郁。
新的中心空间缺乏明确的功能,却因此变得独具魅力。这里是宁静之地,丰富了整个房子。设计旨在将东西方文化、建筑和功能融为一体,打造出一个独特而温馨的家。
项目信息:
房子
•荷兰海牙
建筑师:Bloot Architecture
面积:140 平方米
年:2023
摄影:Jeroen Musch
制造商:FritsJurgens, Decor Walther, FLOS, Forster Unico , Isovlas, Pavatex, Studio Piet Boon, TPB TECH
首席建筑师:Tjeerd Bloothoofd
客服
消息
收藏
下载
最近























