查看完整案例

收藏

下载
现代空间
Anna Lyudaeva
86
㎡公寓,
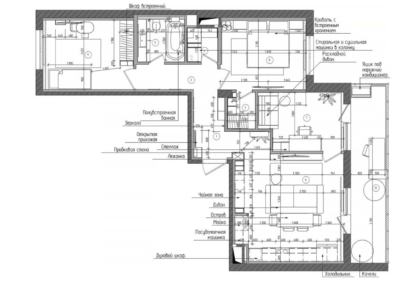
空间布局
带有白色和单板正面的厨房是定制的,项目中的大部分橱柜家具也是如此。配色方案的选择应使家具与墙壁融为一体。
办公室里,其中一面墙壁采用石墨色装饰;在其背景下,一张折叠沙发看起来很有趣——它可以用作一张额外的床。
空间被搁架隔断分成两部分:工作区和配有吊椅的休息区。
卧室里,墙壁装饰有板条,中间放置了一条带有灯的轨道,并
添加了绿色点缀,为气氛带来清新和舒适。
儿童房是为未来而设计的,目标是提供方便的存储和轻松更改的可能性。
浴室配有大瓷砖、油漆和陶瓷瓷砖。浴室为石材、壁挂式、独立式。充足的灯光营造出轻松的氛围。
客服
消息
收藏
下载
最近




























