查看完整案例

收藏

下载
与自然共生
Harmony with Nature
本案为屋龄 20 年的顶跃住宅改造项目,位于成都老城区。委托人为一家三口,女主人长期居家,房屋的使用频率较高,偶尔在家中办公,经常下厨,以轻食简餐为主,喜爱瑜伽和阅读,希望有更为独立的空间满足自己的爱好。男主人和小朋友在寒暑假时归来,希望房屋能够带给他们更多的趣味性。平时偶尔宴客,希望主人与客人所使用的空间互不干扰,又能够保证房屋的互动性。
二楼自带两处露台是屋主购房的关键性因素,可以完成屋主心心念念的花园梦,对于露台,屋主希望它们不仅是和家人、朋友共处的空间,更希望它们以景观的形式存在。对于房屋,屋主希望是简单、舒适、开放的居所,能够承载一家人的生活所需。
改造分析
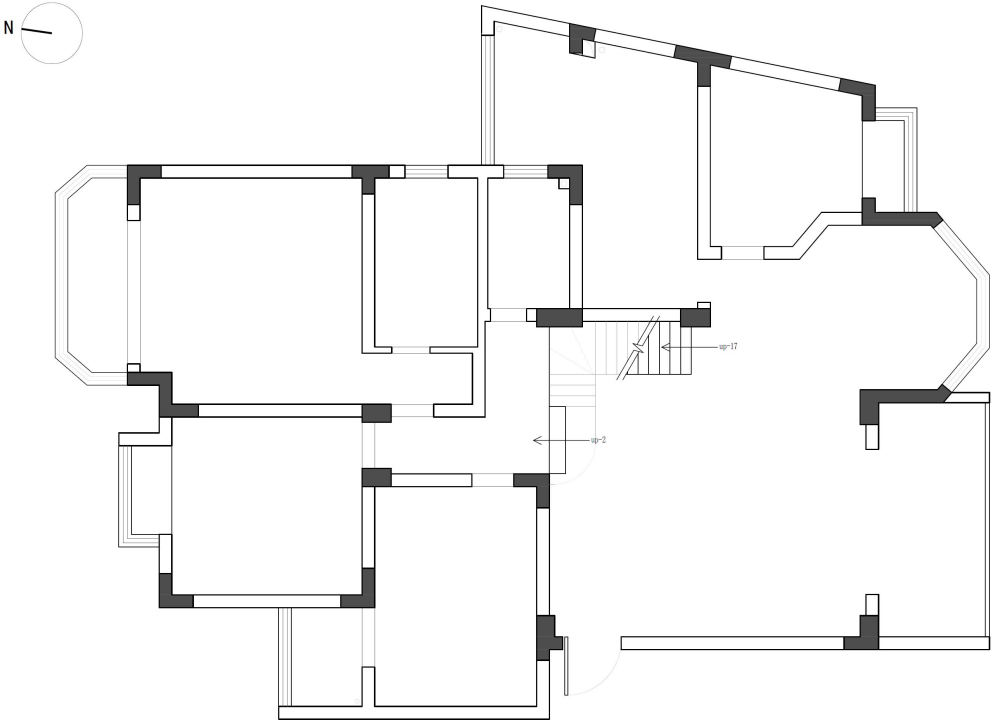
1F 原始结构图
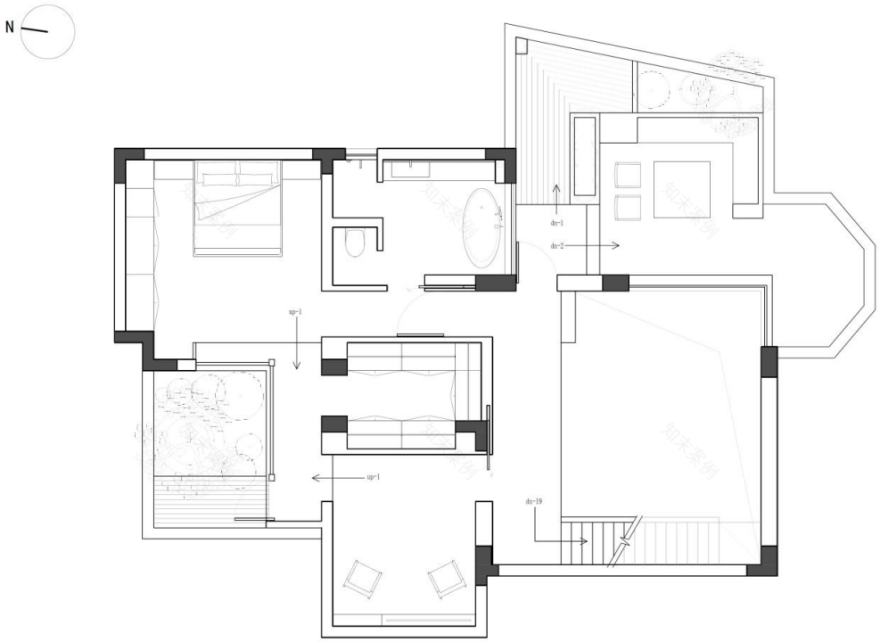
原始户型里,进门即 7 米高的挑高空间,室内情况一览无余,开门正对楼梯,且楼梯横亘在房屋公区中心,将公区切割成若干小空间,公区的互动性大打折扣。
餐厨之间存在着一个连接楼梯和多个隔间的转换区,使得餐厨间的联系松散;设备间由厨房进入,使得厨房内部动线紊乱;餐桌位置正对楼梯入口,使用十分不便。
原始一层南北向存在两阶梯的结构高差,高差上走道呈狭窄的 L 形,分别通往三个房间和公共卫生间,步行体验感较差,西向的房间采光面较深,光线无法引入。
楼梯踏步过窄且陡
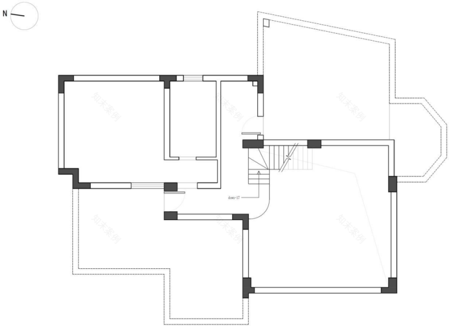
2F 原始结构图
从楼梯上到二层,也由一段 L 形的通道连接主卧与两个露台,主卧内部配置缺失,没有充足的储物空间,主卫也缺乏舒适的使用体验。
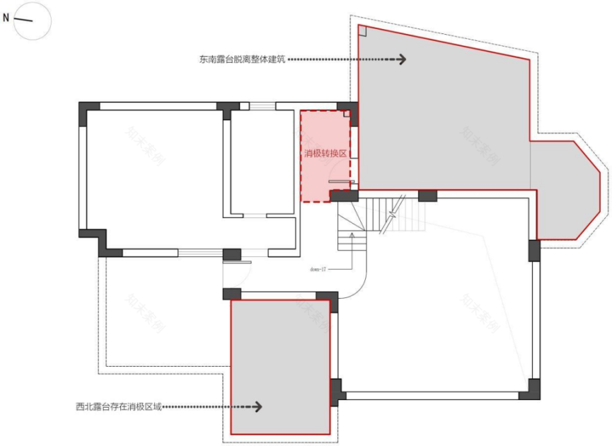
2F 露台与空间关系示意图
西北方向的平台呈 Z 字形,最西面与邻居接壤,存在大面积的消极空间;东南方向的露台较大但与主体建筑脱节,访问它需要穿过一条封闭的转换区,使用体验极不舒适。
1F 平面布置图
利用一楼原始的结构高差确定出公私分区,北侧为儿童房、客房、书房等私密区域。私区的转换区由原本的 L 形走道改为方形的过厅,通过尺度感的改变来提升行走的舒适感,原本采光较弱的房间开出朝向公区的窗户,引入采光,作为一楼的工作区。书架背后暗藏一个小空间,用于存放重要的文件。东北向的房间作为套间,保证房间的独立性,供小朋友使用。南侧规划为客餐厨及储物间、设备间等公共区域。
房屋改造步骤示意图
1.拆除原始隔墙,重新规划厨房,客餐厨关系更紧密
2.调整楼梯位置、让渡出公区位置
3.增设连廊,与楼梯共同构建垂直通道,为入户提供顶面空间
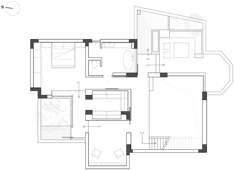
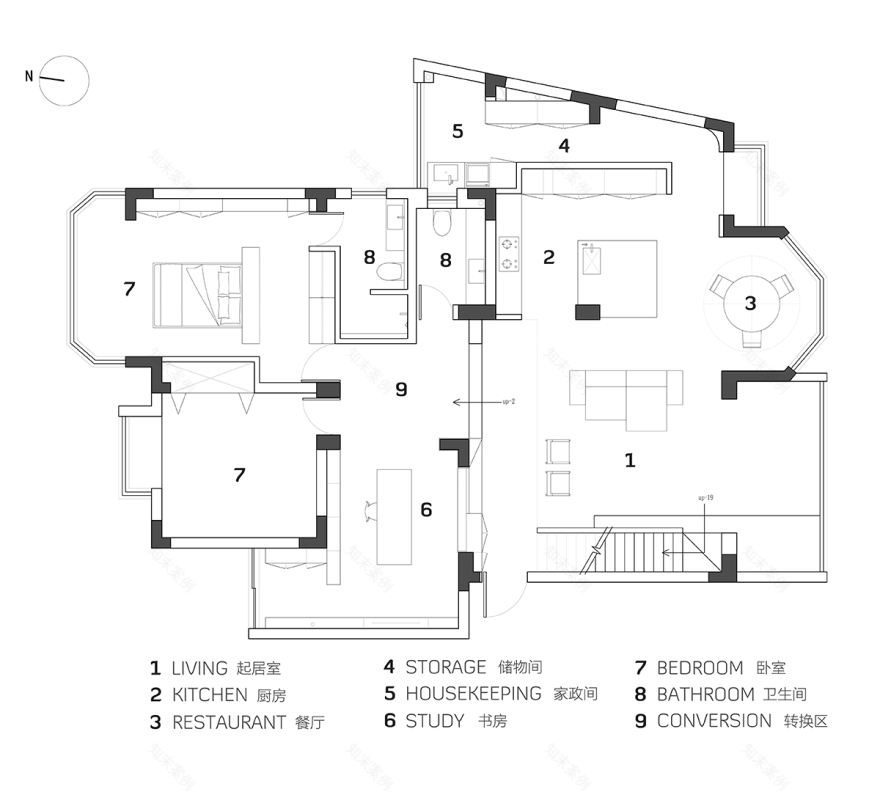
2F 平面布置图
二楼与一楼相互独立的同时也尝试开辟出垂直空间的对话关系,南北向划分出绝对私区与公共空间。北向的空间作为主卧的所有配套,为主人私密空间。起居室作为转换区域,可以通过双通道进行访问,无论屋主在主卧内部还是在外部连廊上,均可直接访问起居室,避免动线的冗长和干扰其他私区。南向的露台作为公共休息的平台,增设坐凳,满足业主露天休闲、户外烧烤等互动需求,同时围绕坐凳布置景观与树木,形成荫蔽下落座的感受。
东南露台与一、二楼公区的对话关系示意图
在露台与室内挑高区域的共墙上开出一道窗户,使得二楼的公区与一楼的公区完成垂直交互,身处一楼公区可以瞥见露台的景观,顺着楼梯走向二楼也可以“迎着露台景色逐步向上”。
东南露台与二楼私区的对话关系示意图
北侧重新规划,保留部分露台区域,作为私区的内庭院,将景观与功能区间隔一定距离,设计出廊道,用廊道串联起居室、衣帽间、卧室三个空间,共同环抱内庭,形成功能区与景观的对话关系。
消解原始鸡肋的转化区,作为主卫面积的扩充,开出窗户使之毗邻露台的景观,让泡澡这类需要静止的享受型活动获得更佳的视觉感受,同时也达成了景观与空间的对话关系。
一楼
First Floor
步入房屋,首先看到的是顺着屋顶开出的三角窗,作为一楼采光的补充,同时,也把二楼露台的景色引入至一楼公区,形成二楼露台与一楼公区的垂直交互。
使用简单纯粹的颜色和材料可以避免信息的冗余,把注意力放到更为重要的环境中去,用空间结构和层次来诠释空间本身的信息和意义,更好的表达空间的情绪,而不是用复杂的造型和材料的堆砌。光线、空间距离等理性的内容因纯粹的体块而呈现出来。
公区变得更加开放、自由,客餐厨形成互动。在厨房高柜的背后是通往设备间的入口,制造出一个视线消失点,营造出视线消失的地方还有路的空间叙事,给人留出想象的空间。
开放式方岛为客厅与厨房间的互动提供条件。
将橱柜拉手由“外凸”改为“内凹”,并且保证做到通缝,在使用上更为便利且能够保持立面上的干净简洁。
柜体的线条构成体块的力量感。
厨房与高差之上的书房形成对话关系,整个空间都是流动的,不是固化的。
书房开出窗户,引入公区的光线,也形成两个空间的交互。在书房简要办公时,也能与公区的家人们产生对话。
儿童房规划为套间,套间内的卫浴与储物柜、衣柜形成整体构建,呈 L 形展开。
此为儿童房窗外可见的小区景观
这间房间正对的窗外是小区成熟的绿化,同时,小朋友会在寒暑假时居住在此,基于对这两点条件的考量,我们将床中置,床头对向窗户,让小朋友躺在床上就可以通过植物状态去发现四季的变化。
缓步向上,连廊在挑空中构建出垂直空间的对话。室外是室内的延伸,老城区的住宅外部公共绿化已经足够茂密,我们将餐厅放置在六角窗前,使它更加靠近自然,获得更为舒适的就餐体验。
二楼 Second Floor
从二楼连廊进入主卧,保留了原始结构的天窗,床尾正对内庭,光线与景观跃入房内,躺在床上就可以观看到季节的变换,给生活增添一份浪漫的情调。
在保证大面积的结构为纯粹白色的同时,将廊道用木质的体块包裹,利用强化的手法让接建区域与主体建筑之间形成剥离感。“木盒子”的概念产生,同时连接起居室、衣帽间和卧室,使整个私区串联在一起。
从廊道回看卧室,尽量减少房间内部的材料与造型,保留原始的空间结构,以期让空间的视线焦点放到内庭的景观上。让视线与景观产生联系,实现景观与空间的对话。
衣帽间内部也与景观产生了对话。
二楼的起居室是为屋主个人留出的活动空间,阅读、休息、瑜伽等都在这里完成,设计达成的目的是空间服务于屋主的私人时间,实现功能完善、视线丰富、体验舒适的空间环境。
从起居室看向内庭,面对已经生长了多年的房屋,我们希望保留一些原本的痕迹,接建的新空间与原始屋顶的小砖共存,在自然景观的融合下达到“新与旧”的平衡。
主卫的盥洗区采用干净的造型与材料,充足的储物为屋主提供便利性。
淋浴区内部设置长条的壁龛沿着视线消失,将本是非常功能性的构成融入结构,形成一种新的空间延伸感。
在主卫与露台间开出一扇落地的窗户,将浴缸放置落地窗旁。让泡澡这类需要静止的享受型活动获得更佳的视觉感受,提升泡澡的舒适感,同时也达成了景观与空间,景观与人物的对话关系。
ABOUT PROJECT
- 一楼平面布置图 -
- 二楼平面布置图 -
项目名称:Clarify 与自然共生
项目地址:四川省成都市成华区府青路
项目面积:315 ㎡
项目造价:
设计时间:2022 年 01 月
完工时间:
设计单位:回声空间
主创设计:谢秉恒
设计团队:回声空间
景观设计:植然空间
软装设计:空间
施工方:誉峰时代
主要品牌:感物地板 UganConcept / 简集 Jange / 物集 Woodge / 洛玛诺 Romanor / 植然空间 / Kon / nomona / Dural
项目摄影:形在空间摄影 HereSpace/贺川
ABOUT DESIGNER
谢秉恒
回声空间设计创始人 / 设计总监
主张“去形式化”的空间设计,追求功能至上的设计理念。深知设计关注的其实并非对象,而是目标。坚信空间不应该凌驾于人,尤其以住宅更甚,“住宅是居住的机器”,是一种接纳性建筑,他需要容纳并改善居住者的生活方式,在尊重使用者需求的同时也尊重空间本身,在这二者之间找到一个最微妙的平衡点,营造体面、人性化、富有想象空间的居住环境,使之接纳时间,经由设计予以居住者更多的空间馈赠。
回声空间是一家室内空间设计事务所,用当代视角进行空间规划,空间包容时间、理念的变化,让住宅成为“居住的机器”。推崇使用自然的材料组成“舒适”的空间,影响居住者的视觉、嗅觉、听觉、触觉。与居住者探讨住宅空间在时间维度的延展性。形式追求功能,设计服务于人,根据需求来构造设计。
客服
消息
收藏
下载
最近












































