知末
知末
创作上传
VIP
收藏下载
登录 | 注册有礼
知末案例   /   家装空间   /   平层

奶油风三代同堂之家

2023/11/14 21:54:00
查看完整案例
微信扫一扫
收藏
下载
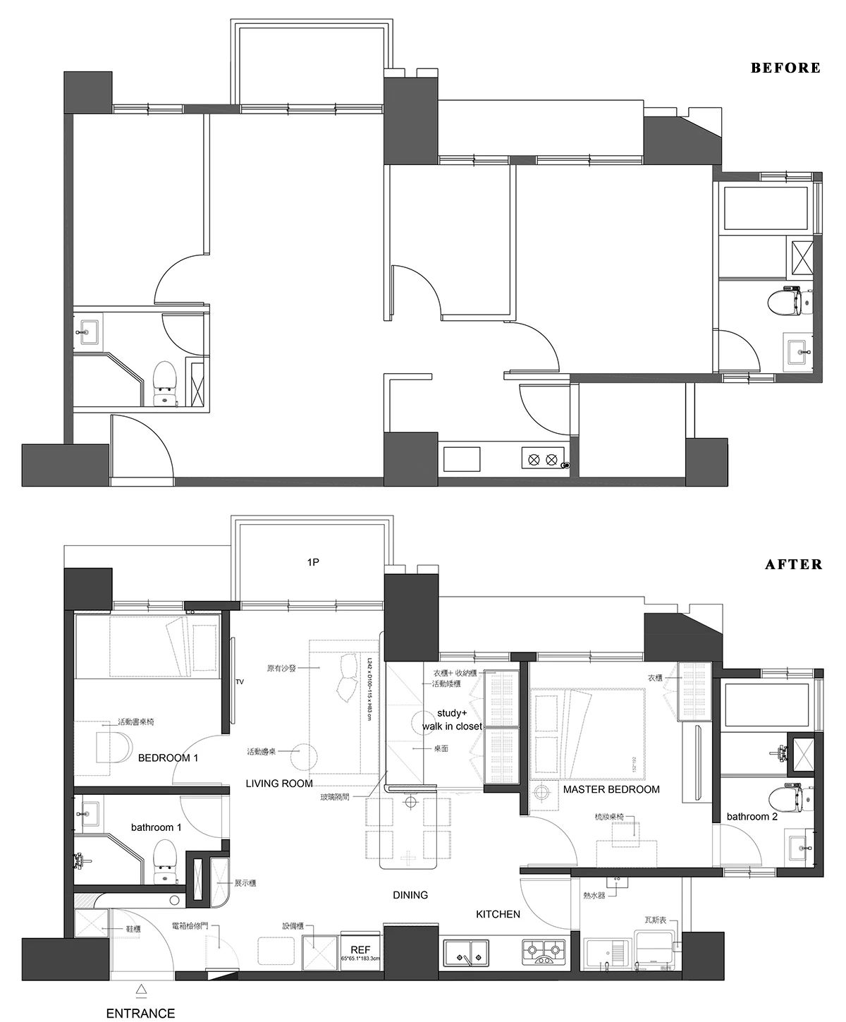
今天的案例是三代同堂,是女主人和母亲与女儿的家。
整个房子以女儿喜欢的奶油风为基底,并以圆弧的吊顶设计,让房子更显层次;同时搭配粉、浅灰、蓝色调的软装定制,让家更温馨、柔和。
每个卧室都设计不同,同时满足三代人不同年龄段的居住需求。
奶油风三代同堂之家-3
玄关
奶油风三代同堂之家-5
奶油风三代同堂之家-6
奶油风三代同堂之家-7
奶油风三代同堂之家-8
客餐厅
奶油风三代同堂之家-10
奶油风三代同堂之家-11
奶油风三代同堂之家-12
奶油风三代同堂之家-13
奶油风三代同堂之家-14
奶油风三代同堂之家-15
奶油风三代同堂之家-16
奶油风三代同堂之家-17
书房 更衣室
奶油风三代同堂之家-19
奶油风三代同堂之家-20
奶油风三代同堂之家-21
母亲房
奶油风三代同堂之家-23
奶油风三代同堂之家-24
奶油风三代同堂之家-25
儿童房
奶油风三代同堂之家-27
奶油风三代同堂之家-28
南京喵熊网络科技有限公司 苏ICP备18050492号-4知末 © 2018—2020 . All photos and trademark graphics are copyrighted by their owners.增值电信业务经营许可证(ICP)苏B2-20201444苏公网安备 32011302321234号
客服
消息
收藏
下载
最近