查看完整案例

收藏

下载
Minimalist life
仰望天空的湛蓝,俯首脚下的柔软,儿时的嬉戏梦场再度清晰起来,把帐篷搬回家,让孩子在这里渡过一个美好的童年。
本案例为极简风格,在设计过程中手法表现上富有年轻元素,在满足业主功能需求的同时,设计师运用细节灵活呈现现代风格中极致简约。
地下首层远比想象的开阔,双排柜的鞋帽间预示着这里主人生活的精细。南向落地窗的通透拉伸了视觉的延伸,玻璃门外庭院印象山景牵引着脚步,在家也能感受与自然触手可及。
休闲厅暂时作为孩子的玩耍区,紧靠的健身房让运动亲子两不误。
首层厨房和餐厅区域,使用率最高也是光线最好的地方。西厨吧台提升了餐厅的用餐情趣,功能上也更加多元化,好看好用的完美结合。
顶部线性灯贯穿南北,指引着动线,预示着空间的无限遐想。大厨房的落地窗关联着室内外的互动,中厨大吧台的延伸让空间更加高级,生活的品质悄然弥漫,大容量的储藏和操作空间,生活更加惬意与便利。
白色钢板楼梯拾级而上,大理石、钢板墙顶一色,融合踏步灯带让整个楼梯富有层次且显高级,现代的纯粹与极简的艺术融为一体。
下沉式的庭院结构给到首层充足的光线及通风,庭院的自然美景增强着美观与舒适性。
地表一层的客厅,去茶几化的家具摆放让孩子的活动空间更加安全。精心选用劳伦斯沙发、妈妈的怀抱沙发、还有点缀色的螃蟹椅在干净利落的空间中凸显空间年轻化且有质感。
朝北的休闲空间扩展了一层父母房使用的舒适性,空间上也更加通透。一层的北向花园给到父母更多的赏花种菜的空间。
二层功能为主卧室及儿童房套间,主卧室色调简洁优雅,床头背景不规则设计造型打破常规对称设计手法,将灯带作为分割不规则几何的线条,设计大胆前卫,突破传统思维,床头一侧简约的吊线灯让夜晚的阅读时光变得更加温馨。简约中带着温柔,主卧男女主人衣帽间分开,便于衣服分类规放,无不体现生活细节之美。
儿童房简约中透着童趣,满墙的世界地图,梦想也许就从这么开始出发。
顶层还预留了先生的书房和储藏区域,那是一个独享的自由天地。
打开门与自然拥抱,展开双臂实现梦想的舞台,回到家与家人相拥感受生活美好与动情的力量。
项目信息
ABOUT THE PROJECT
项目名称:《至简生活》
项目楼盘:帝景天誉
项目地点:江苏 南京
项目面积:400平
完工时间:2023.10
设计师:东易日盛墅装首席设计师 李如华
项目施工:东易日盛南京分公司
项目摄影:王海华(黑曜石)
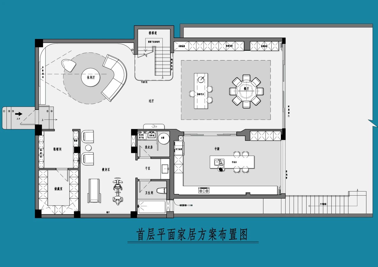
平面图
DESIGN PLAN
左右滑动查看首层原始平面图
左右滑动查看一层原始平面图
About
designer
关于设计师
设计师:李如华
设计理念:
人文思考,舒适与美观结合提案新生活方式
2021 荣获金堂奖青年设计师领袖奖
2020年江苏‘星空间杯’大奖赛住宅类唯一金奖获得者
2020年荣获红鼎创新设计大赛最高荣誉
李如华先生设计团队以80.90为主的年轻创意团队,致力于为精英阶层专属定制中高端住宅空间,主张设计“简”而奢的空间气质,完成了众多中高端大平层及别墅空间项目,并积累了丰富全案设计落地经验。
项目所获荣誉 -
2021 金堂奖青年设计师领袖奖
2021 金堂奖杰出别墅空间设计作品奖
2021 中国大宅设计TOP100
2021 金外滩奖.铜奖/最佳居住空间奖
2021 荣获design focus 国际空间设计大奖年度别墅豪宅优秀奖
2020年江苏‘星空间杯’大奖赛住宅类金奖
2020年荣获红鼎创新设计大赛最高荣誉
2020 入围国际空间设计Idea-Tops艾特奖“最
客服
消息
收藏
下载
最近































