查看完整案例

收藏

下载
张超建筑摄影工作室
原金威啤酒厂空间作为工业遗存及城市集体记忆的物质载体,对于保育再利用的原厂房空间,我们的室内改造设计策略更多是系统地记录和梳理,进而保留、提炼、再诠释和再现。
深圳市十间设计咨询有限公司
罗湖区因其特殊的地理位置,是深圳城市化进程的先行区域,也是深圳特区成立后发展起步最早、最快的片区。金威是唯一的、也是最知名的本地酿造啤酒品牌,伴随罗湖区的城市发展,金威啤酒厂的建筑功能也发生了转变,由工业厂房蜕变为文化地标,从物质和非物质层面承载并延续着几代深圳人的集体城市记忆。
© 张超建筑摄影工作室
原啤酒厂工业遗存的整体更新设计由都市实践牵头,我们负责了其中部分重点室内公共空间的改造。我们相信工业遗存的保护和利用策略不能简单地非“修旧如旧”即“修旧如新”,而是在最大限度保留“旧”的基础上,通过新旧共存,展现新旧间的对比、张力、互动和平衡,从而唤起历史的记忆和对未来的憧憬。原金威啤酒厂空间作为工业遗存及城市集体记忆的物质载体,对于保育再利用的原厂房空间,我们的室内改造设计策略更多是系统地记录和梳理,进而保留、提炼、再诠释和再现。
© 张超建筑摄影工作室
© 张超建筑摄影工作室
© 张超建筑摄影工作室
© 张超建筑摄影工作室
为了体现新与旧的对比,我们在空间中以陌生化的方式使用原空间中已出现的材料,并用陌生化的材料重新制作厂房中原有的构件。
© 张超建筑摄影工作室
墙面、地面的瓷砖和排水沟暗示了原发酵罐车间多水、湿润的工作环境,被整体保留并再利用;瓷砖破损部分借鉴了修复碎瓷器文物常用的“漆金(又称金缮)”工艺,以金色腻子填充修复破损脱落处,暗示这里流淌过的金色液体和那个曾经的“黄金时代”。
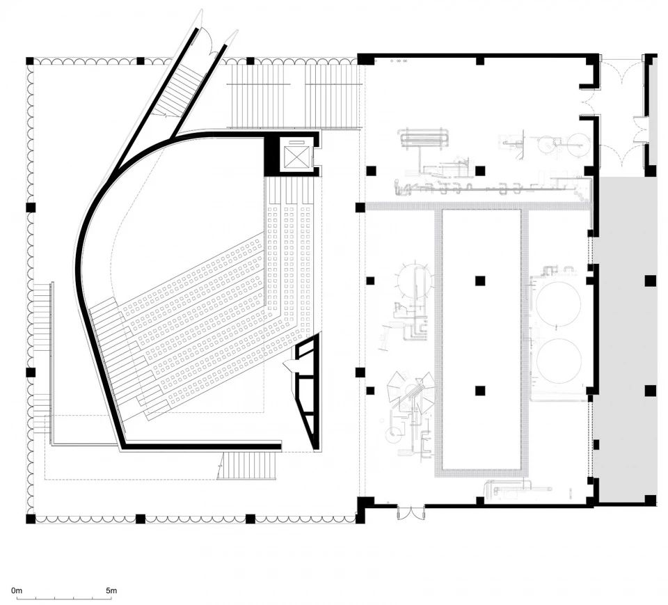
排水沟修整后重新铺上不锈钢篦子,沟内隐藏有投光灯透过篦子均匀打亮现场保留的不锈钢罐体和管线、阀门,沟底则种植绿色苔藓,为空间注入绿意和生机。
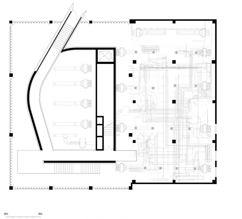
对于为保证空间作为展厅后期运营所必须增加的设备、照明、线管桥架等基础设施,我们借助 3D 扫描、BIM 等技术进行定位、梳理、设计,并通过现场施工前的严格标记、驻场把控,尽量利用或避开现状管线和设备,最小化设备管线的裁切、移位。现场无法避开或加固从而不得不局部切除、拆除的管线设备则被标记移位或运至仓库妥善储存,后者可供艺术家、商家等后续进行二次创作。
© 张超建筑摄影工作室
© Studio 10
© Studio 10
金属管从发酵罐连至顶部楼板洞口暴露的六个罐体底部,我们将这六个圆洞做成发光灯膜,为空间提供基础照明,并利用设备管线不锈钢材质的特性形成多次反射,照亮整个空间。
© 张超建筑摄影工作室
© 张超建筑摄影工作室
为满足消防要求,空间内所有室内外墙面的旧铝合金窗均需替换为实墙;我们详细记录了原铝合金窗的细节,并通过翻模、浇筑,复原出 1:1 的玻纤混凝土“窗”置换入原窗洞,以陌生化的材料、艺术化的处理方式记录旧窗痕迹。
© Studio 10
对于新建部分,室内空间的设计策略则是在满足室内使用需求的同时,通过延续和“再现”原厂房中的工厂灯、裸顶及明装设备管线、裸露的混凝土构件等工业建筑元素和不锈钢、白色瓷砖、暖红色陶板等材料,重建“新”与“旧”的联系。
D1 多功能厅前厅空间
© 张超建筑摄影工作室
© 张超建筑摄影工作室
D1 地下一层和首层是在原址上新建成的多功能厅,通高空间内的夹层有一条不锈钢包裹的连廊横穿,和顶部新安装的亮银色风管、工厂灯以及透过门洞隐隐透出的 D2 空间内不锈钢设备遥相呼应。地面铺装为项目定制的嵌碎陶板水磨石;为了示意可坐区域,沿阶梯座凳座面嵌有整体排布的方形陶板,呼应原场地及建筑外立面材料。项目公共洗手间设计则参考了 8、90 年代常见的厂房卫生间设计,采用了联排拉通的洗手池和白瓷砖、不锈钢材质、明装日光灯管等。
© 张超建筑摄影工作室
© 张超建筑摄影工作室
© 张超建筑摄影工作室
© 张超建筑摄影工作室
© 张超建筑摄影工作室
© 张超建筑摄影工作室
项目图纸和模型
© Studio 10
© Studio 10
© Studio 10
© Studio 10
© Studio 10
© Studio 10
© Studio 10
项目地址:广东省深圳市罗湖区原金威啤酒厂(D2 栋首层常设展厅,D1 栋地下一层及首层多功能厅和前厅、电梯轿厢、首层楼梯间、二层常设展厅,A/D1/D5 栋公共卫生间)
完工时间:2022 年 12 月
面积:1525 平米
建设单位:广东粤海置地集团有限公司
主管合伙人:周实
团队:莫纯煇、赵津汝、黄安、薛梦琪、董盈希、罗辰浩(实习)、包嘉晓(项目助理)、陈菲菲(项目助理)、黄嘉颖、吕云洁、Cristina Moreno Cabello、郑鑫、扈诗雨(实习)、肇美施、张瑞羽、邱婧祺、张经纬、金圣翔(实习)、罗冠欣(实习)
整体规划、建筑设计及室内设计合作单位:深圳市都市实践设计有限公司(都市实践)
室内施工图团队:中国建筑科学研究院有限公司/深圳九思室内设计有限公司
灯光设计顾问:北京远瞻照明设计有限公司
平面设计团队:烁设计
摄影:张超建筑摄影工作室、Studio 10
客服
消息
收藏
下载
最近





































