查看完整案例

收藏

下载
Oriental One
上海中興路一號
一座永恒的城市地标,
建筑大师理查德·罗杰斯的最新力作。
项目位于上海静安区,建筑本身就是一道城市的风景,但作为住宅空间,原精装交付的室内功能不太适合中国人的居住习惯,所以设计师根据业主的需求,对该室内空间进行了局部改造再设计。
01 HOME-COMING
一入玄关即感受到舒适的仪式感,换鞋、置物、挂衣,设计师细致入微地考虑到会发生在生活里的每一个情节,把入家门后的动作归置整洁。侧面落地穿衣镜既扩大了空间视觉感,轻松自在,又做到相对独立,也保持开敞通畅。
P. 01
P. 02
P. 03
02LIVING ROOM 客厅
空间特别之处就是客餐空间围绕 270 度的全景落地窗,冬日暖阳,春日微风。清晨或黄昏都为空间提供了不同画面感的背景底色,让人在一种具有松弛感的空间中渐入佳境。
P. 04
P. 05 光,透过梦幻帘挥洒在地面、家具、地毯之上,材质的变换将光呈现出不同的质感。光随时间的变换以一种最基本的方式表达着人与自然的关系。
P. 06
P. 07
P. 08 可以自由组合的模块沙发让空间的休闲方式自由随性,不拘泥于方位和形式,从而形成多变有趣的组合方式。画境电视灵活了空间的使用状态,既有功能也是装饰,丰富了生活场景的多样性。
P. 09
P. 10
温暖的材料被考虑在内,例如带有原始肌理的木材、石料、亚麻织物、做旧陶碗以及手工陶瓷。
由不同颜色材质组合的大理石茶几腿部,重叠的石头在现代与传统之间架起一座桥梁,搭配一块具有年代感的手工部落地毯,记录着时间行走的痕迹。在光线的映衬下增添了微妙的质感。
P. 11
P. 12
P.13 设计师尝试从审美、情感与情绪之间去构建空间之间的关联,为现代住宅注入独特的元素以捕捉主人的个性。通过色彩、精选家具和艺术品的精心组合,大胆地营造出简约又质朴的氛围。
P. 14
P. 15
03DINING ROOM
餐厅
餐厅餐桌旁原交付为电视柜,功能不合理且无收纳。设计师对此进行了改造,加深了柜体深度,重新设计为具有收纳系统的餐边储物模块,中部镂空的设计方便餐桌旁的随手拿取。
P. 16
P. 17 在餐厅的设计里,设计师考虑了当下年轻人的生活习惯和生活方式,让原本面积不大的中厨减少存储压力,冷热分开,方便日常家人的活动动线。
P. 18
P. 19
厨房和餐桌之间用移门阻隔,可开可合,增加了新的分区,让家庭必备的蒸烤箱,西厨岛台以及咖啡机都能更好的归处,使空间形成简而有序的动线延伸,为餐厅赋予“交流”的属性。
P. 20
P. 21
• 04
BEDROOM 卧室
设计师以点线面为卧室空间制造不同的光影变换,色彩和形状的变化丰富了空间层次感,全内嵌射灯与温润如月光的球形壁灯结合的灯光设计,床头柜与衣柜一体化设计,增强实用性。空间加之雅绿暖色调,予人紧紧包裹身心的安全感,浸入梦境。
P. 22
P. 23
P. 24
P. 25
P. 26
• 05
READING ROOM
书房
书房有着界定的区域,却没有彼此的界线。简洁有力的多功能书架墙内置了一个可以临时的睡床,为书房增加了展示书籍和睡眠的空间,超长的办公桌可满足业主超宽台面的尺度需求。书桌背后增设满墙储物柜体,让储物多样且隐形。
P. 27
P. 28
P. 29
P. 30
P. 31
P. 32 在事事都追求‘快’的大环境下,私宅设计,设计师更强调‘慢’。因为家不是一蹴而就的,而是一个慢慢成长的过程。
P. 33
• 06
ANALYSIS
DIAGRAM
分析图
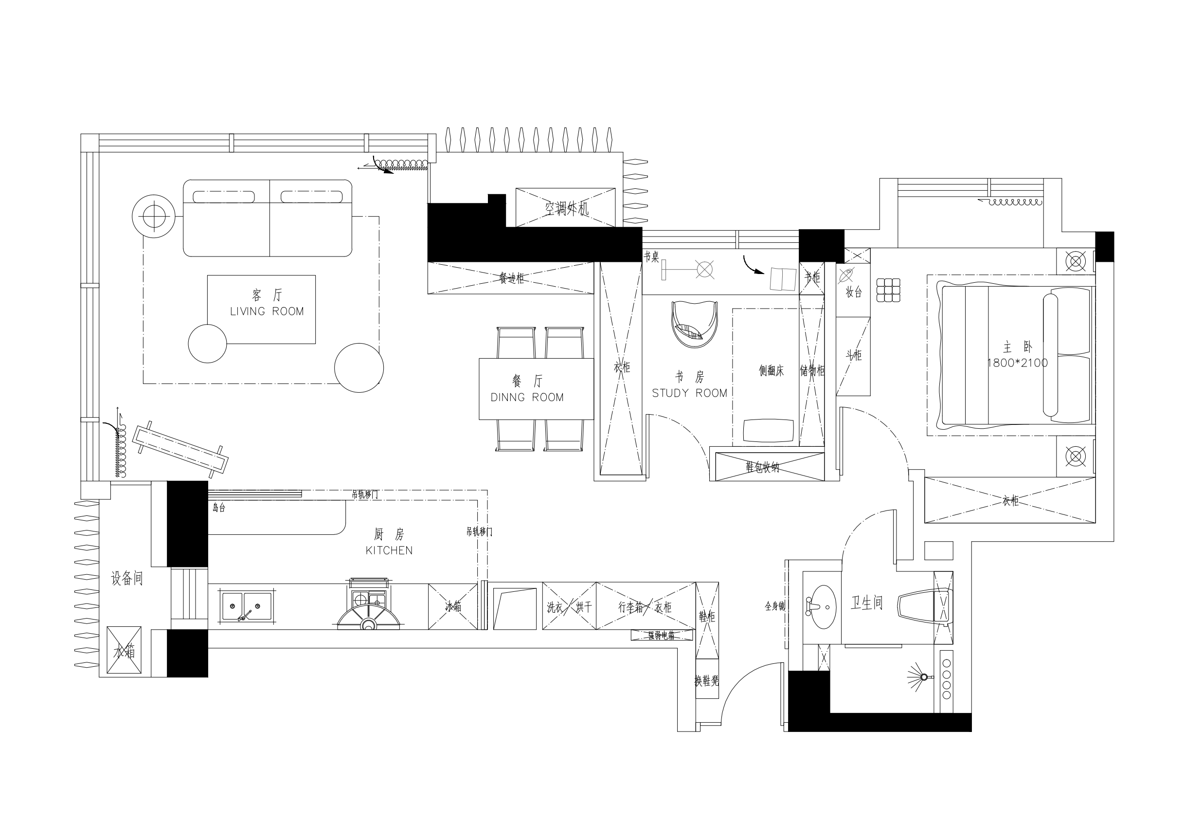
平面图 P. 34
INFO
- 项目名称 - 中兴路壹号
- 设计机构 - 上海漫邸空间设计
- 主创设计 - 李思雨
- 深化设计 - 胡静颖
- 项目面积 - 107㎡
- 项目地址 - 中国 上海
- 项目摄影 - 张家宁
DESIGNER
李思雨
漫邸设计创始人-设计总监
上海漫邸空间设计,始终以实景落地为目标,专注于从人本需求的角度出发,在住宅、别墅、办公、庭院景观等领域为客户打造最契合的环境体验,独一无二的生活方式。在满足功能需要的前提下,勾勒出丰富动人的空间效果。
共生、共存、共情,我们依然在向往个人情怀与浪漫的寄放,我们依然在打造生活方式的沉淀与突破。
客服
消息
收藏
下载
最近








































