查看完整案例

收藏

下载
©Ema Peter
因为地缘优势,独特的社会背景和时代面貌为加拿大的当地建筑选址及风格发展提供了更多的可能性。在亚寒带气候的影响下,木材与石材的广泛运用形成了具有该国鲜明特色的乡村建筑类型,建筑与自然的互动关系不仅影响着人居环境,更在一定程度上构建了地域性的文化基础。
01
Elevated cabin
Omar Gandhi Architects
加拿大·新斯科舍
©Ema Peter
Gaspereau River Valley是新斯科舍热门的旅游度假胜地之一,这处占地5英亩的斜坡以浓郁的森林环境为自然背景,仅通过一条狭窄的车道和砾石小径串联外部道路,Omar Gandhi Architects利用便于施工的耐候钢为主材,修建了这座底层架空的独立小屋。
©Ema Peter
小屋的室内以烟熏橡木为饰面,恰到好处地中和了耐候钢和壁挂式灯具的工业感,起居室所对应的南端风景通过大面积的玻璃窗及出挑的屋檐形成基调柔和的观景面,同时借助高位视角保护内部的隐私,营造舒缓的、舒适的家居氛围。
©Ema Peter
左右滑动查看更多图片
02
Cherry Valley
StudioAC
加拿大·多伦多
©Felix Michaud
Cherry Valley位于距多伦多约两个半小时车程的海岸线附近,建筑师将地势较高的一侧通过一片入口平台和户外台阶来连接外部道路,低处则顺势与湖面的水景相接,体现住宅布局之巧思的同时,在绿意盎然的林冠之下构建一处自然的居所。
©Felix Michaud
呈线性伸展的空间布局将明亮开敞的观景面优先供给公共的起居室,并通过向外延伸的木制平台和玻璃推拉门增加户外的活动区域。建筑师选用砖材和雪松木构建现代式空间与周边农业建筑的环境关系,使住宅低调的融入于当地社区。
©Felix Michaud
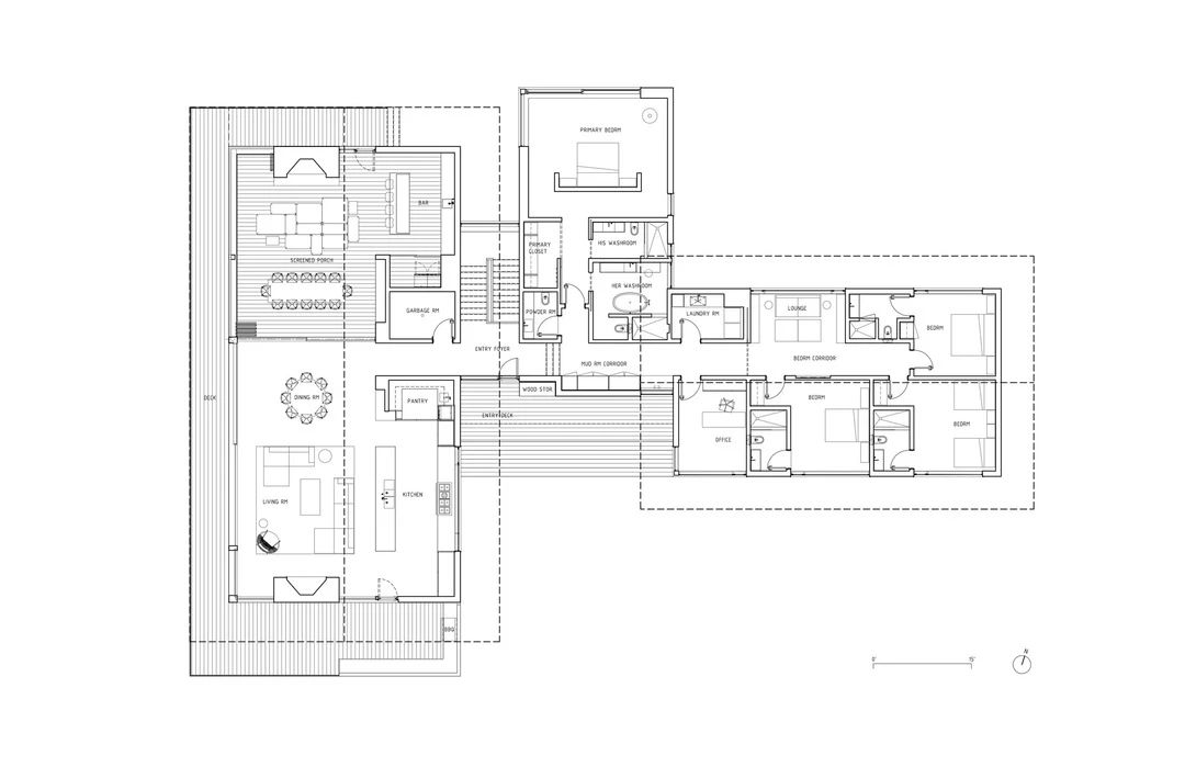
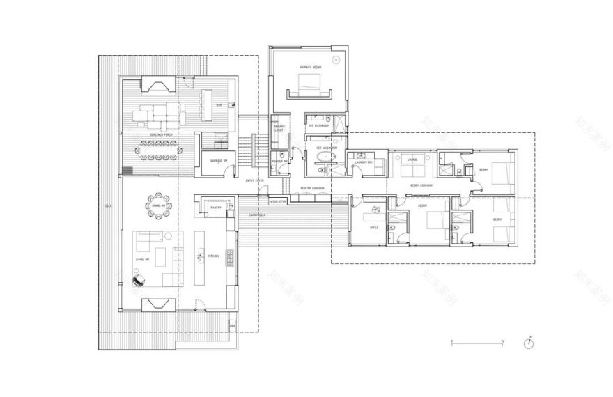
△平面图
03
Liminal House
Mcleod Bovell Modern Houses
加拿大·温哥华
Liminal House是为一对退休老人设计的晚年居所,项目场地横跨住宅区与岩石海岸之间的空隙,于是原生的景观环境成为了建筑师重要的灵感来源。住宅的结构立面采用混凝土、铝板等耐久的材料来抵御沿海气候的侵蚀,并通过内外部分的交流、变化激发空间活力,以此消除建筑的边界。
Hufton Crow
现场复杂的地形使空间难以整合在规则的层次中,因此建筑师采用场景设计的方法,根据不同空间的功能、朝向、景观等优先次序组织语言,并通过底层的开放式设计使泳池成为海平面的延伸,将生活的美学寓于自然之中。
04
Muskoka Cottage
Akb Architects
加拿大·安大略省
©Shai Gil
Muskoka Cottage是为一户多代家庭设计的度假疗养小屋,其内部空间划分为三个互相连接的体块,并通过开放式的序列凝聚活力,促进家庭成员之间的沟通、互动。建筑选材和坡屋顶结构融入了地域性的传统审美,利用肌理自然的雪松板使空间与环境一致,回应场地的地貌特征。
©Shai Gil
客服
消息
收藏
下载
最近























































































