查看完整案例

收藏

下载
建筑师手记 | Architect’s note
哥斯达黎加Art Villas度假村
Art Villas Costa Rica
在距哥斯达黎加小镇乌维塔不远的地方,有一座隐于赫摩斯海滩上方丛林间的小型度假村Art Villas。3栋独特的别墅和一个多功能亭阁分布在2公顷的土地上。项目投资人希望建筑师打造一个可以让游客近距离接触自然、净化身心,也同时体验奢华与冒险的地方。来自Formafatal工作室的建筑师们在满足客户需求的同时,也从中南美洲热烈缤纷的氛围中得到了启发。
Not far from Costa Rican town Uvita – there is a hidden small resort Art Villas on the jungle hill above the beach Playa Hermosa. 3 unique villas and one multifunctional pavilion are scattered over a plot of 2 ha. When the investor approached the architects, he wished to create a place where the visitors merge with the surrounding nature, clearing their mind, experiencing luxury and adventure at the same time. He wanted to create a place that digs deep into everyone’s heart when they taste it. The architects from the Formafatal studio followed the client’s assignment and were also inspired by the atmosphere and colorfulness of Central and South America.
▼丛林环境,lush environment © BoysPlayNice
▼眺望Atelier Villa,overlooking the Atelier Villa © BoysPlayNice
Atelier别墅
Atelier Villa
Atelier Villa是为投资人及其家庭设计的私人住宅。长达26米的棱形体量依偎在陡峭的山坡间,部分结构悬浮于茂密的热带植被上。放眼室外,目之所及的是漫山的绿意与无边的海洋。面朝车道和相邻别墅的后墙特意不设窗户,以保持空间的私密性。在本次项目中, “消除室内外的界限 “与强调建筑的简洁性和线条的纯粹感同样重要。
▼后墙开合动态图,the back wall opening and animations © BoysPlayNice
Atelier Villa was designed as a private residence for the investor and his family. Nestled against a steep slope, the 26-metre-long prismatic object partially levitates over lush tropical vegetation. Looking outside, there is only the distant ocean or green hills as far as the eye can see; the back wall facing the driveway and the neighbouring villas is intentionally windowless, to maintain privacy. The first and foremost priority is not only the idea of “erasing boundaries between interior and exterior” but also highlighting constructional simplicity and pure lines.
▼没有设置窗户的后墙,there is no rear wall for windows © BoysPlayNice
▼将滑动墙面打开后,open the sliding walls © BoysPlayNice
▼被焦木覆层包裹的后立面,the rear elevation clad in burnt wood cladding © BoysPlayNice
建筑系统由一个跨度为4 x 4米的钢结构框架组成。别墅外墙采用与绿色屋顶相结合的谨慎色彩,使其与周围环境融为一体。面向海洋和丛林的立面采用了大尺寸的铝制穿孔模块,它们既能在阳光下保持稳定的温度又具有超强的防锈性能。如果将其拉起,它们还可作为天棚。每块铝板上的穿孔比例和图案都不一样,从而在室内创造出惊艳的光影效果。面板采用了与耐候钢同色的特殊涂层,整个后墙都被焦木覆层包裹,并使用了一种名为Shou Sugi Ban的日式传统防风化和抗老化技术来处理。
▼4 x 4米的钢结构框架,4 x 4 m steel frames © BoysPlayNice
▼可开合的铝制穿孔模块,openable aluminum perforated module © BoysPlayNice
The constructional system consists of a steel frame with a span of 4x4m. Discreet wall colours in combination with the green roof allow the villa to really blend in with its surroundings. The ocean and jungle-oriented façades are fitted with large-size aluminium perforated sections which do not heat up in the sun and are rust-resistant. If pulled up, they double as canopies. The scale and pattern of perforation is different on each of the sections, thus creating an exciting play of light and shadow inside. The panels’ special coating is in the colour of COR-TEN. The full back wall is in charred timber cladding treated with Shou Sugi Ban, an old Japanese technique of weather- and age-proofing the wood.
▼项目概览,overview © BoysPlayNice
▼打开后成为檐篷铝制穿孔模块,when opened, the aluminum perforated modules become canopies © BoysPlayNice
从布局上看,这栋别墅拥有与外形一样的极简风格。共用设施、储藏室、卫生间和厨房均沿后墙分布。剩余部分的布局非常开放,模糊的内外部空间界限让整个空间看起来就像是一个带顶的露台。轻质滑动隔墙可以根据需要来创造出私密的区域,或将空间重组。露台处有一个向外延伸的无边泳池,部分区域被屋顶覆盖以避免烈日的侵袭。
▼光影变换,light and shadow © BoysPlayNice
Disposition-wise, the villa possesses the same minimalistic spirit as its shape suggests. The utility and storage rooms, bathrooms and the kitchen are placed along the back wall. The layout of the rest of the house is very open; the boundaries between the inside and the outside world are gone and the whole space seems like a roofed terrace. Lightweight sliding partition walls may serve as a tool to create private zones and shake the space up as needed. The patio reveals an infinity pool, partly roofed and therefore protected from the scorching sun.
▼住宅入口,entrance of the house © BoysPlayNice
▼向外延伸的无边泳池,an infinity pool that extends outwards © BoysPlayNice
▼立面打开后犹如一座有顶的露台,when the facade opens,it as a covered terrace © BoysPlayNice
室内装饰以自然材质的暖色调、大地色系为主。除了休息室和餐椅外,所有的家具都是为这栋别墅量身定制的。大部分家具都在当地工匠的帮助下制作,有的部件则在捷克定制并运到现场。此外,项目团队还选择了捷克著名玻璃制造公司Bomma的相关产品以及他们与项目整体热带风情相得益彰的Shibari灯具。
▼可开合的手绘屏风,the hand-painted screen that can open and close © BoysPlayNice
The whole interior is in warm, earthy tones of natural materials. All of the furnishings, apart from the lounge and dining chairs, are tailor-designed for this villa and custom-made. Commissioned in the area, the major part of the furniture was made with the help of local craftsmen. Some components were custom-made in the Czech Republic and transported to the site. As for the Czech manufacturers, we decided to opt for the renowned Czech glass-making company Bomma and their Shibari lights that go hand in hand with the overall tropical feel of the interiors.
▼从餐厅看向泳池另一边的卧室,view to the bedroom beside the pool from the dining room © BoysPlayNice
▼室内空间概览,interior overview © BoysPlayNice
▼来自Bomma公司的灯具,lamps from Bomma © BoysPlayNice
▼半室外休闲空间,semi-outdoor leisure spaces © BoysPlayNice
▼卧室,bedroom © BoysPlayNice
▼浴室,bathroom © BoysPlayNice
业主手记 | Owner’s note
在哥斯达黎加茂密的丛林中,有一个超越寻常的空间:白天与黑夜在苍翠的植物群、原始的海滩和雅致的设计中不断交替变换。在这里,三栋别墅都有着个性鲜明又独特的设计与风格。度假村里的别墅在回归大自然与受保护的奢华住所之间取得了难得的平衡。当你与丛林的气息交融,在舒适迷人的空间里放松身心并找回最初的自己时,创造力就会自然而然地迸发。
由沉静的混凝土墙组成的巨型单体结构,在丛林深处裸露而自信地矗立着。广阔的玻璃墙、丛林原木和大胆的外形尺寸在点燃、吸收并反映着自然的原始元素。手绘墙壁捕捉了水的动态性质,并映衬着周围的热带森林。走在铺有手工尼加拉瓜瓷砖的地板上,柔和、真实与疗愈感汇聚在脚下,唤起了一种来自上古时代的情绪。极具复古特质的装饰与现代设计的简约性也在室内空间中得以结合。
In the lush jungle of Costa Rica is a space that transcends ordinary. Where day and night merge in a heavenly expanse of verdant flora, pristine beaches, and exquisite style. Here you’ll discover three distinct villas each with their own bold and unique architecture and style. Art Villas is inspired by the laws of the jungle. Our villas strike a rare balance between encounter with nature and protected luxury accommodation. Here creativity springs to life as you |mingle with the jungle’s breath, relax in comfortable, charming spaces, and surrender to your purest self.
Behold the vast, monolithic structure. Cool, concrete walls stand naked and confident inside the heart of the jungle. Expansive glass walls, jungle wood, and brave dimensions ignite, absorb, and reflect the raw elements of nature. Hand-painted walls capture the dynamic nature of water and mirror the surrounding tropical forest. Glide across floors artfully designed with handmade Nicaraguan tiles. Softness, truth, and intention unite beneath your feet, evoking a sensation of antiquated times. Ornamental designs reminiscent of the past unite with the simplicity of modern design.
▼夜幕时分,at night © BoysPlayNice
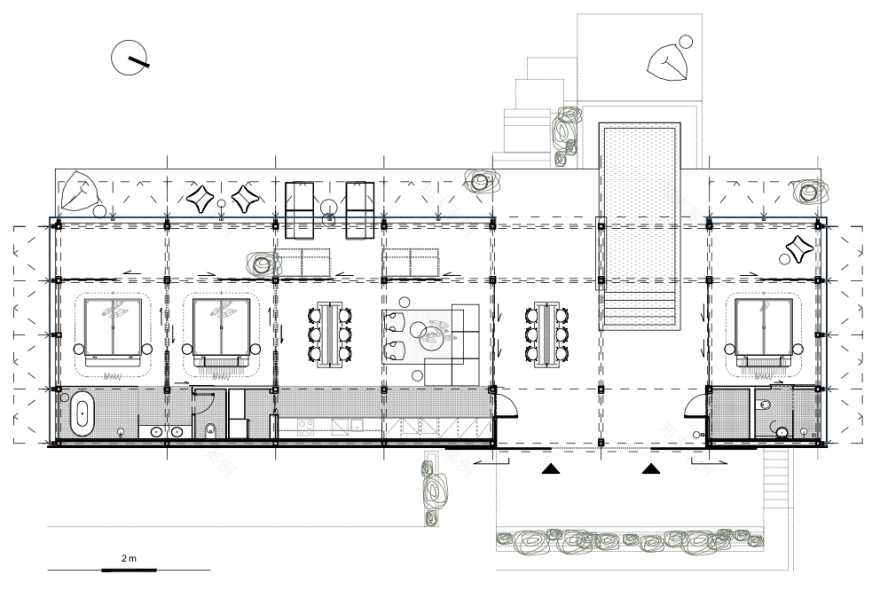
▼住宅平面图,plan © FORMAFATAL
客服
消息
收藏
下载
最近

















































