查看完整案例

收藏

下载
光线必须被很好地控制住。
我确信窗是空间功能和展示的一个重要决定因素。
——斯卡洛.斯卡帕
到这个项目现场勘时,入户玄关没有采光,幽暗闭塞。现场具备把室外入户露台纳入室内的可能性,有效拓展玄关的空间尺度,将阳光引入室内。
通过改变起始楼梯踏步的尺度和比例,减弱踏步处梁的压抑感,使用秩序叠级的设计手法,创造富有变化和韵律的体块关系,营造入户回家仪式感。
该项目户型为叠加别墅上叠,很多限制条件,楼梯位置没法更改,楼梯口迎面一根承重柱,视觉效果和现场体验感极差。
餐厅空间尺度较小,客厅相对独立,小窗户给人很强的压迫感。多年前下叠邻居的扩建,给后期改造带来了更多可能性。
打通餐厅和客厅所有不需要的隔墙,从客厅看向厨房,可以看穿整个空间,视野无阻,刚空间感觉更大、更宽敞,置身其中,就会感觉舒适自在。
原先的空间障碍柱,通过结构主义手法,巧妙结合定制挑台餐桌,浑然一体。
餐桌背后的操作台,精心设计了一个微型景观橱窗,设计了绿植,让楼梯上来,及煮咖啡洗杯子的同时,营造一种和室外和自然的对话。
客厅明亮宽敞,自然光线充沛,在浅色的主色调中,佐以深色家具点缀其间。让光影映照于室内,有着不同的流动面貌,突显出空间的层次感。
光影为空间增添了灵动性,光影自由、多变,改变调节着空间的比例与空间感受。
在材质的选择上,使用柔光灰色地砖,在白色梦幻恋的光影下,黑色的哑光皮质沙发和高反光的大理石茶几窃窃私语,诉说着设计的主旨:高雅温馨,不失大气,让空间服务于人,带来极简又精致的生活方式。
卧室精准的安排自然光和人造光交相呼应,去除一切繁冗的造型,结合扩建后原始外墙梁的高度,运用弧形,让空间一气呵成,营造简介、明亮、温馨、舒适的睡眠环境。
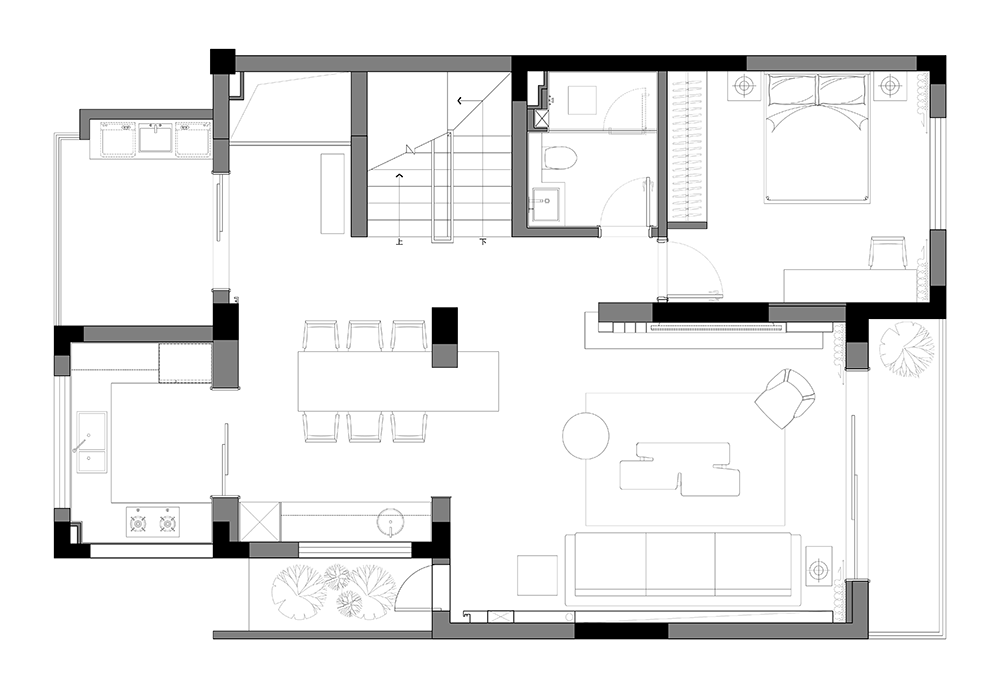
平面图
项目名称:
世贸东壹号
项目地址:
苏州昆山
项目面积:
235㎡
设计机构:
肯吾设计事务所
主案设计:
王健
空间摄影:
李耀祥
完工时间:
2023年10月
王健
上海肯吾设计设计总监-创始人
从建筑、景观、室内、软装整体思考,建立全局的一体化设计理念。从整体出发,以出色的设计为独具慧眼的客户量身定制专属的独特空间。
设计以人为本,独具匠心,体现人性化和艺术性。摒弃风格和形式主义,从每个项目的具体要求出发。通过深入的分析和研究,为每个项目提供独一无二的解决方案,通过设计体现设计本身及设计之外的价值。
客服
消息
收藏
下载
最近

































