查看完整案例

收藏

下载
单色空间
Anna Novopoltseva
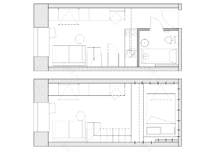
空间布局
一位年轻女子以目前的经济能力只能购买这间公寓,邀请设计师Anna Novopoltseva对空间进行功能性设计,考虑一个私人区域,并创造一个在其他空间中脱颖而出的内部空间。
4.2米高的天花板使得可以布置夹层楼,并在其上放置睡眠区,下面是走廊和浴室,厨房和带存储系统的小型起居区位于一楼,还设法在那里安装了一个用餐区和一张办公桌。
选择了深绿色的油漆,为了实用性,其余表面保留粗糙的灰泥并覆盖哑光清漆,同时又保持了阁楼的美感,其特点是原始的纹理。天花板仍然是混凝土,这也是阁楼的典型特征。
客服
消息
收藏
下载
最近
















