查看完整案例

收藏

下载
该项目原身为伦敦市中心一幢1970年代的政府救济房,建筑虽小但通风性良好。为了满足项目紧张的预算,设计师对该建筑的改造主要集中在对空间的重组与其保温性能上的升级,通过极力挖掘建筑的潜力以达到业主需求。原始建筑中现有的超薄板材被尽可能的保留,修改并重新使用,以尽可能减少浪费及改造中的碳排放,空间原有的建筑语言也因此得以延续。
▼ 住宅外观,曾是1970年代的政府救济房,
outlook of the house which was 1970’s council house © Oskar Proctor
In response to a small budget, the project concentrates on the thermal improvement and reconfiguration of a small drafty 1970’s council house in central London, by finding architectural potential in the responses to the required upgrades. All new interventions explore the architectural language of the infrathin, off-the-shelf sheet building materials found in the original house. Wherever possible, materials were retained, adapted and reused to minimise waste and reduce the carbon footprint of the intervention.
▼ 住宅结构概览,空间中使用了较多现有的板材,
overview of the structure, plenty use of off-the-shelf sheet © Oskar Proctor
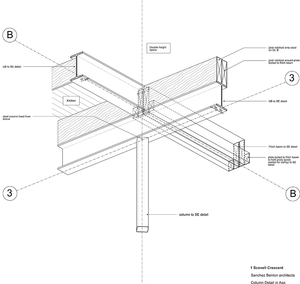
该项目的设计方案体现出了现代住宅材料和细节方面的特色,一方面建筑整体拥有通透的视野,另一方面设计团队着重关注了自然光的引入。住宅中新增了两根钢梁及一根圆形立柱,确立了空间中新的核心区域。新增结构的颜色,能让人联想到远处灰蒙蒙的绿色铁路桥。安装在山墙下的高窗为住宅带来了第三种视角,可以从窗中看到相邻建筑的屋顶。
▼ 通透的空间,transparent space © Oskar Proctor
▼ 新增的绿色横梁结构,new green steel beams © Oskar Proctor
Our proposals celebrate the materials and details of mass-produced housing of this period, opens views across the house, and increases access to natural light. The introduction of two new steel beams and a column, define a new centre for the house. The colour of this structure recalls the dusty green paint of a railway bridge visible in the distance. A new high-level window in the gable end façade, provides a third aspect to the house and a view across neighbouring roofs.
▼ 横梁上的二层,second floor on steel beam © Oskar Proctor
▼ 看向二层屋顶的横梁,
view of the beams of the roof for second floor © Oskar Proctor
▼ 被原木色家具分隔的空间,
space cut by wood furnitures © Oskar Proctor
▼ 从高窗可以看到相邻建筑的屋顶,
a view across neighbouring roofs through the high-level windows © Oskar Proctor
▼ 墙壁上方的高窗引入自然光线,
high-level window on wall which introduce nature light © Oskar Proctor
住宅内每个房间都经过巧妙的设计,以获得良好的空间质量。当住宅内新的隔断被打开,厨房也被隐藏在折叠门后,住宅内不同功能空间之间的界限将被弱化。设计师希望在需要时,住宅也能成为业主演员的一个彩排工作室。
By focusing on the spatial qualities of every room, opening new thresholds between spaces and concealing the kitchen behind a folding door, there is an ambiguity to how each room might be used. This allowed our client, an actress, to reimagine the space as a rehearsal studio as and when required.
▼ 隐藏在折叠门后的厨房,
kitchen behind a folding door © Oskar Proctor
▼ 轴测图,axonometric drawing © Sanchez Benton architects
▼ 平面图,plan © Sanchez Benton architects
▼ 剖面,section © Sanchez Benton architects
客服
消息
收藏
下载
最近

























