查看完整案例

收藏

下载
极性黑白概念,
白天咖啡 夜晚酒吧
Boba Bear Café的二楼和三楼都是咖啡馆和水烟吧。黑白概念的极性是在考虑到其商业模式中的迷人对比时展开。这个空间的概念化是为了描绘顾客:包括温和的白色天鹅,白天享受一杯咖啡的休闲,晚上享受水烟和威士忌时,成为渴望脱离日常生活的黑天鹅。就像戏剧动作之间的突然转变一样,这两个空间的相似但又不同的气氛以一个很短的楼梯来迎接顾客。
这两个空间同时表达了黑白之间的强烈对比,以及波Boba Bear Café独特身份的共享方面。采用特殊的石膏技术实现墙体结构,原有瓷砖的痕迹,用绳子包裹的H形柱,滑动图案的木隔板,以及不锈钢门框一致地应用于两个楼层,将物理上的分叉空间统一到一个品牌之下。关键设计方面被概念化,以提供视觉效果,并伴随每个方面的功能。例如,滑动图案的木隔板直接安装在连接到阳台的原始折叠门结构的前面,使其既能控制进入空间的光线量,又能在紧急情况下为通过和通风打开。
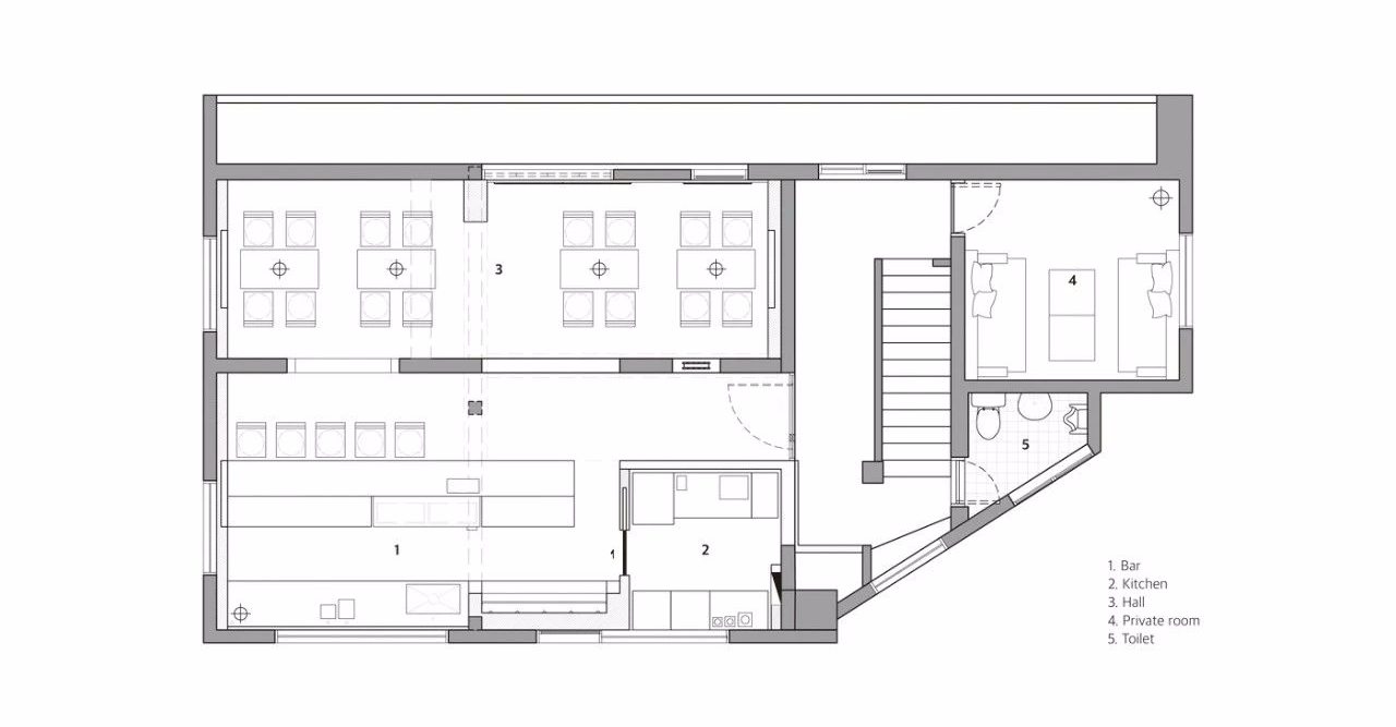
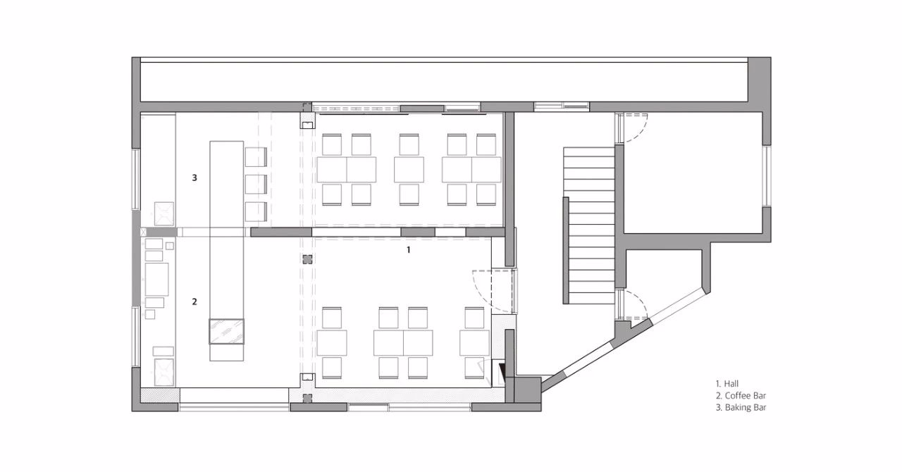
△ 平面图
客服
消息
收藏
下载
最近






















