查看完整案例

收藏

下载
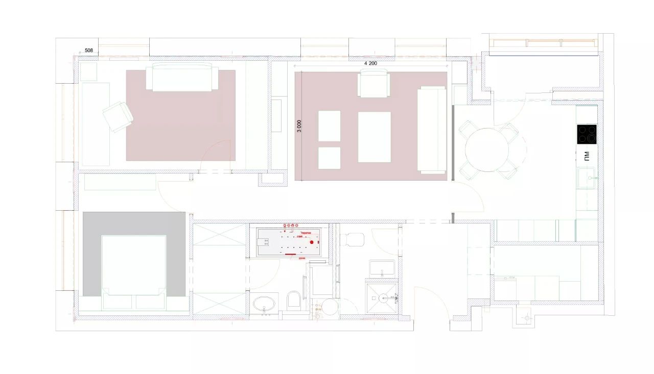
Lena Lenskikh Studio新作,97㎡明亮公寓,客厅是最大的空间,走廊里放置了一个壁橱,壁橱的门后面隐藏着杂物间的入口,里面有洗衣机和烘干机,还有一个存放大件物品的地方。
卧室也采用了类似的解决方案,当我们通过更衣室进入浴室时,这是一种经典且非常方便的设计技巧。家具和技术解决方案也支持视觉清洁和宽敞的理念。
家具装饰中油漆和贴面材料的结合为任何现代室内装饰增添了舒适感。玻璃、金属和织物的存在提供了必要的多样性,并使室内空间变得宽敞。
空间布局
客服
消息
收藏
下载
最近



















