查看完整案例

收藏

下载
这是一栋能够适应各种环境的独特的小房子。项目所在的场地有着典型的日本沿海气候:年日照量少、降水多,冬季积雪厚度可超过1米,夏季相对炎热。
It is a small house that accepts various environments and aims for a unique architecture. The project site has typical Japanese Seaside climate. Annual sunshine hours are low and precipitation is high. The snow cover can exceed 1m, and in summer some hot summer days are recorded.
▼项目概览,overall view ©Ippei Shinzawa
建筑师首先发现了车棚的存在,这是在很多建筑中都会出现的一个区域。在此基础上,设计试图将车棚以新的方式结合在建筑当中。 外观的处理展现了对当地环境的谨慎应对,旨在将季风、阳光和风景一同引入房屋内部,创造适合一家人共同生活的居所。
The first thing I noticed was the presence of a carport. This area with a lot of snow is installed in most houses. We accepted the carport culture positively and reflected it in the building. At first glance, the appearance of a barracks is the result of carefully interpreting the local environment. We are accepting the monsoon, sunshine, and scenery in our buildings, and are exploring ways to live together with the environment.
▼入口立面朝向农田,the entrance facade is facing the field ©Ippei Shinzawa
▼车棚区域朝向街道,the carport area facing the street ©Ippei Shinzawa
房屋的框架采用了适用于一辆车的尺寸,每个格子单元的边长为2.7米,横梁统一为120×270。穿过网格的梁被切割为60×270的尺寸,以减少材料的浪费,实现经济高效的框架结构。价格合理的家具和物品使得住宅为可持续的生活方式提供了范例。
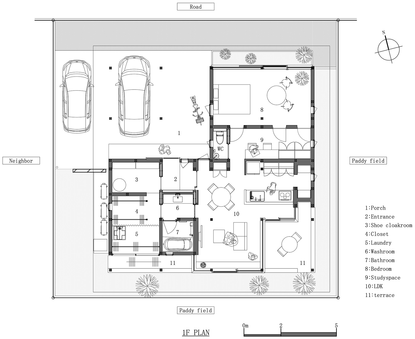
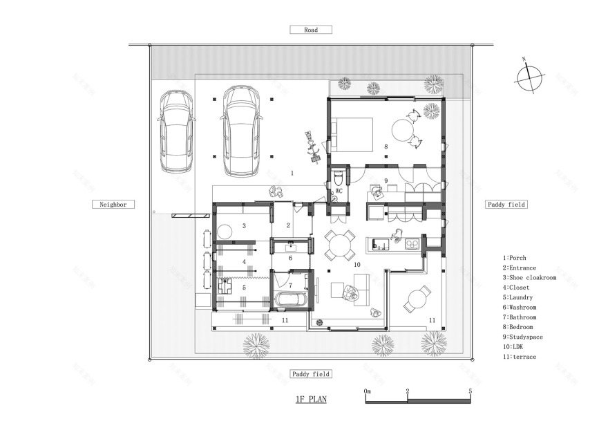
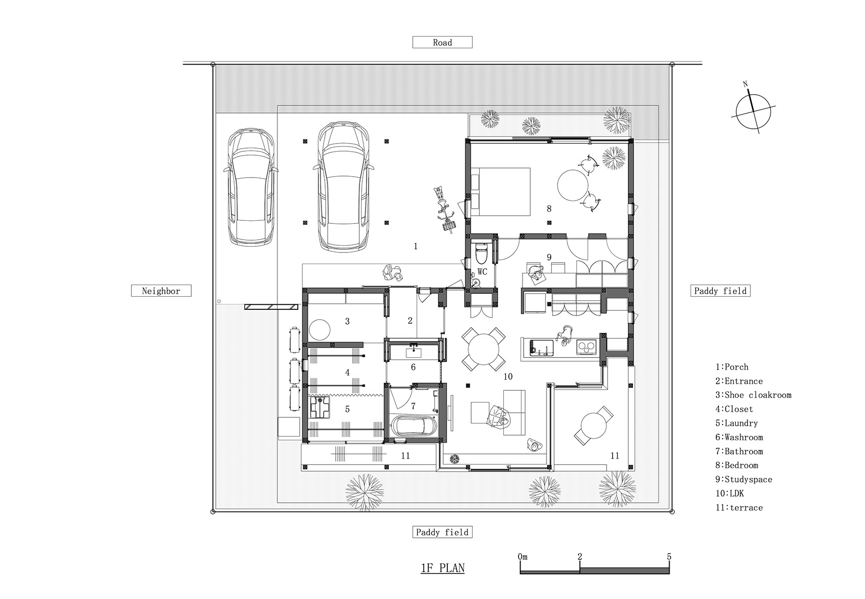
▼平面图,plan ©Kazuto Nishi Architects
In addition, the frame plan is a wide-spread size for one carport vehicle, 2.7 m per grid, and it is thoroughly repeated. Beams are unified in 120 × 270 size. Large bless that traverse the grid are cut in half and sawn 60×270 size to reduce material loss and realize a frame structure that is economically efficient. Utilizing affordable items, this building suggests a new sustainable housing production model here.
▼起居空间概览,living area overall view ©Ippei Shinzawa
▼入口露台,terrace ©Ippei Shinzawa
▼入口玄关,entry way ©Ippei Shinzawa
▼入口处的厨房,kitchen near the entrance ©Ippei Shinzawa
▼客厅,living room ©Ippei Shinzawa
▼从客厅望向露台,view to the terrace from the living room ©Ippei Shinzawa
▼客厅窗台,living room detailed view ©Ippei Shinzawa
▼卧室,bedroom ©Ippei Shinzawa
▼走廊,corridor ©Ippei Shinzawa
▼洗手间,bathroom ©Ippei Shinzawa
为了防止建筑受到大雪的侵害,屋顶大范围地伸出,同时在墙腰使用了不密封的砂浆墙。下大雪时,墙腰被积雪埋没,房屋的木制框架和屋顶在纯白的风景中显得格外突出。
In order to protect the building from heavy snow, the roof jumps out greatly, and a sealless mortar wall is used for the waist wall. During heavy snow, the waist wall sinks in the snow, and the wooden frame and roof rise impressively in the pure white scenery.
▼夜间客厅视野,view from the living room by night ©Ippei Shinzawa
▼入口夜间外观,entrance facade by night ©Ippei Shinzawa
▼车棚区域夜景,carport area by night ©Ippei Shinzawa
客服
消息
收藏
下载
最近
























